不動産 賃貸 マンション等の住宅情報:埼玉住まい情報


東京都千代田区東神田1丁目(岩本町駅)の貸事務所:物件詳細

  • 物件詳細
  • 情報の見方
  • 印刷用画面
交通
所在地
駅徒歩 賃料
管理費等
敷金/保証金
礼金
使用部分面積
坪数/坪単価
物件種目
築年月

都営新宿線/岩本町

東京都千代田区東神田1丁目

4分

52.5万円

44,440円

315万円 / -

なし

133.55m²

40.39坪/1.2996万円

貸事務所

1977年4月(築49年)

その他の画像
    • とりあえず保存
    交通

    都営新宿線 岩本町駅 徒歩4分

    その他の交通

    東京メトロ日比谷線 小伝馬町駅 徒歩7分

    JR山手線 秋葉原駅 徒歩7分

    所在地 東京都千代田区東神田1丁目
    物件種目 貸事務所
    賃料 52.5万円 管理費等 44,440円
    敷金 / 保証金 315万円 / - 礼金 なし
    敷引 坪単価 1.2996万円
    保証金償却 権利金
    造作譲渡 その他一時金 なし
    維持費等 保険等
    使用部分面積 133.55m² 坪数 40.39坪
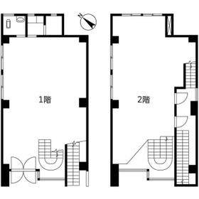
    築年月 1977年4月(築49年) 階建 / 階 5階建 / 1階~2階部分
    駐車場 バイク置き場
    駐輪場 土地面積
    接道状況 用途地域
    間取り 建物構造 RC
    建物名・部屋番号  
    リフォーム履歴
    リノベーション履歴
    特記事項 飲食店不可
    備考
    賃貸保証等:加入要(契約時1ヵ月分 更新10%)
    管理形態/管理員の勤務形態:-/-
    償却費解約時賃料2ヵ月
    エネルギー消費性能
    断熱性能
    目安光熱費
    バス・トイレ 専有部分にトイレあり
    キッチン
    設備・サービス 給湯、エアコン
    その他
    契約期間 2年 条件等
    引渡可能時期 2026年3月20日予定 現況
    更新料 新賃料 1ヶ月 物件番号 0663003801
    情報公開日 2026年3月10日 次回更新予定日 2026年3月24日
    ケータイ用バーコード

    QRコード

    スマートフォンでこの物件を見る
    スマートフォンからもこの物件をご覧になれます。
    ※「-」と表示されている項目については、情報提供会社にご確認ください。

    情報提供会社

    (株)弥助

    東京都知事免許(6)第76408号

    交通:
    JR山手線/秋葉原駅 徒歩7分
    東京都千代田区東神田1丁目8-8 
    TEL:
    03-3866-8711
    所属団体:
    (公社)全日本不動産協会会員
    (公社)首都圏不動産公正取引協議会加盟

    取引態様:仲介

    • 00710959
    • とりあえず保存
    • 提携サイト等より掲載されている物件情報につきましては、不動産会社詳細情報にリンクされていないものがあります。
    • 物件に関するお問合せは、物件詳細ページの「情報提供会社」に表示されている不動産会社へ直接お願いいたします。
    • 間取図は、現況を優先させていただきます。
    • 映像は物件の一部を撮影したものです。物件の契約にあたっての最終判断はご自身の判断に基づいて行ってください。
    • 仲介手数料について仲介手数料

    アットホームは物件情報の適正化に努めております。 内容に誤りがある場合にはこちらへご連絡ください。

    【埼玉住まい情報】では、日本全国の物件から賃貸マンションや賃貸アパート・賃貸一戸建て等の賃貸住宅情報、新築マンション・分譲マンションや中古マンション等の売買マンション情報、新築一戸建てや中古一戸建てなどの戸建住宅、 土地など、総合的な不動産住宅情報検索サービスを提供致します。
    【埼玉住まい情報】から、選りすぐりの不動産物件を探してみましょう。

    【免責事項】
    このコーナーの運営はアットホーム株式会社(https://www.athome.co.jp/)が行っています。
    このコーナーに掲載している物件情報は、「アットホーム不動産情報ネットワーク」に加盟する不動産会社等(情報提供元)から提供されています。信頼性の高い情報提供が行えるよう、最大限の努力をしておりますが、その内容を保証するものではありません。 利用者のみなさまと各情報提供元との取引に起因する損害および情報が掲載されたことに起因する損害等については、株式会社イーシティ埼玉、およびアットホームは一切責任を負いません。
    各物件情報の内容や画像等はすべて現況を優先させていただきます。
    お取引等(お取引の準備、資金調達等を含みます)の際には、内容や契約条件等について、各情報提供元より十分な説明を受け、ご自身でご確認の上、判断してください。
    このコーナーへの物件情報のご掲載、その他不動産業務ソリューション等についての不動産会社様のお問合せはこちらからお願いいたします。

    物件画像: