東京都中央区湊1丁目(八丁堀駅)の貸事務所:物件詳細
交通 所在地 |
駅徒歩 |
賃料 管理費等 |
敷金/保証金 礼金 |
使用部分面積 坪数/坪単価 |
物件種目 築年月 |
|
JR京葉線/八丁堀
東京都中央区湊1丁目
|
5分
|
要確認
|
要確認
|
221.49m²
67.00坪/要確認
|
貸事務所
1993年3月(築32年10ヶ月)
|
|
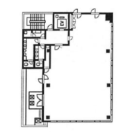
間取図
|
外観
|
<
その他の画像
>
|
| 交通 | JR京葉線 八丁堀駅 徒歩5分 |
|---|
| その他の交通 | 東京メトロ日比谷線 八丁堀駅 徒歩5分 東京メトロ有楽町線 新富町駅 徒歩8分 |
| 所在地 |
東京都中央区湊1丁目
|
| 物件種目 |
貸事務所 |
| 賃料 |
要確認 |
管理費等 |
要確認 |
| 敷金 / 保証金 |
要確認 |
礼金 |
要確認 |
| 敷引 |
要確認 |
坪単価 |
要確認 |
| 保証金償却 |
要確認 |
権利金 |
- |
| 造作譲渡 |
- |
その他一時金 |
なし |
| 維持費等 |
- |
保険等 |
- |
| 使用部分面積 |
221.49m² |
坪数 |
67.00坪 |
| 築年月 |
1993年3月(築32年10ヶ月)
|
階建 / 階 |
8階建 / 8階 |
| 駐車場 |
無 |
バイク置き場 |
- |
| 駐輪場 |
- |
土地面積 |
- |
| 接道状況 |
-
|
用途地域 |
- |
| 間取り |
- |
建物構造 |
鉄骨造 |
| アピールポイント |
株式会社クイックコンサルティングは、素早く丁寧をモットーに全国のオフィス移転に対応しております。
お問合せ頂いてからのレスポンスの早さにも自信がございますのでお急ぎの方は是非ご用命下さい。
勿論その後の粘り強さにも自信がございます。
ご希望の物件が見つかるまで、粘り強く何度でも物件をご提案致します。
また、単に物件を紹介するだけでなく、内装の提案などオフィスに関わる様々なお悩みにお答えしております。
その為、移転を任されるのが初めてのご担当者様やオフィスに関してお悩みをお持ちの経営者様などからご好評を頂いております。
なお弊社は東京本社に加えて、大阪、名古屋、広島、福岡に5つの支店がございます。
全国展開する事で地方に居を構える貸主様との関係が強化出来たり全国展開をされている企業様のご移転をより密にサポートさせて頂く事が可能です。
■追記
地方物件に関しましては、直接支店へお電話頂いた方がスムーズです。
東京本社:03-5201-8040
大阪支店:06-6147-9791
名古屋支店:052-223-0655
福岡支店:092-791-5500
広島支店:082-242-6600 |
| 建物名・部屋番号 |
ACN八丁堀ビル 8F |
| リフォーム履歴 |
- |
| リノベーション履歴 |
- |
| 特記事項 |
24時間利用可、整形無柱空間、OAフロア、最上階、24時間セキュリティー、耐震構造(新耐震基準) |
| 備考 |
管理形態/管理員の勤務形態:-/-
|
| エネルギー消費性能 |
- |
| 断熱性能 |
- |
| 目安光熱費 |
- |
| バス・トイレ |
共用部分に男女別トイレあり |
| キッチン |
- |
| 設備・サービス |
個別空調、給湯、暖房、冷房、インターネット対応、光ファイバー |
| その他 |
エレベーター |
| 契約期間 |
2年 |
条件等 |
定期借家
|
| 引渡可能時期 |
2026年1月上旬予定 |
現況 |
- |
| 仲介手数料 |
106.865万円 |
|
|
| 更新料 |
要確認 |
物件番号 |
1020745477 |
| 情報公開日 |
2025年10月29日 |
次回更新予定日 |
2025年12月22日 |
| ケータイ用バーコード |
- スマートフォンでこの物件を見る
- スマートフォンからもこの物件をご覧になれます。
|
※「-」と表示されている項目については、情報提供会社にご確認ください。
| 周辺施設 |
中央湊郵便局 |
| 距離 |
131m |
写真を見る |
| 周辺施設 |
三菱UFJ銀行八重洲通支店 |
| 距離 |
432m |
写真を見る |
| 周辺施設 |
みずほ銀行築地支店 |
| 距離 |
606m |
写真を見る |
| 周辺施設 |
セブンイレブン中央区湊1丁目店 |
| 距離 |
151m |
写真を見る |
| 周辺施設 |
ファミリーマート入船一丁目店 |
| 距離 |
194m |
写真を見る |
| 周辺施設 |
ローソン入船店 |
| 距離 |
287m |
写真を見る |
| 周辺施設 |
スギ薬局八丁堀店 |
| 距離 |
722m |
写真を見る |
| 周辺施設 |
KIRARITO GINZA |
| 距離 |
1084m |
写真を見る |
ここから簡単にお問い合わせをすることができます。
(SSLでの暗号化での送信を希望されるお客さまは
こちら
よりお問い合わせください)
お問い合わせを行う前に
「個人情報の取り扱いについて」を必ずお読みください。
「個人情報の取り扱いについて」に同意いただいた場合は「上記にご同意の上 確認画面へ進む」のボタンをクリックしてください。
個人情報の取り扱いについて
皆さまが送付された個人情報はアットホーム(株)のサーバを経由し、お問い合わせ先の不動産会社にメールまたはFAXにて転送されるためアットホーム(株)にも保管されます。アットホーム(株)で保管された個人情報の取り扱いについては、【こちら】をご覧ください。
また、本画面でご記入いただいた個人情報は、お問い合わせ先の不動産会社でも保管します。 お問い合わせ先の不動産会社が保管する個人情報の取り扱いについては、不動産会社に直接お問い合わせください。
国土交通大臣免許(4)第7938号 |
|---|
- 交通:
- 東京メトロ銀座線/日本橋駅 徒歩1分
- 東京都中央区日本橋3丁目8-16 ぶよおビル5F
- TEL:
- 03-5201-8040
- FAX:
- 03-5201-8041
- 所属団体:
- (公社)全日本不動産協会会員
取引態様:仲介  - 00160377
|
- スマートフォンで
この不動産会社を見る

|
- 提携サイト等より掲載されている物件情報につきましては、不動産会社詳細情報にリンクされていないものがあります。
- 物件に関するお問合せは、物件詳細ページの「情報提供会社」に表示されている不動産会社へ直接お願いいたします。
- 間取図は、現況を優先させていただきます。
- 映像は物件の一部を撮影したものです。物件の契約にあたっての最終判断はご自身の判断に基づいて行ってください。
- 仲介手数料について

アットホームは物件情報の適正化に努めております。
内容に誤りがある場合にはこちらへご連絡ください。