東京都新宿区新宿2丁目(新宿三丁目駅)の貸事務所:物件詳細
交通 所在地 |
駅徒歩 |
賃料 管理費等 |
敷金/保証金 礼金 |
使用部分面積 坪数/坪単価 |
物件種目 築年月 |
|
東京メトロ丸ノ内線/新宿三丁目
東京都新宿区新宿2丁目
|
2分
|
要確認
|
要確認
|
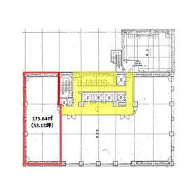
175.64m²
53.13坪/要確認
|
貸事務所
1989年3月(築37年3ヶ月)
|
|
間取図
|
外観
|
<
その他の画像
>
|
| 交通 | 東京メトロ丸ノ内線 新宿三丁目駅 徒歩2分 |
|---|
| その他の交通 | 東京メトロ丸ノ内線 新宿御苑前駅 徒歩2分 JR山手線 新宿駅 徒歩7分 |
| 所在地 |
東京都新宿区新宿2丁目
|
| 物件種目 |
貸事務所 |
| 賃料 |
要確認 |
管理費等 |
要確認 |
| 敷金 / 保証金 |
要確認 |
礼金 |
要確認 |
| 敷引 |
要確認 |
坪単価 |
要確認 |
| 保証金償却 |
要確認 |
権利金 |
- |
| 造作譲渡 |
- |
その他一時金 |
なし |
| 維持費等 |
- |
保険等 |
- |
| 使用部分面積 |
175.64m² |
坪数 |
53.13坪 |
| 築年月 |
1989年3月(築37年3ヶ月)
|
階建 / 階 |
地上10階地下1階建 / 9階 |
| 駐車場 |
無 |
バイク置き場 |
- |
| 駐輪場 |
- |
土地面積 |
- |
| 接道状況 |
-
|
用途地域 |
- |
| 間取り |
- |
建物構造 |
SRC |
| アピールポイント |
株式会社クイックコンサルティングは、素早く丁寧をモットーに全国のオフィス移転に対応しております。
お問合せ頂いてからのレスポンスの早さにも自信がございますのでお急ぎの方は是非ご用命下さい。
勿論その後の粘り強さにも自信がございます。
ご希望の物件が見つかるまで、粘り強く何度でも物件をご提案致します。
また、単に物件を紹介するだけでなく、内装の提案などオフィスに関わる様々なお悩みにお答えしております。
その為、移転を任されるのが初めてのご担当者様やオフィスに関してお悩みをお持ちの経営者様などからご好評を頂いております。
なお弊社は東京本社に加えて、大阪、名古屋、広島、福岡に5つの支店がございます。
全国展開する事で地方に居を構える貸主様との関係が強化出来たり全国展開をされている企業様のご移転をより密にサポートさせて頂く事が可能です。
■追記
地方物件に関しましては、直接支店へお電話頂いた方がスムーズです。
東京本社:03-5201-8040
大阪支店:06-6147-9791
名古屋支店:052-223-0655
福岡支店:092-791-5500
広島支店:082-242-6600 |
| 建物名・部屋番号 |
アーバンセンター新宿 9Fa |
| リフォーム履歴 |
- |
| リノベーション履歴 |
- |
| 特記事項 |
24時間利用可、整形無柱空間、OAフロア、24時間セキュリティー、耐震構造(新耐震基準) |
| 備考 |
管理形態/管理員の勤務形態:-/-
|
| エネルギー消費性能 |
- |
| 断熱性能 |
- |
| 目安光熱費 |
- |
| バス・トイレ |
共用部分に男女別トイレあり |
| キッチン |
- |
| 設備・サービス |
個別空調、給湯、暖房、冷房、インターネット対応、光ファイバー |
| その他 |
エレベーター2基以上、エレベーター |
| 契約期間 |
要確認 |
条件等 |
-
|
| 引渡可能時期 |
相談 |
現況 |
空 |
| 仲介手数料 |
151.9518万円 |
|
|
| 更新料 |
要確認 |
物件番号 |
1020831677 |
| 情報公開日 |
2026年2月4日 |
次回更新予定日 |
2026年5月10日 |
| ケータイ用バーコード |
- スマートフォンでこの物件を見る
- スマートフォンからもこの物件をご覧になれます。
|
※「-」と表示されている項目については、情報提供会社にご確認ください。
| 周辺施設 |
新宿二郵便局 |
| 距離 |
186m |
写真を見る |
| 周辺施設 |
みずほ銀行新宿中央支店 |
| 距離 |
285m |
写真を見る |
| 周辺施設 |
三菱UFJ銀行新宿通支店 |
| 距離 |
326m |
写真を見る |
| 周辺施設 |
セブンイレブン新宿2丁目新宿通り店 |
| 距離 |
109m |
写真を見る |
| 周辺施設 |
ファミリーマート新宿要通り店 |
| 距離 |
207m |
写真を見る |
| 周辺施設 |
ローソン新宿三丁目駅前店 |
| 距離 |
259m |
写真を見る |
| 周辺施設 |
タリーズコーヒー新宿二丁目店 |
| 距離 |
75m |
写真を見る |
ここから簡単にお問い合わせをすることができます。
(SSLでの暗号化での送信を希望されるお客さまは
こちら
よりお問い合わせください)
お問い合わせを行う前に
「個人情報の取り扱いについて」を必ずお読みください。
「個人情報の取り扱いについて」に同意いただいた場合は「上記にご同意の上 確認画面へ進む」のボタンをクリックしてください。
個人情報の取り扱いについて
皆さまが送付された個人情報はアットホーム(株)のサーバを経由し、お問い合わせ先の不動産会社にメールまたはFAXにて転送されるためアットホーム(株)にも保管されます。アットホーム(株)で保管された個人情報の取り扱いについては、【こちら】をご覧ください。
また、本画面でご記入いただいた個人情報は、お問い合わせ先の不動産会社でも保管します。 お問い合わせ先の不動産会社が保管する個人情報の取り扱いについては、不動産会社に直接お問い合わせください。
国土交通大臣免許(4)第7938号 |
|---|
- 交通:
- 東京メトロ銀座線/日本橋駅 徒歩1分
- 東京都中央区日本橋3丁目8-16 ぶよおビル5F
- TEL:
- 03-5201-8040
- FAX:
- 03-5201-8041
- 所属団体:
- (公社)全日本不動産協会会員
取引態様:仲介  - 00160377
|
- スマートフォンで
この不動産会社を見る

|
- 提携サイト等より掲載されている物件情報につきましては、不動産会社詳細情報にリンクされていないものがあります。
- 物件に関するお問合せは、物件詳細ページの「情報提供会社」に表示されている不動産会社へ直接お願いいたします。
- 間取図は、現況を優先させていただきます。
- 映像は物件の一部を撮影したものです。物件の契約にあたっての最終判断はご自身の判断に基づいて行ってください。
- 仲介手数料について

アットホームは物件情報の適正化に努めております。
内容に誤りがある場合にはこちらへご連絡ください。