宮城県仙台市泉区長命ケ丘1丁目の貸事務所:物件詳細
交通 所在地 |
駅徒歩 |
賃料 管理費等 |
敷金/保証金 礼金 |
使用部分面積 坪数/坪単価 |
物件種目 築年月 |
【バス】長命ヶ丘1丁目 停歩2分
宮城県仙台市泉区長命ケ丘1丁目
|
-
|
14.3万円
なし
|
3ヶ月 / なし
14.3万円
|
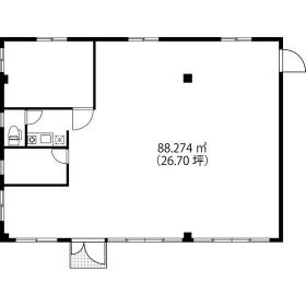
88.27m²
26.70坪/0.5356万円
|
貸事務所
2005年2月(築20年9ヶ月)
|
間取図
|
外観
|
<
その他の画像
>
|
交通 | 【バス】 長命ヶ丘1丁目 停歩2分 |
---|
その他の交通 | JR仙山線 北山駅 徒歩60分 JR仙山線 東北福祉大前駅 徒歩70分 |
所在地 |
宮城県仙台市泉区長命ケ丘1丁目
|
物件種目 |
貸事務所 |
賃料 |
14.3万円 |
管理費等 |
なし |
敷金 / 保証金 |
3ヶ月 / なし |
礼金 |
14.3万円 |
敷引 |
- |
坪単価 |
0.5356万円 |
保証金償却 |
- |
権利金 |
- |
造作譲渡 |
- |
その他一時金 |
鍵交換代:16,500円 |
維持費等 |
- |
保険等 |
- |
使用部分面積 |
88.27m² |
坪数 |
26.70坪 |
築年月 |
2005年2月(築20年9ヶ月)
|
階建 / 階 |
2階建 / 1階 |
駐車場 |
有 無料 |
バイク置き場 |
- |
駐輪場 |
- |
土地面積 |
- |
接道状況 |
-
|
用途地域 |
- |
間取り |
- |
建物構造 |
鉄骨造 |
建物名・部屋番号 |
長命ヶ丘1丁目事務所 001 |
リフォーム履歴 |
- |
リノベーション履歴 |
- |
特記事項 |
- |
備考 |
賃貸保証等:加入要(初回保証料賃料総額の100%)
管理形態/管理員の勤務形態:-/-
主要採光面:東向き
駐車場3台付無料☆さらに追加で2台契約可
大衡仙台線近くで大和町方面・仙台市中心部へのアクセス良好です!コンビニ・スーパー・薬局・銀行・郵便局
|
エネルギー消費性能 |
- |
断熱性能 |
- |
目安光熱費 |
- |
バス・トイレ |
- |
キッチン |
- |
設備・サービス |
エアコン |
その他 |
- |
契約期間 |
2年 |
条件等 |
-
|
引渡可能時期 |
相談 |
現況 |
空 |
仲介手数料 |
14.3万円 |
|
|
更新料 |
なし |
物件番号 |
1048738421 |
情報公開日 |
2024年7月24日 |
次回更新予定日 |
2025年10月22日 |
ケータイ用バーコード |
- スマートフォンでこの物件を見る
- スマートフォンからもこの物件をご覧になれます。
|
※「-」と表示されている項目については、情報提供会社にご確認ください。
周辺施設 |
泉長命ケ丘郵便局 |
距離 |
591m |
写真を見る |
周辺施設 |
セブンイレブン仙台長命ケ丘5丁目 |
距離 |
368m |
写真を見る |
周辺施設 |
公益財団法人宮城厚生協会泉病院 |
距離 |
826m |
周辺施設 |
七十七銀行長命ケ丘支店 |
距離 |
610m |
写真を見る |
周辺施設 |
ヤマザワ長命ヶ丘店 |
距離 |
553m |
写真を見る |
周辺施設 |
マツモトキヨシ長命ヶ丘中央店 |
距離 |
690m |
ここから簡単にお問い合わせをすることができます。
(SSLでの暗号化での送信を希望されるお客さまは
こちら
よりお問い合わせください)
お問い合わせを行う前に
「個人情報の取り扱いについて」を必ずお読みください。
「個人情報の取り扱いについて」に同意いただいた場合は「上記にご同意の上 確認画面へ進む」のボタンをクリックしてください。
個人情報の取り扱いについて
皆さまが送付された個人情報はアットホーム(株)のサーバを経由し、お問い合わせ先の不動産会社にメールまたはFAXにて転送されるためアットホーム(株)にも保管されます。アットホーム(株)で保管された個人情報の取り扱いについては、【こちら】をご覧ください。
また、本画面でご記入いただいた個人情報は、お問い合わせ先の不動産会社でも保管します。 お問い合わせ先の不動産会社が保管する個人情報の取り扱いについては、不動産会社に直接お問い合わせください。
宮城県知事免許(6)第4653号 |
---|
- 交通:
- 仙台市南北線/泉中央駅 徒歩4分
- 宮城県仙台市泉区泉中央2丁目13-3
- TEL:
- 022-342-0086
- FAX:
- 022-373-9043
- 所属団体:
- (公社)宮城県宅地建物取引業協会会員東北地区不動産公正取引協議会加盟
取引態様:仲介  - 20007260
|
- スマートフォンで
この不動産会社を見る

|
- 提携サイト等より掲載されている物件情報につきましては、不動産会社詳細情報にリンクされていないものがあります。
- 物件に関するお問合せは、物件詳細ページの「情報提供会社」に表示されている不動産会社へ直接お願いいたします。
- 間取図は、現況を優先させていただきます。
- 映像は物件の一部を撮影したものです。物件の契約にあたっての最終判断はご自身の判断に基づいて行ってください。
- 仲介手数料について

アットホームは物件情報の適正化に努めております。
内容に誤りがある場合にはこちらへご連絡ください。