東京都港区新橋4丁目(新橋駅)の貸事務所:物件詳細
				
					
					
				
														
	
		
			
				| 交通 所在地
 | 駅徒歩 | 賃料 管理費等
 | 敷金/保証金 礼金
 | 使用部分面積 坪数/坪単価
 | 物件種目 築年月
 | 
		
		
			
								| JR山手線/新橋
											 東京都港区新橋4丁目 | 
						5分
 | 
						44.1738万円
					 57,618円 | なし / 5ヶ月 なし | 57.72m² 17.46坪/2.53万円 | 貸事務所 1991年10月(築34年1ヶ月)
 | 
		
	
				
 
		
			
																		          | 交通 | JR山手線 新橋駅 徒歩5分 | 
|---|
| その他の交通 | 都営三田線 御成門駅 徒歩7分 都営大江戸線 汐留駅 徒歩8分 | 
|---|
			
				| 所在地 | 東京都港区新橋4丁目 | 
		
		
			
				| 物件種目 | 貸事務所 | 
			
				| 賃料 | 44.1738万円 | 管理費等 | 57,618円 | 
			
				| 敷金 / 保証金 | なし / 5ヶ月 | 礼金 | なし | 
			
				| 敷引 | - | 坪単価 | 2.53万円 | 
			
				| 保証金償却 | 解約時2ヶ月 | 権利金 | - | 
			
				| 造作譲渡 | - | その他一時金 | なし | 
			
				| 維持費等 | - | 保険等 | - | 
					
		
			
				| 使用部分面積 | 57.72m² | 坪数 | 17.46坪 | 
			
				| 築年月 | 1991年10月(築34年1ヶ月) | 階建 / 階 | 地上9階地下1階建 / 3階 | 
			
				| 駐車場 | - | バイク置き場 | - | 
			
				| 駐輪場 | - | 土地面積 | - | 
			
				| 接道状況 | - | 用途地域 | - | 
			
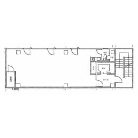
				| 間取り | - | 建物構造 | SRC | 
						
				| 建物名・部屋番号 | ル・グラシエルBLDG.80 3階 | 
			
				| リフォーム履歴 | - | 
			
				| リノベーション履歴 | - | 
			
				| 特記事項 | 耐震構造(新耐震基準) | 
			
				| 備考 | 
																	管理形態/管理員の勤務形態:-/-
										 | 
		
				
		
		| エネルギー消費性能 | - | 
	
		| 断熱性能 | - | 
	
		| 目安光熱費 | - | 
	
		
									
				| バス・トイレ | トイレ | 
						
				| キッチン | - | 
						
				| 設備・サービス | 個別空調、エアコン、インターネット対応、光ファイバー | 
						
				| その他 | エレベーター | 
					
		
			
				| 契約期間 | 2年 | 条件等 | - | 
			
				| 引渡可能時期 | 即時 | 現況 | 空 | 
						
				| 更新料 | 新賃料 1ヶ月 | 物件番号 | 1071884093 | 
			
				| 情報公開日 | 2025年7月22日 | 次回更新予定日 | 2025年11月6日 | 
						
				| ケータイ用バーコード | 
					
					
					
					スマートフォンでこの物件を見るスマートフォンからもこの物件をご覧になれます。 | 
					
	 
	 									※「-」と表示されている項目については、情報提供会社にご確認ください。
									
												
					
					  ここから簡単にお問い合わせをすることができます。
(SSLでの暗号化での送信を希望されるお客さまは
													こちら
											  よりお問い合わせください)
					  
					
						
						
					
					お問い合わせを行う前に
「個人情報の取り扱いについて」を必ずお読みください。
「個人情報の取り扱いについて」に同意いただいた場合は「上記にご同意の上 確認画面へ進む」のボタンをクリックしてください。 
						個人情報の取り扱いについて
						皆さまが送付された個人情報はアットホーム(株)のサーバを経由し、お問い合わせ先の不動産会社にメールまたはFAXにて転送されるためアットホーム(株)にも保管されます。アットホーム(株)で保管された個人情報の取り扱いについては、【こちら】をご覧ください。
						また、本画面でご記入いただいた個人情報は、お問い合わせ先の不動産会社でも保管します。 お問い合わせ先の不動産会社が保管する個人情報の取り扱いについては、不動産会社に直接お問い合わせください。
					 
				 
				
														
				  
				  
					| 東京都知事免許(6)第76891号 | 
|---|
| 交通:東京メトロ日比谷線/築地駅 徒歩1分東京都中央区築地2丁目10-6 Daiwa築地駅前ビル2階TEL:03-6264-2762FAX:03-6264-2763所属団体:(公社)全日本不動産協会会員(公社)首都圏不動産公正取引協議会加盟
 取引態様:仲介 00272721
 | 
							  
								スマートフォンでこの不動産会社を見る
 | 
					  
					 
				 
							
						
												
			
					
- 提携サイト等より掲載されている物件情報につきましては、不動産会社詳細情報にリンクされていないものがあります。
- 物件に関するお問合せは、物件詳細ページの「情報提供会社」に表示されている不動産会社へ直接お願いいたします。
- 間取図は、現況を優先させていただきます。
- 映像は物件の一部を撮影したものです。物件の契約にあたっての最終判断はご自身の判断に基づいて行ってください。
- 仲介手数料について 
アットホームは物件情報の適正化に努めております。
内容に誤りがある場合にはこちらへご連絡ください。