東京都港区海岸3丁目(田町駅)の貸事務所:物件詳細
交通 所在地 |
駅徒歩 |
賃料 管理費等 |
敷金/保証金 礼金 |
使用部分面積 坪数/坪単価 |
物件種目 築年月 |
|
JR山手線/田町
東京都港区海岸3丁目
|
11分
|
119.2334万円
なし
|
なし / 12ヶ月
なし
|
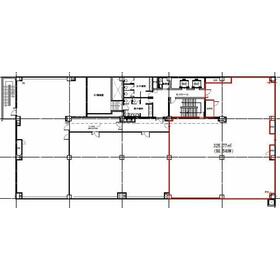
325.77m²
98.54坪/1.21万円
|
貸事務所
1965年3月(築60年8ヶ月)
|
|
間取図
|
外観
|
<
その他の画像
>
|
| 交通 | JR山手線 田町駅 徒歩11分 |
|---|
| その他の交通 | 都営三田線 三田駅 徒歩11分 新交通ゆりかもめ 芝浦ふ頭駅 徒歩4分 |
| 所在地 |
東京都港区海岸3丁目
|
| 物件種目 |
貸事務所 |
| 賃料 |
119.2334万円 |
管理費等 |
なし |
| 敷金 / 保証金 |
なし / 12ヶ月 |
礼金 |
なし |
| 敷引 |
- |
坪単価 |
1.21万円 |
| 保証金償却 |
- |
権利金 |
- |
| 造作譲渡 |
- |
その他一時金 |
なし |
| 維持費等 |
- |
保険等 |
- |
| 使用部分面積 |
325.77m² |
坪数 |
98.54坪 |
| 築年月 |
1965年3月(築60年8ヶ月)
|
階建 / 階 |
地上7階地下1階建 / 5階 |
| 駐車場 |
- |
バイク置き場 |
- |
| 駐輪場 |
- |
土地面積 |
- |
| 接道状況 |
-
|
用途地域 |
- |
| 間取り |
- |
建物構造 |
SRC |
| 建物名・部屋番号 |
|
| リフォーム履歴 |
- |
| リノベーション履歴 |
- |
| 特記事項 |
OAフロア |
| 備考 |
管理形態/管理員の勤務形態:-/-
設備の整った使い勝手の良い物件です。詳細につきましてはお気軽にお問い合わせ下さい。
機械警備/非接触IC錠対応/OAフロア対応/男女別トイレ/バイク、自転車置場あり/周辺に貸主の自社駐車場あり/【EV】乗用2基、人荷用1基(人荷用は4階まで)/2007年耐震改修実施済/事務所用途以外でのご使用の方は恐れ入りますがお問合せご遠慮くださいますようお願い申し上げます。
|
| エネルギー消費性能 |
- |
| 断熱性能 |
- |
| 目安光熱費 |
- |
| バス・トイレ |
男女別トイレ、トイレ |
| キッチン |
- |
| 設備・サービス |
エアコン、インターネット対応、光ファイバー |
| その他 |
荷積みスペース、エレベーター2基以上、人荷用エレベーター、エレベーター |
| 契約期間 |
2年 |
条件等 |
-
|
| 引渡可能時期 |
指定有り2026年1月1日 |
現況 |
空 |
| 更新料 |
- |
物件番号 |
1084932898 |
| 情報公開日 |
2025年7月12日 |
次回更新予定日 |
2025年10月27日 |
| ケータイ用バーコード |
- スマートフォンでこの物件を見る
- スマートフォンからもこの物件をご覧になれます。
|
※「-」と表示されている項目については、情報提供会社にご確認ください。
ここから簡単にお問い合わせをすることができます。
(SSLでの暗号化での送信を希望されるお客さまは
こちら
よりお問い合わせください)
お問い合わせを行う前に
「個人情報の取り扱いについて」を必ずお読みください。
「個人情報の取り扱いについて」に同意いただいた場合は「上記にご同意の上 確認画面へ進む」のボタンをクリックしてください。
個人情報の取り扱いについて
皆さまが送付された個人情報はアットホーム(株)のサーバを経由し、お問い合わせ先の不動産会社にメールまたはFAXにて転送されるためアットホーム(株)にも保管されます。アットホーム(株)で保管された個人情報の取り扱いについては、【こちら】をご覧ください。
また、本画面でご記入いただいた個人情報は、お問い合わせ先の不動産会社でも保管します。 お問い合わせ先の不動産会社が保管する個人情報の取り扱いについては、不動産会社に直接お問い合わせください。
東京都知事免許(7)第70546号 |
|---|
- 交通:
- JR山手線/東京駅 徒歩9分
- 東京都中央区日本橋兜町3-3 兜町平和ビル6F
- TEL:
- 03-3669-9000
- FAX:
- 03-3669-9001
- 所属団体:
- (公社)全日本不動産協会会員(公社)首都圏不動産公正取引協議会加盟
取引態様:仲介  - 00065869
|
- スマートフォンで
この不動産会社を見る

|
- 提携サイト等より掲載されている物件情報につきましては、不動産会社詳細情報にリンクされていないものがあります。
- 物件に関するお問合せは、物件詳細ページの「情報提供会社」に表示されている不動産会社へ直接お願いいたします。
- 間取図は、現況を優先させていただきます。
- 映像は物件の一部を撮影したものです。物件の契約にあたっての最終判断はご自身の判断に基づいて行ってください。
- 仲介手数料について

アットホームは物件情報の適正化に努めております。
内容に誤りがある場合にはこちらへご連絡ください。