東京都品川区西五反田7丁目(五反田駅)の貸事務所:物件詳細
交通 所在地 |
駅徒歩 |
賃料 管理費等 |
敷金/保証金 礼金 |
使用部分面積 坪数/坪単価 |
物件種目 築年月 |
|
JR山手線/五反田
東京都品川区西五反田7丁目
|
7分
|
95.69万円
159,478円
|
6ヶ月 / なし
1ヶ月
|
239.64m²
72.49坪/1.3201万円
|
貸事務所
1990年6月(築35年7ヶ月)
|
|
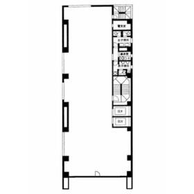
間取図
|
外観
外観もきれいです
|
その他の画像
|
| 交通 | JR山手線 五反田駅 徒歩7分 |
|---|
| その他の交通 | 都営浅草線 五反田駅 徒歩7分 東急池上線 大崎広小路駅 徒歩7分 |
| 所在地 |
東京都品川区西五反田7丁目
|
| 物件種目 |
貸事務所 |
| 賃料 |
95.69万円 |
管理費等 |
159,478円 |
| 敷金 / 保証金 |
6ヶ月 / なし |
礼金 |
1ヶ月 |
| 敷引 |
- |
坪単価 |
1.3201万円 |
| 保証金償却 |
- |
権利金 |
- |
| 造作譲渡 |
- |
その他一時金 |
なし |
| 維持費等 |
- |
保険等 |
- |
| クレジットカード決済 |
初期費用可 |
| 使用部分面積 |
239.64m² |
坪数 |
72.49坪 |
| 築年月 |
1990年6月(築35年7ヶ月)
|
階建 / 階 |
10階建 / 3階 |
| 駐車場 |
有 440,001円/月(空き1台) |
バイク置き場 |
無 |
| 駐輪場 |
無 |
土地面積 |
- |
| 接道状況 |
-
|
用途地域 |
- |
| 間取り |
- |
建物構造 |
SRC |
| 建物名・部屋番号 |
SDI五反田ビル |
| リフォーム履歴 |
- |
| リノベーション履歴 |
- |
| 特記事項 |
OAフロア、24時間セキュリティー、IT重説対応物件 |
| 備考 |
賃貸保証等:加入要(総賃料の100%)
管理形態/管理員の勤務形態:-/-
IT重説対応物件
ご契約金のクレジット決済可能です。業種や業態ご相談下さい。
当物件に間して分からない事があれば、お気軽にお問い合わせくださいませ。
地域情報など、お部屋の資料では分からない事も丁寧にご説明させていただきます。
|
| エネルギー消費性能 |
- |
| 断熱性能 |
- |
| 目安光熱費 |
- |
| バス・トイレ |
男女別トイレ、トイレ |
| キッチン |
- |
| 設備・サービス |
防犯カメラ、給湯、ビルトインエアコン、エアコン、暖房、インターネット対応、光ファイバー |
| その他 |
エレベーター2基以上、エレベーター |
| 契約期間 |
2年 |
条件等 |
-
|
| 引渡可能時期 |
即時 |
現況 |
空 |
| 更新料 |
- |
物件番号 |
1130398615 |
| 情報公開日 |
2025年12月11日 |
次回更新予定日 |
2025年12月25日 |
| ケータイ用バーコード |
- スマートフォンでこの物件を見る
- スマートフォンからもこの物件をご覧になれます。
|
※「-」と表示されている項目については、情報提供会社にご確認ください。
| 周辺施設 |
東急池上線 荏原中延駅 |
| 距離 |
1805m |
写真を見る |
| 周辺施設 |
Wing品川 |
| 距離 |
2164m |
写真を見る |
| 周辺施設 |
築地銀だこ |
| 距離 |
2055m |
写真を見る |
| 周辺施設 |
珈琲館大井町店 |
| 距離 |
2681m |
写真を見る |
| 周辺施設 |
東急ストアフードステーション中延店 |
| 距離 |
2047m |
写真を見る |
| 周辺施設 |
ドコモショップ大井町店 |
| 距離 |
2751m |
写真を見る |
ここから簡単にお問い合わせをすることができます。
(SSLでの暗号化での送信を希望されるお客さまは
こちら
よりお問い合わせください)
お問い合わせを行う前に
「個人情報の取り扱いについて」を必ずお読みください。
「個人情報の取り扱いについて」に同意いただいた場合は「上記にご同意の上 確認画面へ進む」のボタンをクリックしてください。
個人情報の取り扱いについて
皆さまが送付された個人情報はアットホーム(株)のサーバを経由し、お問い合わせ先の不動産会社にメールまたはFAXにて転送されるためアットホーム(株)にも保管されます。アットホーム(株)で保管された個人情報の取り扱いについては、【こちら】をご覧ください。
また、本画面でご記入いただいた個人情報は、お問い合わせ先の不動産会社でも保管します。 お問い合わせ先の不動産会社が保管する個人情報の取り扱いについては、不動産会社に直接お問い合わせください。
国土交通大臣免許(1)第10546号 |
|---|
- 交通:
- JR京浜東北線/大森駅 徒歩1分
- 東京都大田区山王2丁目8-26 東辰ビル2階
- TEL:
- 03-6303-7034
- FAX:
- 03-6303-7035
- 所属団体:
- (公社)全日本不動産協会会員(公社)首都圏不動産公正取引協議会加盟
取引態様:仲介  - 00274672
|
- スマートフォンで
この不動産会社を見る

|
- 提携サイト等より掲載されている物件情報につきましては、不動産会社詳細情報にリンクされていないものがあります。
- 物件に関するお問合せは、物件詳細ページの「情報提供会社」に表示されている不動産会社へ直接お願いいたします。
- 間取図は、現況を優先させていただきます。
- 映像は物件の一部を撮影したものです。物件の契約にあたっての最終判断はご自身の判断に基づいて行ってください。
- 仲介手数料について

アットホームは物件情報の適正化に努めております。
内容に誤りがある場合にはこちらへご連絡ください。