愛知県一宮市本町4丁目(尾張一宮駅)の貸事務所:物件詳細
交通 所在地 |
駅徒歩 |
賃料 管理費等 |
敷金/保証金 礼金 |
使用部分面積 坪数/坪単価 |
物件種目 築年月 |
東海道本線/尾張一宮
愛知県一宮市本町4丁目
|
8分
|
15.9357万円
なし
|
4ヶ月 / なし
なし
|
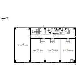
43.57m²
13.17坪/1.2091万円
|
貸事務所
1987年8月(築38年3ヶ月)
|
間取図
|
外観
|
<
その他の画像
>
|
交通 | 東海道本線 尾張一宮駅 徒歩8分 |
---|
その他の交通 | 名鉄名古屋本線 名鉄一宮駅 徒歩8分 |
所在地 |
愛知県一宮市本町4丁目
|
物件種目 |
貸事務所 |
賃料 |
15.9357万円 |
管理費等 |
なし |
敷金 / 保証金 |
4ヶ月 / なし |
礼金 |
なし |
敷引 |
- |
坪単価 |
1.2091万円 |
保証金償却 |
- |
権利金 |
- |
造作譲渡 |
- |
その他一時金 |
なし |
維持費等 |
- |
保険等 |
- |
使用部分面積 |
43.57m² |
坪数 |
13.17坪 |
築年月 |
1987年8月(築38年3ヶ月)
|
階建 / 階 |
3階建 / 3階 |
駐車場 |
有 22,000円/月(空き13台) 機械式駐車場 上下段セット貸し月額22,000円(税込)敷金1ヶ月、手数料1.1ヶ月(税込) 平置き駐車場 月額16,500円(税込)敷金1ヶ月、手数料1.1ヶ月(税込) |
バイク置き場 |
無 |
駐輪場 |
無 |
土地面積 |
514.20m²(公簿) |
接道状況 |
-
|
用途地域 |
商業地域 |
間取り |
- |
建物構造 |
RC |
アピールポイント |
ビル名称変更予定。
2025年末大規模リニューアル工事予定! |
建物名・部屋番号 |
CUBE一宮ビル 302 |
リフォーム履歴 |
- |
リノベーション履歴 |
- |
特記事項 |
24時間利用可、最上階 |
備考 |
賃貸保証等:利用可(初回契約時:65%、更新時:10%、優良割プラン有(過去1年間の賃料滞納回数が1回以下なら、初回70%更新保証料なし))
管理形態/管理員の勤務形態:-/-
|
エネルギー消費性能 |
- |
断熱性能 |
- |
目安光熱費 |
- |
バス・トイレ |
- |
キッチン |
- |
設備・サービス |
- |
その他 |
エレベーター |
契約期間 |
2年 |
条件等 |
-
|
引渡可能時期 |
相談 |
現況 |
空 |
仲介手数料 |
1.1ヶ月 |
|
|
更新料 |
- |
物件番号 |
1147950913 |
情報公開日 |
2025年7月24日 |
次回更新予定日 |
2025年10月22日 |
ケータイ用バーコード |
- スマートフォンでこの物件を見る
- スマートフォンからもこの物件をご覧になれます。
|
※「-」と表示されている項目については、情報提供会社にご確認ください。
周辺施設 |
ファッションセンターしまむら新生店 |
距離 |
732m |
周辺施設 |
セブンイレブン一宮本町4丁目店 |
距離 |
322m |
ここから簡単にお問い合わせをすることができます。
(SSLでの暗号化での送信を希望されるお客さまは
こちら
よりお問い合わせください)
お問い合わせを行う前に
「個人情報の取り扱いについて」を必ずお読みください。
「個人情報の取り扱いについて」に同意いただいた場合は「上記にご同意の上 確認画面へ進む」のボタンをクリックしてください。
個人情報の取り扱いについて
皆さまが送付された個人情報はアットホーム(株)のサーバを経由し、お問い合わせ先の不動産会社にメールまたはFAXにて転送されるためアットホーム(株)にも保管されます。アットホーム(株)で保管された個人情報の取り扱いについては、【こちら】をご覧ください。
また、本画面でご記入いただいた個人情報は、お問い合わせ先の不動産会社でも保管します。 お問い合わせ先の不動産会社が保管する個人情報の取り扱いについては、不動産会社に直接お問い合わせください。
国土交通大臣免許(2)第8884号 |
---|
- 交通:
- 名古屋市桜通線/丸の内駅 徒歩4分
- 愛知県名古屋市中区丸の内3丁目14-32 丸の内3丁目ビル7F
- TEL:
- 052-990-9151
- FAX:
- 052-218-7795
- 所属団体:
- (公社)全日本不動産協会会員東海不動産公正取引協議会加盟
取引態様:仲介  - 40406133
|
- スマートフォンで
この不動産会社を見る

|
- 提携サイト等より掲載されている物件情報につきましては、不動産会社詳細情報にリンクされていないものがあります。
- 物件に関するお問合せは、物件詳細ページの「情報提供会社」に表示されている不動産会社へ直接お願いいたします。
- 間取図は、現況を優先させていただきます。
- 映像は物件の一部を撮影したものです。物件の契約にあたっての最終判断はご自身の判断に基づいて行ってください。
- 仲介手数料について

アットホームは物件情報の適正化に努めております。
内容に誤りがある場合にはこちらへご連絡ください。