東京都品川区西五反田2丁目(五反田駅)の貸事務所:物件詳細
				
					
					
				
														
	
		
			
				| 交通 所在地
 | 駅徒歩 | 賃料 管理費等
 | 敷金/保証金 礼金
 | 使用部分面積 坪数/坪単価
 | 物件種目 築年月
 | 
		
		
			
								| JR山手線/五反田
												  東京都品川区西五反田2丁目 | 
						5分
 | 
						90.6191万円
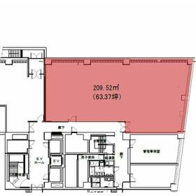
					 なし | 10ヶ月 / なし なし | 209.52m² 63.37坪/1.4298万円 | 貸事務所(建物一括) 1977年10月(築48年1ヶ月)
 | 
		
	
		
		
		
					| 間取図 ? | 外観 ? | 
		
		| 
				
										
						
							 その他の画像 | 
				
 
		
			
																		          | 交通 | JR山手線 五反田駅 徒歩5分 | 
|---|
| その他の交通 | 東急池上線 大崎広小路駅 徒歩11分 東急目黒線 不動前駅 徒歩12分 | 
|---|
			
				| 所在地 | 東京都品川区西五反田2丁目 | 
		
		
			
				| 物件種目 | 貸事務所(建物一括) | 
			
				| 賃料 | 90.6191万円 | 管理費等 | なし | 
			
				| 敷金 / 保証金 | 10ヶ月 / なし | 礼金 | なし | 
			
				| 敷引 | - | 坪単価 | 1.4298万円 | 
			
				| 保証金償却 | - | 権利金 | - | 
			
				| 造作譲渡 | - | その他一時金 | なし | 
			
				| 維持費等 | - | 保険等 | - | 
					
		
			
				| 使用部分面積 | 209.52m² | 坪数 | 63.37坪 | 
			
				| 築年月 | 1977年10月(築48年1ヶ月) | 階建 / 階 | 地上9階地下1階建 / 1階 | 
			
				| 駐車場 | - | バイク置き場 | - | 
			
				| 駐輪場 | - | 土地面積 | - | 
			
				| 接道状況 | - | 用途地域 | 商業地域 | 
			
				| 間取り | - | 建物構造 | SRC | 
						
				| 建物名・部屋番号 | 五反田ブリックビル | 
			
				| リフォーム履歴 | - | 
			
				| リノベーション履歴 | - | 
			
				| 特記事項 | OAフロア、飲食店不可、角部屋 | 
			
				| 備考 | 
																	管理形態/管理員の勤務形態:-/-
											ご契約金のクレジット決済可能です。業種や業態ご相談下さい。
 耐震診断実施済み 新耐震基準 倉庫使用 コールセンター相談可能 民泊不可当物件に間して分からない事があれば、お気軽にお問い合わせくださいませ。
 地域情報など、お部屋の資料では分からない事も丁寧にご説明させていただきます。
 
 | 
		
				
		
		| エネルギー消費性能 | - | 
	
		| 断熱性能 | - | 
	
		| 目安光熱費 | - | 
	
		
									
				| バス・トイレ | 男女別トイレ、トイレ | 
						
				| キッチン | - | 
						
				| 設備・サービス | - | 
						
				| その他 | エレベーター2基以上、エレベーター | 
					
		
			
				| 契約期間 | 3年 | 条件等 | 定期借家   | 
			
				| 引渡可能時期 | 即時 | 現況 | 空 | 
						
				| 更新料 | - | 物件番号 | 1171138807 | 
			
				| 情報公開日 | 2025年10月28日 | 次回更新予定日 | 2025年11月11日 | 
						
				| ケータイ用バーコード | 
					
					
					
					スマートフォンでこの物件を見るスマートフォンからもこの物件をご覧になれます。 | 
					
	 
	 									※「-」と表示されている項目については、情報提供会社にご確認ください。
						
	
			
			
					
			
				
					
						
							| 周辺施設 | Wing品川 | 
						
							| 距離 | 2003m | 写真を見る | 
					
				
			 
		 
		 
				
				
			
			
				
					
						
							| 周辺施設 | 珈琲館大井町店 | 
						
							| 距離 | 3041m | 写真を見る | 
					
				
			 
		 
					
			
				
					
						
							| 周辺施設 | ドコモショップ大井町店 | 
						
							| 距離 | 3111m | 写真を見る | 
					
				
			 
		 
		 
				
			
			
				
					
						
							| 周辺施設 | 築地銀だこ | 
						
							| 距離 | 2590m | 写真を見る | 
					
				
			 
		 
					
			
				
					
						
							| 周辺施設 | 積水ハウスミュージカルシアター 四季劇場 [夏] | 
						
							| 距離 | 3161m | 写真を見る | 
					
				
			 
		 
		 
		 									
												
					
					  ここから簡単にお問い合わせをすることができます。
(SSLでの暗号化での送信を希望されるお客さまは
													こちら
											  よりお問い合わせください)
					  
					
						
						
					
					お問い合わせを行う前に
「個人情報の取り扱いについて」を必ずお読みください。
「個人情報の取り扱いについて」に同意いただいた場合は「上記にご同意の上 確認画面へ進む」のボタンをクリックしてください。 
						個人情報の取り扱いについて
						皆さまが送付された個人情報はアットホーム(株)のサーバを経由し、お問い合わせ先の不動産会社にメールまたはFAXにて転送されるためアットホーム(株)にも保管されます。アットホーム(株)で保管された個人情報の取り扱いについては、【こちら】をご覧ください。
						また、本画面でご記入いただいた個人情報は、お問い合わせ先の不動産会社でも保管します。 お問い合わせ先の不動産会社が保管する個人情報の取り扱いについては、不動産会社に直接お問い合わせください。
					 
				 
				
														
				  
				  
					| 国土交通大臣免許(1)第10546号 | 
|---|
| 交通:JR京浜東北線/蒲田駅 徒歩1分東京都大田区西蒲田7丁目46-5 TEL:03-6715-8963FAX:03-6715-8964所属団体:(公社)全日本不動産協会会員(公社)首都圏不動産公正取引協議会加盟
 取引態様:仲介 00268146
 | 
							  
								スマートフォンでこの不動産会社を見る
 | 
					  
					 
				 
							
						
												
			
					
- 提携サイト等より掲載されている物件情報につきましては、不動産会社詳細情報にリンクされていないものがあります。
- 物件に関するお問合せは、物件詳細ページの「情報提供会社」に表示されている不動産会社へ直接お願いいたします。
- 間取図は、現況を優先させていただきます。
- 映像は物件の一部を撮影したものです。物件の契約にあたっての最終判断はご自身の判断に基づいて行ってください。
- 仲介手数料について 
アットホームは物件情報の適正化に努めております。
内容に誤りがある場合にはこちらへご連絡ください。