大阪府大阪市中央区道修町1丁目(北浜駅)の貸事務所:物件詳細
交通 所在地 |
駅徒歩 |
賃料 管理費等 |
敷金/保証金 礼金 |
使用部分面積 坪数/坪単価 |
物件種目 築年月 |
地下鉄堺筋線/北浜
大阪府大阪市中央区道修町1丁目
|
5分
|
16.5088万円
なし
|
6ヶ月 / なし
なし
|
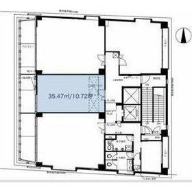
35.47m²
10.72坪/1.5387万円
|
貸事務所(建物一括)
1990年8月(築35年3ヶ月)
|
間取図
|
外観
|
その他の画像
|
交通 | 地下鉄堺筋線 北浜駅 徒歩5分 |
---|
その他の交通 | 京阪本線 北浜駅 徒歩5分 |
所在地 |
大阪府大阪市中央区道修町1丁目
|
物件種目 |
貸事務所(建物一括) |
賃料 |
16.5088万円 |
管理費等 |
なし |
敷金 / 保証金 |
6ヶ月 / なし |
礼金 |
なし |
敷引 |
- |
坪単価 |
1.5387万円 |
保証金償却 |
- |
権利金 |
- |
造作譲渡 |
- |
その他一時金 |
なし |
維持費等 |
- |
保険等 |
- |
使用部分面積 |
35.47m² |
坪数 |
10.72坪 |
築年月 |
1990年8月(築35年3ヶ月)
|
階建 / 階 |
9階建 / 9階 |
駐車場 |
有 33,000円/月 |
バイク置き場 |
- |
駐輪場 |
- |
土地面積 |
- |
接道状況 |
-
|
用途地域 |
- |
間取り |
- |
建物構造 |
SRC |
建物名・部屋番号 |
902 |
リフォーム履歴 |
- |
リノベーション履歴 |
- |
特記事項 |
最上階 |
備考 |
賃貸保証等:加入要(貸主指定)
管理形態/管理員の勤務形態:-/-
保証会社・火災保険加入要。
|
エネルギー消費性能 |
- |
断熱性能 |
- |
目安光熱費 |
- |
バス・トイレ |
トイレ |
キッチン |
- |
設備・サービス |
エアコン |
その他 |
エレベーター |
契約期間 |
2年 |
条件等 |
-
|
引渡可能時期 |
2026年1月下旬予定 |
現況 |
居住中 |
更新料 |
- |
物件番号 |
1171222407 |
情報公開日 |
2025年10月11日 |
次回更新予定日 |
2025年10月25日 |
ケータイ用バーコード |
- スマートフォンでこの物件を見る
- スマートフォンからもこの物件をご覧になれます。
|
※「-」と表示されている項目については、情報提供会社にご確認ください。
周辺施設 |
フレスコ北浜店 |
距離 |
266m |
写真を見る |
周辺施設 |
ライフ天神橋店 |
距離 |
484m |
写真を見る |
周辺施設 |
スギ薬局瓦町一丁目 |
距離 |
396m |
写真を見る |
周辺施設 |
セブンイレブン大阪道修町1丁目 |
距離 |
145m |
写真を見る |
ここから簡単にお問い合わせをすることができます。
(SSLでの暗号化での送信を希望されるお客さまは
こちら
よりお問い合わせください)
お問い合わせを行う前に
「個人情報の取り扱いについて」を必ずお読みください。
「個人情報の取り扱いについて」に同意いただいた場合は「上記にご同意の上 確認画面へ進む」のボタンをクリックしてください。
個人情報の取り扱いについて
皆さまが送付された個人情報はアットホーム(株)のサーバを経由し、お問い合わせ先の不動産会社にメールまたはFAXにて転送されるためアットホーム(株)にも保管されます。アットホーム(株)で保管された個人情報の取り扱いについては、【こちら】をご覧ください。
また、本画面でご記入いただいた個人情報は、お問い合わせ先の不動産会社でも保管します。 お問い合わせ先の不動産会社が保管する個人情報の取り扱いについては、不動産会社に直接お問い合わせください。
大阪府知事免許(6)第47283号 |
---|
- 交通:
- 地下鉄御堂筋線/なんば駅 徒歩4分
- 大阪府大阪市浪速区難波中1丁目1-16
- TEL:
- 06-6633-2100
- FAX:
- 06-6633-2600
- 所属団体:
- (一社)大阪府宅地建物取引業協会会員(公社)近畿地区不動産公正取引協議会加盟
取引態様:仲介  - 50014473
|
- スマートフォンで
この不動産会社を見る

|
- 提携サイト等より掲載されている物件情報につきましては、不動産会社詳細情報にリンクされていないものがあります。
- 物件に関するお問合せは、物件詳細ページの「情報提供会社」に表示されている不動産会社へ直接お願いいたします。
- 間取図は、現況を優先させていただきます。
- 映像は物件の一部を撮影したものです。物件の契約にあたっての最終判断はご自身の判断に基づいて行ってください。
- 仲介手数料について

アットホームは物件情報の適正化に努めております。
内容に誤りがある場合にはこちらへご連絡ください。