東京都新宿区新小川町(飯田橋駅)の貸事務所:物件詳細
交通 所在地 |
駅徒歩 |
賃料 管理費等 |
敷金/保証金 礼金 |
使用部分面積 坪数/坪単価 |
物件種目 築年月 |
|
JR総武線/飯田橋
東京都新宿区新小川町
|
8分
|
17.29万円
-
|
なし / 3ヶ月
1ヶ月
|
51.93m²
15.70坪/1.1007万円
|
貸事務所
1980年5月(築45年11ヶ月)
|
|
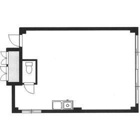
間取図
302号室 15.71坪(51.93㎡)
|
外観
鮮やかなブルーの差し色の外壁が目を引くビルです♪
|
<
その他の画像
>
|
| 交通 | JR総武線 飯田橋駅 徒歩8分 |
|---|
| その他の交通 | 東京メトロ東西線 飯田橋駅 徒歩8分 東京メトロ南北線 飯田橋駅 徒歩8分 |
| 所在地 |
東京都新宿区新小川町
|
| 物件種目 |
貸事務所 |
| 賃料 |
17.29万円 |
管理費等 |
- |
| 敷金 / 保証金 |
なし / 3ヶ月 |
礼金 |
1ヶ月 |
| 敷引 |
- |
坪単価 |
1.1007万円 |
| 保証金償却 |
- |
権利金 |
- |
| 造作譲渡 |
- |
その他一時金 |
- |
| 維持費等 |
- |
保険等 |
要 |
| 使用部分面積 |
51.93m² |
坪数 |
15.70坪 |
| 築年月 |
1980年5月(築45年11ヶ月)
|
階建 / 階 |
5階建 / 3階 |
| 駐車場 |
- |
バイク置き場 |
- |
| 駐輪場 |
- |
土地面積 |
- |
| 接道状況 |
-
|
用途地域 |
- |
| 間取り |
- |
建物構造 |
RC |
| アピールポイント |
★現在、短期使用中です。
複数線乗り入れあり!「飯田橋」駅徒歩8分ですが落ち着いた立地です。
室内には専用トイレ・流し台がございます。
採光のとれる明るいオフィスです。
徒歩30秒圏内にコンビニもあり便利です!
◆床:タイルカーペット
◆室内専用トイレ
◆室内に流し台有 |
| 建物名・部屋番号 |
小宮山ビル 302号室 |
| リフォーム履歴 |
- |
| リノベーション履歴 |
- |
| 特記事項 |
飲食店不可、角部屋 |
| 備考 |
賃貸保証等:加入要(初回保証委託料:賃料等月額固定費の1ヶ月分 次年度:更新料 等)
管理形態/管理員の勤務形態:-/-
★現在、短期使用中。
◆床:タイルカーペット
◆室内専用トイレ
◆室内に流し台有
|
| エネルギー消費性能 |
- |
| 断熱性能 |
- |
| 目安光熱費 |
- |
| バス・トイレ |
専有部分にトイレあり |
| キッチン |
- |
| 設備・サービス |
個別空調、エアコン、暖房、冷房、光ファイバー |
| その他 |
- |
| 契約期間 |
2年 |
条件等 |
-
|
| 引渡可能時期 |
2027年2月予定 |
現況 |
使用中 |
| 仲介手数料 |
1ヶ月 |
|
|
| 更新料 |
新賃料 1ヶ月 |
物件番号 |
6960204223 |
| 情報公開日 |
2025年10月8日 |
次回更新予定日 |
2026年4月6日 |
| ケータイ用バーコード |
- スマートフォンでこの物件を見る
- スマートフォンからもこの物件をご覧になれます。
|
※「-」と表示されている項目については、情報提供会社にご確認ください。
| 周辺施設 |
独立行政法人地域医療機能推進機構JCHO東京新宿メディカルセンター |
| 距離 |
437m |
ここから簡単にお問い合わせをすることができます。
(SSLでの暗号化での送信を希望されるお客さまは
こちら
よりお問い合わせください)
お問い合わせを行う前に
「個人情報の取り扱いについて」を必ずお読みください。
「個人情報の取り扱いについて」に同意いただいた場合は「上記にご同意の上 確認画面へ進む」のボタンをクリックしてください。
個人情報の取り扱いについて
皆さまが送付された個人情報はアットホーム(株)のサーバを経由し、お問い合わせ先の不動産会社にメールまたはFAXにて転送されるためアットホーム(株)にも保管されます。アットホーム(株)で保管された個人情報の取り扱いについては、【こちら】をご覧ください。
また、本画面でご記入いただいた個人情報は、お問い合わせ先の不動産会社でも保管します。 お問い合わせ先の不動産会社が保管する個人情報の取り扱いについては、不動産会社に直接お問い合わせください。
東京都知事免許(5)第79601号 |
|---|
- 交通:
- JR総武線/飯田橋駅 徒歩3分
- 東京都千代田区飯田橋4丁目5-12 SK飯田橋ビル3F
- TEL:
- 03-3234-9666
- FAX:
- 03-3234-9660
- 所属団体:
- (公社)全日本不動産協会会員(公社)首都圏不動産公正取引協議会加盟
取引態様:仲介  - 00107300
|
- スマートフォンで
この不動産会社を見る

|
- 提携サイト等より掲載されている物件情報につきましては、不動産会社詳細情報にリンクされていないものがあります。
- 物件に関するお問合せは、物件詳細ページの「情報提供会社」に表示されている不動産会社へ直接お願いいたします。
- 間取図は、現況を優先させていただきます。
- 映像は物件の一部を撮影したものです。物件の契約にあたっての最終判断はご自身の判断に基づいて行ってください。
- 仲介手数料について

アットホームは物件情報の適正化に努めております。
内容に誤りがある場合にはこちらへご連絡ください。