東京都新宿区下宮比町(飯田橋駅)の貸事務所:物件詳細
交通 所在地 |
駅徒歩 |
賃料 管理費等 |
敷金/保証金 礼金 |
使用部分面積 坪数/坪単価 |
物件種目 築年月 |
|
JR総武線/飯田橋
東京都新宿区下宮比町
|
3分
|
8.8万円
9,400円
|
3ヶ月 / なし
1ヶ月
|
20.80m²
6.29坪/1.3987万円
|
貸事務所
1978年8月(築47年7ヶ月)
|
|
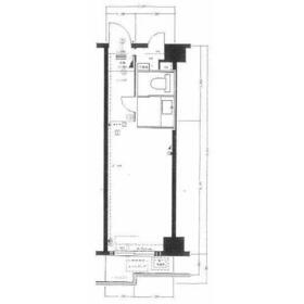
間取図
|
|
<
その他の画像
>
|
| 交通 | JR総武線 飯田橋駅 徒歩3分 |
|---|
| その他の交通 | 都営大江戸線 牛込神楽坂駅 徒歩9分 東京メトロ東西線 神楽坂駅 徒歩8分 |
| 所在地 |
東京都新宿区下宮比町
|
| 物件種目 |
貸事務所 |
| 賃料 |
8.8万円 |
管理費等 |
9,400円 |
| 敷金 / 保証金 |
3ヶ月 / なし |
礼金 |
1ヶ月 |
| 敷引 |
- |
坪単価 |
1.3987万円 |
| 保証金償却 |
- |
権利金 |
- |
| 造作譲渡 |
- |
その他一時金 |
- |
| 維持費等 |
- |
保険等 |
要 2年 |
| 使用部分面積 |
20.80m² |
坪数 |
6.29坪 |
| 築年月 |
1978年8月(築47年7ヶ月)
|
階建 / 階 |
地上11階地下1階建 / 8階 |
| 駐車場 |
- |
バイク置き場 |
- |
| 駐輪場 |
- |
土地面積 |
- |
| 接道状況 |
-
|
用途地域 |
- |
| 間取り |
- |
建物構造 |
SRC |
| アピールポイント |
【物件名】飯田橋ハイタウン 808
【所在地】東京都新宿区下宮比町2-28
【士業やスタートアップオフィスにおすすめ】
■登記可能
■グレード感のある分譲マンションの一室
■吹き抜けロビーで打ち合わせもできます
■2015年大規模修繕済み!
■夜間オートロック(8時~20時開放)
■貸会議室あり(有料)
※備考※
・夜間オートロック
・管理費非課税
・ケーブルテレビ導入(別途契約)
・コインランドリーあり
・駐車場:有料月極・時間貸し
・ロビー(64㎡)
・24時間管理常駐
・エレベーター3基
・夜間オートロック(8時~20時開放)
・貸会議室あり(有料)
飯田橋ハイタウンのお問い合わせは、
事業用不動産専門の株式会社エンジンテラスまで! |
| 建物名・部屋番号 |
飯田橋ハイタウン 808 |
| リフォーム履歴 |
- |
| リノベーション履歴 |
- |
| 特記事項 |
24時間利用可 |
| 備考 |
賃貸保証等:加入要(契約プランに基づく)
管理形態/管理員の勤務形態:-/-
施設内会議室あり:20名の口の字可能
・夜間オートロック
・管理費非課税
・ケーブルテレビ導入(別途契約)
・コインランドリーあり
・駐車場:有料月極・時間貸し
・ロビー(64㎡)
・24時間管理常駐
・エレベーター3基
・夜間オートロック(8時~20時開放)
・貸会議室あり(有料)
|
| エネルギー消費性能 |
- |
| 断熱性能 |
- |
| 目安光熱費 |
- |
| バス・トイレ |
専有部分にトイレあり |
| キッチン |
- |
| 設備・サービス |
オートロック、給湯、エアコン |
| その他 |
エレベーター2基以上 |
| 契約期間 |
2年 |
条件等 |
-
|
| 引渡可能時期 |
即時 |
現況 |
空 |
| 仲介手数料 |
1ヶ月 |
|
|
| 更新料 |
新賃料 1ヶ月 |
物件番号 |
6963226420 |
| 情報公開日 |
2025年12月4日 |
次回更新予定日 |
2026年2月9日 |
| ケータイ用バーコード |
- スマートフォンでこの物件を見る
- スマートフォンからもこの物件をご覧になれます。
|
※「-」と表示されている項目については、情報提供会社にご確認ください。
| 周辺施設 |
まいばすけっと飯田橋店 |
| 距離 |
169m |
写真を見る |
| 周辺施設 |
ローソン新宿下宮比町店 |
| 距離 |
215m |
写真を見る |
| 周辺施設 |
タリーズコーヒー飯田橋東口店 |
| 距離 |
287m |
写真を見る |
| 周辺施設 |
独立行政法人地域医療機能推進機構JCHO東京新宿メディカルセンター |
| 距離 |
209m |
写真を見る |
| 周辺施設 |
飯田橋駅東口郵便局 |
| 距離 |
167m |
写真を見る |
| 周辺施設 |
みずほ銀行飯田橋支店 |
| 距離 |
222m |
写真を見る |
| 周辺施設 |
文京区役所 |
| 距離 |
1095m |
写真を見る |
| 周辺施設 |
文京区小石川運動場 |
| 距離 |
315m |
写真を見る |
ここから簡単にお問い合わせをすることができます。
(SSLでの暗号化での送信を希望されるお客さまは
こちら
よりお問い合わせください)
お問い合わせを行う前に
「個人情報の取り扱いについて」を必ずお読みください。
「個人情報の取り扱いについて」に同意いただいた場合は「上記にご同意の上 確認画面へ進む」のボタンをクリックしてください。
個人情報の取り扱いについて
皆さまが送付された個人情報はアットホーム(株)のサーバを経由し、お問い合わせ先の不動産会社にメールまたはFAXにて転送されるためアットホーム(株)にも保管されます。アットホーム(株)で保管された個人情報の取り扱いについては、【こちら】をご覧ください。
また、本画面でご記入いただいた個人情報は、お問い合わせ先の不動産会社でも保管します。 お問い合わせ先の不動産会社が保管する個人情報の取り扱いについては、不動産会社に直接お問い合わせください。
東京都知事免許(3)第94555号 |
|---|
- 交通:
- JR山手線/新宿駅 徒歩4分
- 東京都渋谷区代々木2丁目15-12 クランツ南新宿203
- TEL:
- 03-5302-1885
- FAX:
- 03-5302-1886
- 所属団体:
- (公社)全日本不動産協会会員(公社)首都圏不動産公正取引協議会加盟
取引態様:仲介  - 00107309
|
- スマートフォンで
この不動産会社を見る

|
- 提携サイト等より掲載されている物件情報につきましては、不動産会社詳細情報にリンクされていないものがあります。
- 物件に関するお問合せは、物件詳細ページの「情報提供会社」に表示されている不動産会社へ直接お願いいたします。
- 間取図は、現況を優先させていただきます。
- 映像は物件の一部を撮影したものです。物件の契約にあたっての最終判断はご自身の判断に基づいて行ってください。
- 仲介手数料について

アットホームは物件情報の適正化に努めております。
内容に誤りがある場合にはこちらへご連絡ください。