東京都新宿区西新宿6丁目(西新宿駅)の貸事務所:物件詳細
交通 所在地 |
駅徒歩 |
賃料 管理費等 |
敷金/保証金 礼金 |
使用部分面積 坪数/坪単価 |
物件種目 築年月 |
|
東京メトロ丸ノ内線/西新宿
東京都新宿区西新宿6丁目
|
4分
|
266.04万円
532,092円
|
なし / 10ヶ月
なし
|
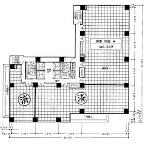
399.77m²
120.92坪/2.20万円
|
貸事務所
1994年6月(築31年10ヶ月)
|
|
間取図
|
|
<
その他の画像
>
|
| 交通 | 東京メトロ丸ノ内線 西新宿駅 徒歩4分 |
|---|
| その他の交通 | JR山手線 新宿駅 徒歩14分 都営大江戸線 都庁前駅 徒歩5分 |
| 所在地 |
東京都新宿区西新宿6丁目
|
| 物件種目 |
貸事務所 |
| 賃料 |
266.04万円 |
管理費等 |
532,092円 |
| 敷金 / 保証金 |
なし / 10ヶ月 |
礼金 |
なし |
| 敷引 |
- |
坪単価 |
2.20万円 |
| 保証金償却 |
- |
権利金 |
- |
| 造作譲渡 |
- |
その他一時金 |
- |
| 維持費等 |
- |
保険等 |
要 2年 |
| 使用部分面積 |
399.77m² |
坪数 |
120.92坪 |
| 築年月 |
1994年6月(築31年10ヶ月)
|
階建 / 階 |
地上13階地下2階建 / 13階 |
| 駐車場 |
有 44,000円/月 |
バイク置き場 |
- |
| 駐輪場 |
- |
土地面積 |
- |
| 接道状況 |
-
|
用途地域 |
- |
| 間取り |
- |
建物構造 |
RC |
| アピールポイント |
■物件名:パークウエストビル 1301-1303
■住所:東京都新宿区西新宿6丁目12-1
【男女別トイレ!】
■24時間利用可!
■OAフロア!
●西新宿駅徒歩3分、新宿駅からも徒歩圏内。
●黒川紀章設計全面ガラス張りのブランドビル
●事務所ビルの立ち並ぶ西新宿エリアに一際目立つ
インテリジェントビルです。
パークウエストビルのお問い合わせは、
事業用専門不動産の株式会社エンジンテラスまで! |
| 建物名・部屋番号 |
パークウエスト 1301-1303 |
| リフォーム履歴 |
- |
| リノベーション履歴 |
- |
| 特記事項 |
OAフロア、最上階、天井高2.5M以上 |
| 備考 |
賃貸保証等:加入要(契約プランに基づく)
管理形態/管理員の勤務形態:-/-
・管理人常駐(日勤)
・天井高:2.7M
・契約期間相談
・エントランス開放時間:月~土7:00~20:00/日・祝7:00~19:00
・キャンペーン実施中(2026年4月末まで)分割可能・礼金なし・償却なし・再契約料なし ・フリーレント期間相談可能
|
| エネルギー消費性能 |
- |
| 断熱性能 |
- |
| 目安光熱費 |
- |
| バス・トイレ |
共用部分に男女別トイレあり |
| キッチン |
- |
| 設備・サービス |
個別空調、エアコン、光ファイバー |
| その他 |
エレベーター2基以上、エレベーター |
| 契約期間 |
2年 |
条件等 |
定期借家
|
| 引渡可能時期 |
即時 |
現況 |
空 |
| 仲介手数料 |
1ヶ月 |
|
|
| 更新料 |
- |
物件番号 |
6964595765 |
| 情報公開日 |
2024年12月11日 |
次回更新予定日 |
2026年4月1日 |
| ケータイ用バーコード |
- スマートフォンでこの物件を見る
- スマートフォンからもこの物件をご覧になれます。
|
※「-」と表示されている項目については、情報提供会社にご確認ください。
| 周辺施設 |
マルエツプチ西新宿六丁目店 |
| 距離 |
357m |
| 周辺施設 |
ファミリーマート日土地西新宿ビル店 |
| 距離 |
243m |
| 周辺施設 |
タリーズコーヒー新宿オークタワー店 |
| 距離 |
307m |
ここから簡単にお問い合わせをすることができます。
(SSLでの暗号化での送信を希望されるお客さまは
こちら
よりお問い合わせください)
お問い合わせを行う前に
「個人情報の取り扱いについて」を必ずお読みください。
「個人情報の取り扱いについて」に同意いただいた場合は「上記にご同意の上 確認画面へ進む」のボタンをクリックしてください。
個人情報の取り扱いについて
皆さまが送付された個人情報はアットホーム(株)のサーバを経由し、お問い合わせ先の不動産会社にメールまたはFAXにて転送されるためアットホーム(株)にも保管されます。アットホーム(株)で保管された個人情報の取り扱いについては、【こちら】をご覧ください。
また、本画面でご記入いただいた個人情報は、お問い合わせ先の不動産会社でも保管します。 お問い合わせ先の不動産会社が保管する個人情報の取り扱いについては、不動産会社に直接お問い合わせください。
東京都知事免許(3)第94555号 |
|---|
- 交通:
- JR山手線/新宿駅 徒歩4分
- 東京都渋谷区代々木2丁目15-12 クランツ南新宿203
- TEL:
- 03-5302-1885
- FAX:
- 03-5302-1886
- 所属団体:
- (公社)全日本不動産協会会員(公社)首都圏不動産公正取引協議会加盟
取引態様:仲介  - 00107309
|
- スマートフォンで
この不動産会社を見る

|
- 提携サイト等より掲載されている物件情報につきましては、不動産会社詳細情報にリンクされていないものがあります。
- 物件に関するお問合せは、物件詳細ページの「情報提供会社」に表示されている不動産会社へ直接お願いいたします。
- 間取図は、現況を優先させていただきます。
- 映像は物件の一部を撮影したものです。物件の契約にあたっての最終判断はご自身の判断に基づいて行ってください。
- 仲介手数料について

アットホームは物件情報の適正化に努めております。
内容に誤りがある場合にはこちらへご連絡ください。