長野県長野市大字三才(三才駅)の貸事務所:物件詳細
交通 所在地 |
駅徒歩 |
賃料 管理費等 |
敷金/保証金 礼金 |
使用部分面積 坪数/坪単価 |
物件種目 築年月 |
|
しなの鉄道北しなの/三才
長野県長野市大字三才
|
11分
|
6.5万円
-
|
2ヶ月 / なし
なし
|
52.27m²
15.81坪/0.4111万円
|
貸事務所
1995年8月(築30年8ヶ月)
|
|
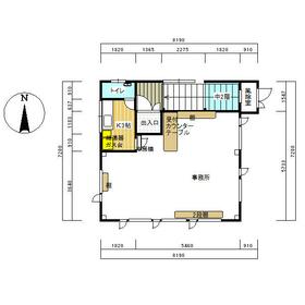
間取図
風除室有り2階の事務所です!
|
外観
接道広くゆったり車の出入りできます!
|
<
その他の画像
>
|
| 交通 | しなの鉄道北しなの 三才駅 徒歩11分 |
| 所在地 |
長野県長野市大字三才
|
| 物件種目 |
貸事務所 |
| 賃料 |
6.5万円 |
管理費等 |
- |
| 敷金 / 保証金 |
2ヶ月 / なし |
礼金 |
なし |
| 敷引 |
- |
坪単価 |
0.4111万円 |
| 保証金償却 |
- |
権利金 |
- |
| 造作譲渡 |
- |
その他一時金 |
- |
| 維持費等 |
- |
保険等 |
要 3年 借家人賠償責任特約付き |
| 使用部分面積 |
52.27m² |
坪数 |
15.81坪 |
| 築年月 |
1995年8月(築30年8ヶ月)
|
階建 / 階 |
2階建 / 2階 |
| 駐車場 |
有 無料(空き2台) |
バイク置き場 |
- |
| 駐輪場 |
- |
土地面積 |
150.00m²(公簿) |
| 接道状況 |
南 7.0m 公道
|
用途地域 |
- |
| 間取り |
1K(洋 19) |
建物構造 |
木造 |
| アピールポイント |
明るく、広く、使いやすいです!
18号線へのアクセスも良いです。 |
| 建物名・部屋番号 |
|
| リフォーム履歴 |
■水回り:2022年7月 給湯器 ■内装:2022年7月 トイレのクロス張替、事務所の網戸3か所張替、床の一部補修 ※実施年月は最も古い履歴を表示 |
| リノベーション履歴 |
- |
| 特記事項 |
- |
| 備考 |
賃貸保証等:加入要(100%(1か月分)、以後1年更新で1万円。※法人様の場合は法人代表者の連帯保証人が必須になります。)
管理形態/管理員の勤務形態:-/-
2022年に給湯器交換。
水道料金について:水道メーターは1階部分と共用となります。水道の料金の負担方法については貸主・借主協議のうえ取り決めとなります。
|
| エネルギー消費性能 |
- |
| 断熱性能 |
- |
| 目安光熱費 |
- |
| バス・トイレ |
共用部分にトイレあり |
| キッチン |
- |
| 設備・サービス |
給湯、プロパンガス、エアコン、冷房 |
| その他 |
- |
| 契約期間 |
3年 |
条件等 |
-
|
| 引渡可能時期 |
相談 |
現況 |
空 |
| 仲介手数料 |
1ヶ月 |
|
|
| 更新料 |
なし |
物件番号 |
6976700674 |
| 情報公開日 |
2026年3月10日 |
次回更新予定日 |
2026年3月24日 |
| ケータイ用バーコード |
- スマートフォンでこの物件を見る
- スマートフォンからもこの物件をご覧になれます。
|
※「-」と表示されている項目については、情報提供会社にご確認ください。
| 周辺施設 |
ニコニコレンタカー長野三才店 |
| 距離 |
228m |
| 周辺施設 |
長野県立総合リハビリテーションセンター |
| 距離 |
660m |
| 周辺施設 |
長野県障害者福祉センターサンアップル |
| 距離 |
962m |
| 周辺施設 |
セブンイレブン長野古里店 |
| 距離 |
1176m |
| 周辺施設 |
独立行政法人国立病院機構東長野病院 |
| 距離 |
2443m |
ここから簡単にお問い合わせをすることができます。
(SSLでの暗号化での送信を希望されるお客さまは
こちら
よりお問い合わせください)
お問い合わせを行う前に
「個人情報の取り扱いについて」を必ずお読みください。
「個人情報の取り扱いについて」に同意いただいた場合は「上記にご同意の上 確認画面へ進む」のボタンをクリックしてください。
個人情報の取り扱いについて
皆さまが送付された個人情報はアットホーム(株)のサーバを経由し、お問い合わせ先の不動産会社にメールまたはFAXにて転送されるためアットホーム(株)にも保管されます。アットホーム(株)で保管された個人情報の取り扱いについては、【こちら】をご覧ください。
また、本画面でご記入いただいた個人情報は、お問い合わせ先の不動産会社でも保管します。 お問い合わせ先の不動産会社が保管する個人情報の取り扱いについては、不動産会社に直接お問い合わせください。
長野県知事免許(4)第5176号 |
|---|
- 交通:
- JR篠ノ井線/稲荷山駅 徒歩5分
- 長野県長野市篠ノ井塩崎3856-1
- TEL:
- 026-292-7369
- FAX:
- 026-292-8553
- 所属団体:
- (公社)長野県宅地建物取引業協会会員(公社)首都圏不動産公正取引協議会加盟
取引態様:仲介  - 00103712
|
- スマートフォンで
この不動産会社を見る

|
- 提携サイト等より掲載されている物件情報につきましては、不動産会社詳細情報にリンクされていないものがあります。
- 物件に関するお問合せは、物件詳細ページの「情報提供会社」に表示されている不動産会社へ直接お願いいたします。
- 間取図は、現況を優先させていただきます。
- 映像は物件の一部を撮影したものです。物件の契約にあたっての最終判断はご自身の判断に基づいて行ってください。
- 仲介手数料について

アットホームは物件情報の適正化に努めております。
内容に誤りがある場合にはこちらへご連絡ください。