宮城県仙台市宮城野区萩野町2丁目(卸町駅)の貸事務所:物件詳細
交通 所在地 |
駅徒歩 |
賃料 管理費等 |
敷金/保証金 礼金 |
使用部分面積 坪数/坪単価 |
物件種目 築年月 |
|
仙台市東西線/卸町
宮城県仙台市宮城野区萩野町2丁目
|
14分
|
7.7万円
-
|
3ヶ月 / なし
なし
|
67.91m²
20.54坪/0.3749万円
|
貸事務所
1969年5月(築56年10ヶ月)
|
|
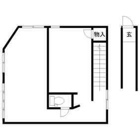
間取図
|
|
<
その他の画像
>
|
| 交通 | 仙台市東西線 卸町駅 徒歩14分 |
|---|
| その他の交通 | JR仙石線 宮城野原駅 徒歩13分 |
| 所在地 |
宮城県仙台市宮城野区萩野町2丁目
|
| 物件種目 |
貸事務所 |
| 賃料 |
7.7万円 |
管理費等 |
- |
| 敷金 / 保証金 |
3ヶ月 / なし |
礼金 |
なし |
| 敷引 |
- |
坪単価 |
0.3749万円 |
| 保証金償却 |
- |
権利金 |
- |
| 造作譲渡 |
- |
その他一時金 |
- |
| 維持費等 |
- |
保険等 |
要 テナント |
| 使用部分面積 |
67.91m² |
坪数 |
20.54坪 |
| 築年月 |
1969年5月(築56年10ヶ月)
|
階建 / 階 |
2階建 / 2階 |
| 駐車場 |
- |
バイク置き場 |
- |
| 駐輪場 |
- |
土地面積 |
220.98m²(公簿) |
| 接道状況 |
南
・
西
・
二方道路
|
用途地域 |
近隣商業 |
| 間取り |
- |
建物構造 |
木造 |
| アピールポイント |
仙石線「宮城野原」駅まで徒歩圏内の好立地 |
| 建物名・部屋番号 |
萩ビル 201 |
| リフォーム履歴 |
■水回り:2023年1月 トイレ 新規トイレ設置済 ■内装:2023年1月 全室クロス張替え ■その他:2023年1月 一部床、LED照明器具設置済 ※実施年月は最も古い履歴を表示 |
| リノベーション履歴 |
- |
| 特記事項 |
24時間利用可、土日・祝日利用可、角部屋、IT重説対応物件 |
| 備考 |
賃貸保証等:加入要(ジェイリース株式会社 事業用プラン)
管理形態/管理員の勤務形態:-/-
IT重説対応物件
引渡条件要相談
|
| エネルギー消費性能 |
- |
| 断熱性能 |
- |
| 目安光熱費 |
- |
| バス・トイレ |
専有部分にトイレあり |
| キッチン |
- |
| 設備・サービス |
エアコン2台以上、プロパンガス、エアコン |
| その他 |
- |
| 契約期間 |
2年 |
条件等 |
-
|
| 引渡可能時期 |
即時 |
現況 |
空 |
| 仲介手数料 |
1.1ヶ月 |
|
|
| 更新料 |
- |
物件番号 |
6978178628 |
| 情報公開日 |
2025年9月20日 |
次回更新予定日 |
2026年2月17日 |
| ケータイ用バーコード |
- スマートフォンでこの物件を見る
- スマートフォンからもこの物件をご覧になれます。
|
※「-」と表示されている項目については、情報提供会社にご確認ください。
| 周辺施設 |
セブンイレブン仙台萩野町2丁目店 |
| 距離 |
188m |
| 周辺施設 |
ツルハドラッグ仙台宮千代店 |
| 距離 |
341m |
ここから簡単にお問い合わせをすることができます。
(SSLでの暗号化での送信を希望されるお客さまは
こちら
よりお問い合わせください)
お問い合わせを行う前に
「個人情報の取り扱いについて」を必ずお読みください。
「個人情報の取り扱いについて」に同意いただいた場合は「上記にご同意の上 確認画面へ進む」のボタンをクリックしてください。
個人情報の取り扱いについて
皆さまが送付された個人情報はアットホーム(株)のサーバを経由し、お問い合わせ先の不動産会社にメールまたはFAXにて転送されるためアットホーム(株)にも保管されます。アットホーム(株)で保管された個人情報の取り扱いについては、【こちら】をご覧ください。
また、本画面でご記入いただいた個人情報は、お問い合わせ先の不動産会社でも保管します。 お問い合わせ先の不動産会社が保管する個人情報の取り扱いについては、不動産会社に直接お問い合わせください。
宮城県知事免許(5)第5213号 |
|---|
- 交通:
- 仙台市南北線/五橋駅 徒歩5分
- 宮城県仙台市青葉区五橋2丁目5-6 イワヌマビル101
- TEL:
- 022-748-7520
- FAX:
- 022-748-7560
- 所属団体:
- (公社)全日本不動産協会会員東北地区不動産公正取引協議会加盟
取引態様:仲介  - 20001941
|
- スマートフォンで
この不動産会社を見る

|
- 提携サイト等より掲載されている物件情報につきましては、不動産会社詳細情報にリンクされていないものがあります。
- 物件に関するお問合せは、物件詳細ページの「情報提供会社」に表示されている不動産会社へ直接お願いいたします。
- 間取図は、現況を優先させていただきます。
- 映像は物件の一部を撮影したものです。物件の契約にあたっての最終判断はご自身の判断に基づいて行ってください。
- 仲介手数料について

アットホームは物件情報の適正化に努めております。
内容に誤りがある場合にはこちらへご連絡ください。