長崎県長崎市万才町(めがね橋駅)の貸事務所:物件詳細
交通 所在地 |
駅徒歩 |
賃料 管理費等 |
敷金/保証金 礼金 |
使用部分面積 坪数/坪単価 |
物件種目 築年月 |
|
長崎電軌蛍茶屋支線/めがね橋
長崎県長崎市万才町
|
3分
|
要確認
|
要確認
|
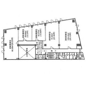
378.28m²
114.42坪/要確認
|
貸事務所
1993年2月(築32年11ヶ月)
|
|
間取図
|
外観
|
<
その他の画像
>
|
| 交通 | 長崎電軌蛍茶屋支線 めがね橋駅 徒歩3分 |
|---|
| その他の交通 | 長崎電軌蛍茶屋支線 西浜町駅 徒歩6分 長崎電軌桜町支線 桜町駅 徒歩6分 |
| 所在地 |
長崎県長崎市万才町
|
| 物件種目 |
貸事務所 |
| 賃料 |
要確認 |
管理費等 |
要確認 |
| 敷金 / 保証金 |
要確認 |
礼金 |
要確認 |
| 敷引 |
要確認 |
坪単価 |
要確認 |
| 保証金償却 |
要確認 |
権利金 |
- |
| 造作譲渡 |
- |
その他一時金 |
- |
| 維持費等 |
- |
保険等 |
要 |
| 使用部分面積 |
378.28m² |
坪数 |
114.42坪 |
| 築年月 |
1993年2月(築32年11ヶ月)
|
階建 / 階 |
地上6階地下1階建 / 3階 |
| 駐車場 |
有 28,600円/月 |
バイク置き場 |
- |
| 駐輪場 |
- |
土地面積 |
- |
| 接道状況 |
-
|
用途地域 |
- |
| 間取り |
- |
建物構造 |
RC造一部S造 |
| アピールポイント |
長崎電軌「賑橋」駅より徒歩3分。
落ち着いた雰囲気の外観が一見目を引きます。
通り沿いに建ち、周辺は法務局や公園、長崎の主要オフィスビルが立ち並んでおります。
オフィスの設備も十二分に備わっており、長崎ではおすすめの物件となっております。
是非一度お問い合わせください。 |
| 建物名・部屋番号 |
長崎朝日ビル |
| リフォーム履歴 |
- |
| リノベーション履歴 |
- |
| 特記事項 |
24時間利用可、土曜日利用可、土日・祝日利用可、OAフロア、最上階、24時間セキュリティー、天井高2.5M以上 |
| 備考 |
管理形態/管理員の勤務形態:-/-
|
| エネルギー消費性能 |
- |
| 断熱性能 |
- |
| 目安光熱費 |
- |
| バス・トイレ |
共用部分に男女別トイレあり |
| キッチン |
- |
| 設備・サービス |
個別空調、光ファイバー |
| その他 |
エレベーター2基以上、エレベーター |
| 契約期間 |
要確認 |
条件等 |
-
|
| 引渡可能時期 |
即時 |
現況 |
空 |
| 更新料 |
要確認 |
物件番号 |
6978628795 |
| 情報公開日 |
2023年12月11日 |
次回更新予定日 |
2025年12月29日 |
| ケータイ用バーコード |
- スマートフォンでこの物件を見る
- スマートフォンからもこの物件をご覧になれます。
|
※「-」と表示されている項目については、情報提供会社にご確認ください。
| 周辺施設 |
デイリーヤマザキ長崎興善町店 |
| 距離 |
82m |
写真を見る |
| 周辺施設 |
セブンイレブン長崎万才町店 |
| 距離 |
126m |
写真を見る |
| 周辺施設 |
長崎桜町郵便局 |
| 距離 |
344m |
写真を見る |
| 周辺施設 |
親和銀行長崎営業部 |
| 距離 |
150m |
写真を見る |
| 周辺施設 |
JA長崎西彼長崎中央支店 |
| 距離 |
249m |
写真を見る |
| 周辺施設 |
さくらパーキング興善町 |
| 距離 |
266m |
写真を見る |
ここから簡単にお問い合わせをすることができます。
(SSLでの暗号化での送信を希望されるお客さまは
こちら
よりお問い合わせください)
お問い合わせを行う前に
「個人情報の取り扱いについて」を必ずお読みください。
「個人情報の取り扱いについて」に同意いただいた場合は「上記にご同意の上 確認画面へ進む」のボタンをクリックしてください。
個人情報の取り扱いについて
皆さまが送付された個人情報はアットホーム(株)のサーバを経由し、お問い合わせ先の不動産会社にメールまたはFAXにて転送されるためアットホーム(株)にも保管されます。アットホーム(株)で保管された個人情報の取り扱いについては、【こちら】をご覧ください。
また、本画面でご記入いただいた個人情報は、お問い合わせ先の不動産会社でも保管します。 お問い合わせ先の不動産会社が保管する個人情報の取り扱いについては、不動産会社に直接お問い合わせください。
国土交通大臣免許(4)第7938号 |
|---|
- 交通:
- 西鉄天神大牟田線/西鉄福岡(天神)駅 徒歩2分
- 福岡県福岡市中央区天神1丁目6-8 天神ツインビル4F
- TEL:
- 092-791-5500
- FAX:
- 092-791-5511
- 所属団体:
- (公社)全日本不動産協会会員(一社)九州不動産公正取引協議会加盟
取引態様:仲介  - 80506897
|
- スマートフォンで
この不動産会社を見る

|
- 提携サイト等より掲載されている物件情報につきましては、不動産会社詳細情報にリンクされていないものがあります。
- 物件に関するお問合せは、物件詳細ページの「情報提供会社」に表示されている不動産会社へ直接お願いいたします。
- 間取図は、現況を優先させていただきます。
- 映像は物件の一部を撮影したものです。物件の契約にあたっての最終判断はご自身の判断に基づいて行ってください。
- 仲介手数料について

アットホームは物件情報の適正化に努めております。
内容に誤りがある場合にはこちらへご連絡ください。