福岡県福岡市博多区博多駅東3丁目(東比恵駅)の貸事務所:物件詳細
交通 所在地 |
駅徒歩 |
賃料 管理費等 |
敷金/保証金 礼金 |
使用部分面積 坪数/坪単価 |
物件種目 築年月 |
|
地下鉄空港線/東比恵
福岡県福岡市博多区博多駅東3丁目
|
6分
|
60.91万円
106,606円
|
12ヶ月 / なし
なし
|
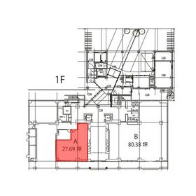
91.54m²
27.69坪/2.1997万円
|
貸事務所
1992年8月(築33年10ヶ月)
|
|
間取図
|
エントランス
|
<
その他の画像
>
|
| 交通 | 地下鉄空港線 東比恵駅 徒歩6分 |
|---|
| その他の交通 | 地下鉄空港線 博多駅 徒歩12分 JR鹿児島本線 博多駅 徒歩13分 |
| 所在地 |
福岡県福岡市博多区博多駅東3丁目
|
| 物件種目 |
貸事務所 |
| 賃料 |
60.91万円 |
管理費等 |
106,606円 |
| 敷金 / 保証金 |
12ヶ月 / なし |
礼金 |
なし |
| 敷引 |
- |
坪単価 |
2.1997万円 |
| 保証金償却 |
- |
権利金 |
- |
| 造作譲渡 |
- |
その他一時金 |
- |
| 維持費等 |
屋外サイン(任意):2,200円/月、機械式駐車場(任意):27,500円/月、自走式駐車場(任意):25,300円/月 |
保険等 |
要 |
| 使用部分面積 |
91.54m² |
坪数 |
27.69坪 |
| 築年月 |
1992年8月(築33年10ヶ月)
|
階建 / 階 |
地上8階地下1階建 / 1階 |
| 駐車場 |
有 27,500円/月 |
バイク置き場 |
- |
| 駐輪場 |
- |
土地面積 |
- |
| 接道状況 |
-
|
用途地域 |
- |
| 間取り |
- |
建物構造 |
SRC |
| アピールポイント |
博多駅筑紫口から徒歩10分
東比恵駅より徒歩6分
百年橋通りに面した位置にあります。
空港や都市高速にも近くて非常に便利です。
オシャレなエントランスと共用部、屋上には芝生を敷き詰めた庭園もあります。
テナント専用の喫茶店もオーナー様拘りの内装と美味しいコーヒーを提供されており入居者様にも大変喜ばれています。
博多エリアで物件をお探しのお客様は是非一度お問い合わせください。 |
| 建物名・部屋番号 |
エフビル |
| リフォーム履歴 |
- |
| リノベーション履歴 |
- |
| 特記事項 |
24時間利用可、土曜日利用可、土日・祝日利用可、OAフロア、24時間セキュリティー、天井高2.5M以上 |
| 備考 |
管理形態/管理員の勤務形態:-/-
|
| エネルギー消費性能 |
- |
| 断熱性能 |
- |
| 目安光熱費 |
- |
| バス・トイレ |
共用部分に男女別トイレあり |
| キッチン |
- |
| 設備・サービス |
個別空調、光ファイバー |
| その他 |
エレベーター2基以上 |
| 契約期間 |
2年 |
条件等 |
-
|
| 引渡可能時期 |
即時 |
現況 |
空 |
| 更新料 |
- |
物件番号 |
6978632012 |
| 情報公開日 |
2023年5月30日 |
次回更新予定日 |
2026年5月20日 |
| ケータイ用バーコード |
- スマートフォンでこの物件を見る
- スマートフォンからもこの物件をご覧になれます。
|
※「-」と表示されている項目については、情報提供会社にご確認ください。
| 周辺施設 |
セブンイレブン博多比恵町店 |
| 距離 |
140m |
写真を見る |
| 周辺施設 |
ローソン比恵町店 |
| 距離 |
84m |
写真を見る |
| 周辺施設 |
福岡合同庁舎内郵便局 |
| 距離 |
497m |
写真を見る |
| 周辺施設 |
大分銀行博多支店 |
| 距離 |
2m |
写真を見る |
| 周辺施設 |
十八親和銀行東福岡支店 |
| 距離 |
373m |
写真を見る |
| 周辺施設 |
西日本シティ銀行比恵支店 |
| 距離 |
337m |
写真を見る |
| 周辺施設 |
セイワパーク博多駅東3 |
| 距離 |
220m |
写真を見る |
ここから簡単にお問い合わせをすることができます。
(SSLでの暗号化での送信を希望されるお客さまは
こちら
よりお問い合わせください)
お問い合わせを行う前に
「個人情報の取り扱いについて」を必ずお読みください。
「個人情報の取り扱いについて」に同意いただいた場合は「上記にご同意の上 確認画面へ進む」のボタンをクリックしてください。
個人情報の取り扱いについて
皆さまが送付された個人情報はアットホーム(株)のサーバを経由し、お問い合わせ先の不動産会社にメールまたはFAXにて転送されるためアットホーム(株)にも保管されます。アットホーム(株)で保管された個人情報の取り扱いについては、【こちら】をご覧ください。
また、本画面でご記入いただいた個人情報は、お問い合わせ先の不動産会社でも保管します。 お問い合わせ先の不動産会社が保管する個人情報の取り扱いについては、不動産会社に直接お問い合わせください。
国土交通大臣免許(4)第7938号 |
|---|
- 交通:
- 西鉄天神大牟田線/西鉄福岡(天神)駅 徒歩2分
- 福岡県福岡市中央区天神1丁目6-8 天神ツインビル4F
- TEL:
- 092-791-5500
- FAX:
- 092-791-5511
- 所属団体:
- (公社)全日本不動産協会会員(一社)九州不動産公正取引協議会加盟
取引態様:仲介  - 80506897
|
- スマートフォンで
この不動産会社を見る

|
- 提携サイト等より掲載されている物件情報につきましては、不動産会社詳細情報にリンクされていないものがあります。
- 物件に関するお問合せは、物件詳細ページの「情報提供会社」に表示されている不動産会社へ直接お願いいたします。
- 間取図は、現況を優先させていただきます。
- 映像は物件の一部を撮影したものです。物件の契約にあたっての最終判断はご自身の判断に基づいて行ってください。
- 仲介手数料について

アットホームは物件情報の適正化に努めております。
内容に誤りがある場合にはこちらへご連絡ください。