不動産 賃貸 マンション等の住宅情報:埼玉住まい情報


福島県福島市置賜町(福島駅)の貸事務所:物件詳細

  • 物件詳細
  • 情報の見方
  • 印刷用画面
交通
所在地
駅徒歩 賃料
管理費等
敷金/保証金
礼金
使用部分面積
坪数/坪単価
物件種目
築年月

東北新幹線/福島

福島県福島市置賜町

11分

25.3万円

22,000円

2ヶ月 / なし

1ヶ月

198.80m²

60.13坪/0.4208万円

貸事務所

1972年11月(築53年2ヶ月)

おすすめコメント  スタッフ: 野田 久美子

福島中心部の中央通りに面する角地に建つビルの3階60坪ワンフロア貸。現場事務所利用も可。OAフロアの為、備品移動も楽々可能。近隣にはコンビニ、飲食店多数あります。郵便局徒歩2分。駐車場敷地内5台完備。

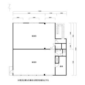
間取図

間取図

外観

外観

北側より撮影

その他の画像
  • エントランス
  • 室内
  • トイレ
  • 洗面
  • 駐車場
  • 外観
    • とりあえず保存
    • お問い合わせ
    交通

    東北新幹線 福島駅 徒歩11分

    その他の交通

    JR東北本線 福島駅 徒歩11分

    所在地 福島県福島市置賜町
    物件種目 貸事務所
    賃料 25.3万円 管理費等 22,000円
    敷金 / 保証金 2ヶ月 / なし 礼金 1ヶ月
    敷引 坪単価 0.4208万円
    保証金償却 権利金
    造作譲渡 その他一時金
    維持費等 保険等 要 借家人賠償責任
    使用部分面積 198.80m² 坪数 60.13坪
    築年月 1972年11月(築53年2ヶ月) 階建 / 階 3階建 / 3階
    駐車場 有 無料(空き5台)
    ビル1階が駐車場となります。縦列3台、並列2台可。
    バイク置き場
    駐輪場 土地面積
    接道状況 用途地域
    間取り 建物構造 RC
    アピールポイント ビル内駐車場5台完備(縦列3台、並列2台)
    OAフロア
    60坪ワンフロア
    徒歩圏内にコンビニ、飲食店多数有り
    建物名・部屋番号 置賜ビル 3F
    リフォーム履歴
    リノベーション履歴
    特記事項 24時間利用可、土日・祝日利用可、飲食店不可、1フロア1テナント、最上階
    備考
    賃貸保証等:加入要(アーク賃貸保証(月額賃料1ヶ月分))
    管理形態/管理員の勤務形態:-/-
    エレベーターなし
    トイレは1ヵ所のみ
    エネルギー消費性能
    断熱性能
    目安光熱費
    バス・トイレ 専有部分にトイレあり
    キッチン
    設備・サービス 個別空調、エアコン2台以上、給湯、都市ガス
    その他
    契約期間 3年 条件等
    引渡可能時期 即時 現況
    仲介手数料 1ヶ月    
    更新料 物件番号 6978886657
    情報公開日 2023年4月10日 次回更新予定日 2025年12月17日
    ケータイ用バーコード

    QRコード

    スマートフォンでこの物件を見る
    スマートフォンからもこの物件をご覧になれます。
    ※「-」と表示されている項目については、情報提供会社にご確認ください。

    この物件の周辺情報

    周辺施設 置賜町郵便局
    距離 63m
    周辺施設 福島信用金庫
    距離 284m
    周辺施設 日本銀行
    距離 237m
    周辺施設 東邦銀行本店
    距離 319m
    周辺施設 みずほ銀行
    距離 360m
    周辺施設 ファミリーマート福島置賜町店
    距離 50m
    周辺施設 福島県庁
    距離 786m
    周辺施設 福島市役所
    距離 1197m

    クイックお問い合わせ

    ここから簡単にお問い合わせをすることができます。
    (SSLでの暗号化での送信を希望されるお客さまは こちら よりお問い合わせください)

    お問い合わせ内容(必須)
    物件のお問い合わせ理由(必須)
    お名前・ご担当者様名(必須) 姓  名 
    メールアドレス(必須)
    ※携帯電話のメールアドレスをご入力される方はこちらをご確認ください
    電話番号(必須)
    - -

    ※入力いただいた電話番号へSMSまたは音声でパスワードをご連絡します。

    携帯電話の番号をご入力の方へ

    携帯電話の番号をご入力の方へ
    確認画面にて送信ボタンをクリックするとSMSが携帯電話に届きます。
    そのSMSに記載のパスワード(認証番号)を入力し、お問い合わせを完了してください。
    尚、SMSの送信者番号は 0005 202 760 となります。
    これはアットホームの固定番号です。

    備考欄 希望条件、物件案内希望日、質問などがございましたらご記入ください。
    お問い合わせを行う前に「個人情報の取り扱いについて」を必ずお読みください。
    「個人情報の取り扱いについて」に同意いただいた場合は「上記にご同意の上 確認画面へ進む」のボタンをクリックしてください。

    個人情報の取り扱いについて

    皆さまが送付された個人情報はアットホーム(株)のサーバを経由し、お問い合わせ先の不動産会社にメールまたはFAXにて転送されるためアットホーム(株)にも保管されます。アットホーム(株)で保管された個人情報の取り扱いについては、【こちら】をご覧ください。
    また、本画面でご記入いただいた個人情報は、お問い合わせ先の不動産会社でも保管します。 お問い合わせ先の不動産会社が保管する個人情報の取り扱いについては、不動産会社に直接お問い合わせください。

    情報提供会社

    情報提供会社

    (株)エスケーコーポレーション

    福島県知事免許(4)第2685号

    交通:
    JR東北本線/福島駅 徒歩9分
    福島県福島市大町7-25 アクティ大町ビル
    TEL:
    024-521-0281
    FAX:
    024-521-0285
    所属団体:
    (公社)福島県宅地建物取引業協会会員
    東北地区不動産公正取引協議会加盟

    取引態様:仲介

    • 会社情報
    • 20003148
    スマートフォンで
    この不動産会社を見る
    QRコード
    • とりあえず保存
    • お問い合わせ
    • 提携サイト等より掲載されている物件情報につきましては、不動産会社詳細情報にリンクされていないものがあります。
    • 物件に関するお問合せは、物件詳細ページの「情報提供会社」に表示されている不動産会社へ直接お願いいたします。
    • 間取図は、現況を優先させていただきます。
    • 映像は物件の一部を撮影したものです。物件の契約にあたっての最終判断はご自身の判断に基づいて行ってください。
    • 仲介手数料について仲介手数料

    アットホームは物件情報の適正化に努めております。 内容に誤りがある場合にはこちらへご連絡ください。

    【埼玉住まい情報】では、日本全国の物件から賃貸マンションや賃貸アパート・賃貸一戸建て等の賃貸住宅情報、新築マンション・分譲マンションや中古マンション等の売買マンション情報、新築一戸建てや中古一戸建てなどの戸建住宅、 土地など、総合的な不動産住宅情報検索サービスを提供致します。
    【埼玉住まい情報】から、選りすぐりの不動産物件を探してみましょう。

    【免責事項】
    このコーナーの運営はアットホーム株式会社(https://www.athome.co.jp/)が行っています。
    このコーナーに掲載している物件情報は、「アットホーム不動産情報ネットワーク」に加盟する不動産会社等(情報提供元)から提供されています。信頼性の高い情報提供が行えるよう、最大限の努力をしておりますが、その内容を保証するものではありません。 利用者のみなさまと各情報提供元との取引に起因する損害および情報が掲載されたことに起因する損害等については、株式会社イーシティ埼玉、およびアットホームは一切責任を負いません。
    各物件情報の内容や画像等はすべて現況を優先させていただきます。
    お取引等(お取引の準備、資金調達等を含みます)の際には、内容や契約条件等について、各情報提供元より十分な説明を受け、ご自身でご確認の上、判断してください。
    このコーナーへの物件情報のご掲載、その他不動産業務ソリューション等についての不動産会社様のお問合せはこちらからお願いいたします。

    物件画像: