大阪府藤井寺市岡2丁目(藤井寺駅)の貸事務所:物件詳細
交通 所在地 |
駅徒歩 |
賃料 管理費等 |
敷金/保証金 礼金 |
使用部分面積 坪数/坪単価 |
物件種目 築年月 |
|
近鉄南大阪線/藤井寺
大阪府藤井寺市岡2丁目
|
3分
|
28.4894万円
28,488円
|
3ヶ月 / なし
なし
|
100.73m²
30.47坪/0.935万円
|
貸事務所
2022年2月(築3年11ヶ月・未入居)
|
|
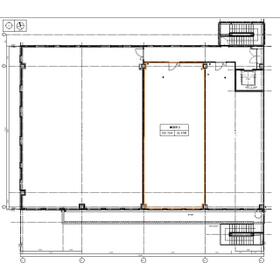
間取図
|
外観
|
その他の画像
|
| 交通 | 近鉄南大阪線 藤井寺駅 徒歩3分 |
| 所在地 |
大阪府藤井寺市岡2丁目
|
| 物件種目 |
貸事務所 |
| 賃料 |
28.4894万円 |
管理費等 |
28,488円 |
| 敷金 / 保証金 |
3ヶ月 / なし |
礼金 |
なし |
| 敷引 |
- |
坪単価 |
0.935万円 |
| 保証金償却 |
- |
権利金 |
- |
| 造作譲渡 |
- |
その他一時金 |
- |
| 維持費等 |
- |
保険等 |
要 |
| 使用部分面積 |
100.73m² |
坪数 |
30.47坪 |
| 築年月 |
2022年2月(築3年11ヶ月・未入居)
|
階建 / 階 |
3階建 / 3階 |
| 駐車場 |
有 18,000円/月(空き2台) 1台18,000円/月 |
バイク置き場 |
- |
| 駐輪場 |
- |
土地面積 |
743.56m²(公簿) |
| 接道状況 |
北
・
南西
・
二方道路
|
用途地域 |
近隣商業 |
| 間取り |
- |
建物構造 |
鉄骨造 |
| 建物名・部屋番号 |
藤井寺APTビル 3F-2 |
| リフォーム履歴 |
- |
| リノベーション履歴 |
- |
| 特記事項 |
飲食店不可、フリーレント、最上階 |
| 備考 |
管理形態/管理員の勤務形態:-/-
フリーレント:3ヶ月(入居日より賃料3ヶ月間。但し、2年以上の入居条件。共益費、駐車場料はかかります。)
事務所仕様。トイレ、洗面台、エアコン、タイルカーペット。
|
| エネルギー消費性能 |
- |
| 断熱性能 |
- |
| 目安光熱費 |
- |
| バス・トイレ |
専有部分にトイレあり |
| キッチン |
- |
| 設備・サービス |
ビルトインエアコン、エアコン |
| その他 |
エレベーター |
| 契約期間 |
5年 |
条件等 |
定期借家
|
| 引渡可能時期 |
即時 |
現況 |
空 |
| 更新料 |
- |
物件番号 |
6979524718 |
| 情報公開日 |
2025年10月8日 |
次回更新予定日 |
2025年12月18日 |
| ケータイ用バーコード |
- スマートフォンでこの物件を見る
- スマートフォンからもこの物件をご覧になれます。
|
※「-」と表示されている項目については、情報提供会社にご確認ください。
| 周辺施設 |
イオン藤井寺ショッピングセンター |
| 距離 |
106m |
| 周辺施設 |
セブンイレブン藤井寺岡2丁目店 |
| 距離 |
228m |
ここから簡単にお問い合わせをすることができます。
(SSLでの暗号化での送信を希望されるお客さまは
こちら
よりお問い合わせください)
お問い合わせを行う前に
「個人情報の取り扱いについて」を必ずお読みください。
「個人情報の取り扱いについて」に同意いただいた場合は「上記にご同意の上 確認画面へ進む」のボタンをクリックしてください。
個人情報の取り扱いについて
皆さまが送付された個人情報はアットホーム(株)のサーバを経由し、お問い合わせ先の不動産会社にメールまたはFAXにて転送されるためアットホーム(株)にも保管されます。アットホーム(株)で保管された個人情報の取り扱いについては、【こちら】をご覧ください。
また、本画面でご記入いただいた個人情報は、お問い合わせ先の不動産会社でも保管します。 お問い合わせ先の不動産会社が保管する個人情報の取り扱いについては、不動産会社に直接お問い合わせください。
福岡県知事免許(2)第18958号 |
|---|
- 交通:
- JR鹿児島本線/博多駅 徒歩5分
- 福岡県福岡市博多区博多駅東1丁目11-5 アサコ博多ビル1001
- TEL:
- 092-292-6195
- FAX:
- 092-292-6196
- 所属団体:
- (公社)福岡県宅地建物取引業協会会員(一社)九州不動産公正取引協議会加盟
取引態様:貸主  - 80504636
|
- スマートフォンで
この不動産会社を見る

|
- 提携サイト等より掲載されている物件情報につきましては、不動産会社詳細情報にリンクされていないものがあります。
- 物件に関するお問合せは、物件詳細ページの「情報提供会社」に表示されている不動産会社へ直接お願いいたします。
- 間取図は、現況を優先させていただきます。
- 映像は物件の一部を撮影したものです。物件の契約にあたっての最終判断はご自身の判断に基づいて行ってください。
- 仲介手数料について

アットホームは物件情報の適正化に努めております。
内容に誤りがある場合にはこちらへご連絡ください。