東京都千代田区平河町1丁目(麹町駅)の貸事務所:物件詳細
交通 所在地 |
駅徒歩 |
賃料 管理費等 |
敷金/保証金 礼金 |
使用部分面積 坪数/坪単価 |
物件種目 築年月 |
|
東京メトロ有楽町線/麹町
東京都千代田区平河町1丁目
|
4分
|
13.3331万円
28,985円
|
なし / 5ヶ月
なし
|
34.80m²
10.52坪/1.2666万円
|
貸事務所
1977年5月(築48年6ヶ月)
|
|
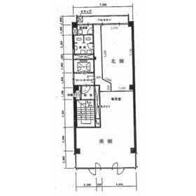
間取図
|
外観
|
その他の画像
|
| 交通 | 東京メトロ有楽町線 麹町駅 徒歩4分 |
|---|
| その他の交通 | 東京メトロ半蔵門線 半蔵門駅 徒歩6分 東京メトロ南北線 永田町駅 徒歩8分 |
| 所在地 |
東京都千代田区平河町1丁目
|
| 物件種目 |
貸事務所 |
| 賃料 |
13.3331万円 |
管理費等 |
28,985円 |
| 敷金 / 保証金 |
なし / 5ヶ月 |
礼金 |
なし |
| 敷引 |
- |
坪単価 |
1.2666万円 |
| 保証金償却 |
解約時1ヶ月 |
権利金 |
- |
| 造作譲渡 |
- |
その他一時金 |
- |
| 維持費等 |
- |
保険等 |
- |
| 使用部分面積 |
34.80m² |
坪数 |
10.52坪 |
| 築年月 |
1977年5月(築48年6ヶ月)
|
階建 / 階 |
10階建 / 4階 |
| 駐車場 |
- |
バイク置き場 |
- |
| 駐輪場 |
- |
土地面積 |
- |
| 接道状況 |
-
|
用途地域 |
- |
| 間取り |
- |
建物構造 |
RC |
| 建物名・部屋番号 |
平河町伏見ビル 4階北側 |
| リフォーム履歴 |
- |
| リノベーション履歴 |
- |
| 特記事項 |
OAフロア、飲食店不可、耐震構造(新耐震基準) |
| 備考 |
管理形態/管理員の勤務形態:-/-
※床仕様:タイルカーペット
※2013年耐震設備強化工事完了
※貸会議室有り(予約制1,500円/時間)
※サーバー室有
|
| エネルギー消費性能 |
- |
| 断熱性能 |
- |
| 目安光熱費 |
- |
| バス・トイレ |
共用部分にトイレあり |
| キッチン |
- |
| 設備・サービス |
個別空調、給湯、エアコン、暖房、冷房、光ファイバー |
| その他 |
エレベーター |
| 契約期間 |
2年 |
条件等 |
-
|
| 引渡可能時期 |
即時 |
現況 |
空 |
| 仲介手数料 |
1ヶ月 |
|
|
| 更新料 |
新賃料 1ヶ月 |
物件番号 |
6981650173 |
| 情報公開日 |
2025年6月6日 |
次回更新予定日 |
2025年10月29日 |
| ケータイ用バーコード |
- スマートフォンでこの物件を見る
- スマートフォンからもこの物件をご覧になれます。
|
※「-」と表示されている項目については、情報提供会社にご確認ください。
| 周辺施設 |
松屋紀尾井町店 |
| 距離 |
108m |
写真を見る |
| 周辺施設 |
セブンイレブン麹町3丁目店 |
| 距離 |
168m |
写真を見る |
| 周辺施設 |
ファミリーマート紀尾井町三番地店 |
| 距離 |
157m |
写真を見る |
| 周辺施設 |
カフェ・ベローチェ麹町店 |
| 距離 |
146m |
写真を見る |
| 周辺施設 |
成城石井麹町店 |
| 距離 |
133m |
写真を見る |
| 周辺施設 |
ココスナカムラ麹町店 |
| 距離 |
119m |
写真を見る |
| 周辺施設 |
CoCo壱番屋千代田区麹町店 |
| 距離 |
157m |
写真を見る |
| 周辺施設 |
タリーズコーヒー麹町店 |
| 距離 |
212m |
写真を見る |
ここから簡単にお問い合わせをすることができます。
(SSLでの暗号化での送信を希望されるお客さまは
こちら
よりお問い合わせください)
お問い合わせを行う前に
「個人情報の取り扱いについて」を必ずお読みください。
「個人情報の取り扱いについて」に同意いただいた場合は「上記にご同意の上 確認画面へ進む」のボタンをクリックしてください。
個人情報の取り扱いについて
皆さまが送付された個人情報はアットホーム(株)のサーバを経由し、お問い合わせ先の不動産会社にメールまたはFAXにて転送されるためアットホーム(株)にも保管されます。アットホーム(株)で保管された個人情報の取り扱いについては、【こちら】をご覧ください。
また、本画面でご記入いただいた個人情報は、お問い合わせ先の不動産会社でも保管します。 お問い合わせ先の不動産会社が保管する個人情報の取り扱いについては、不動産会社に直接お問い合わせください。
東京都知事免許(5)第79601号 |
|---|
- 交通:
- JR中央線/四ツ谷駅 徒歩2分
- 東京都新宿区四谷1丁目8-8 佐伯千成ビル6F
- TEL:
- 03-3354-5666
- FAX:
- 03-3354-5668
- 所属団体:
- (公社)全日本不動産協会会員(公社)首都圏不動産公正取引協議会加盟
取引態様:仲介  - 00261616
|
- スマートフォンで
この不動産会社を見る

|
- 提携サイト等より掲載されている物件情報につきましては、不動産会社詳細情報にリンクされていないものがあります。
- 物件に関するお問合せは、物件詳細ページの「情報提供会社」に表示されている不動産会社へ直接お願いいたします。
- 間取図は、現況を優先させていただきます。
- 映像は物件の一部を撮影したものです。物件の契約にあたっての最終判断はご自身の判断に基づいて行ってください。
- 仲介手数料について

アットホームは物件情報の適正化に努めております。
内容に誤りがある場合にはこちらへご連絡ください。