愛知県名古屋市中区丸の内2丁目(丸の内駅)の貸事務所:物件詳細
交通 所在地 |
駅徒歩 |
賃料 管理費等 |
敷金/保証金 礼金 |
使用部分面積 坪数/坪単価 |
物件種目 築年月 |
|
名古屋市鶴舞線/丸の内
愛知県名古屋市中区丸の内2丁目
|
5分
|
11.55万円
-
|
4ヶ月 / なし
なし
|
51.04m²
15.43坪/0.7481万円
|
貸事務所
1973年10月(築52年3ヶ月)
|
|
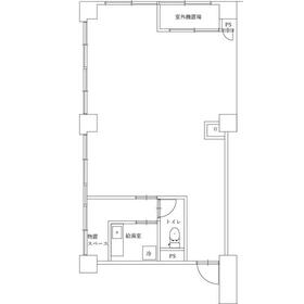
間取図
|
外観
|
<
その他の画像
>
|
| 交通 | 名古屋市鶴舞線 丸の内駅 徒歩5分 |
|---|
| その他の交通 | 名古屋市桜通線 丸の内駅 徒歩5分 |
| 所在地 |
愛知県名古屋市中区丸の内2丁目
|
| 物件種目 |
貸事務所 |
| 賃料 |
11.55万円 |
管理費等 |
- |
| 敷金 / 保証金 |
4ヶ月 / なし |
礼金 |
なし |
| 敷引 |
2ヶ月 |
坪単価 |
0.7481万円 |
| 保証金償却 |
- |
権利金 |
- |
| 造作譲渡 |
- |
その他一時金 |
- |
| 維持費等 |
水道料:2,200円/月、町費:250円/月 |
保険等 |
要 |
| 使用部分面積 |
51.04m² |
坪数 |
15.43坪 |
| 築年月 |
1973年10月(築52年3ヶ月)
|
階建 / 階 |
地上8階地下1階建 / 5階 |
| 駐車場 |
有 35,200円/月 空き予定も含め数台ございます。詳しくはお問い合わせください。 |
バイク置き場 |
- |
| 駐輪場 |
有 無料 |
土地面積 |
- |
| 接道状況 |
-
|
用途地域 |
- |
| 間取り |
- |
建物構造 |
RC |
| アピールポイント |
最寄駅から徒歩約3分の好立地!、綺麗な状態でお使いいただけます!駐輪場1台無料!専用部に給湯室、物置スペース、トイレ有りオススメです! |
| 建物名・部屋番号 |
リブラ丸の内6 501号室 |
| リフォーム履歴 |
- |
| リノベーション履歴 |
- |
| 特記事項 |
24時間利用可、土日・祝日利用可、飲食店不可、角部屋 |
| 備考 |
賃貸保証等:加入要(新日本信用保証株式会社 初回保証委託料 賃料等合計額の100%(最低保証委託料50,000円)毎年年間最低保証委託料 賃料等合計額の10%(年間最低保証委託料5,000円))
管理形態/管理員の勤務形態:-/-
|
| エネルギー消費性能 |
- |
| 断熱性能 |
- |
| 目安光熱費 |
- |
| バス・トイレ |
専有部分にトイレあり |
| キッチン |
- |
| 設備・サービス |
個別空調、エアコン2台以上、給湯、都市ガス、エアコン |
| その他 |
エレベーター |
| 契約期間 |
2033年1月14日まで |
条件等 |
定期借家
|
| 引渡可能時期 |
相談 |
現況 |
居住中 |
| 仲介手数料 |
1ヶ月 |
適格請求書発行 |
可
|
| 更新料 |
なし |
物件番号 |
6982618233 |
| 情報公開日 |
2025年9月11日 |
次回更新予定日 |
2025年12月12日 |
| ケータイ用バーコード |
- スマートフォンでこの物件を見る
- スマートフォンからもこの物件をご覧になれます。
|
※「-」と表示されている項目については、情報提供会社にご確認ください。
| 周辺施設 |
ローソン 丸の内二丁目店 |
| 距離 |
60m |
写真を見る |
ここから簡単にお問い合わせをすることができます。
(SSLでの暗号化での送信を希望されるお客さまは
こちら
よりお問い合わせください)
お問い合わせを行う前に
「個人情報の取り扱いについて」を必ずお読みください。
「個人情報の取り扱いについて」に同意いただいた場合は「上記にご同意の上 確認画面へ進む」のボタンをクリックしてください。
個人情報の取り扱いについて
皆さまが送付された個人情報はアットホーム(株)のサーバを経由し、お問い合わせ先の不動産会社にメールまたはFAXにて転送されるためアットホーム(株)にも保管されます。アットホーム(株)で保管された個人情報の取り扱いについては、【こちら】をご覧ください。
また、本画面でご記入いただいた個人情報は、お問い合わせ先の不動産会社でも保管します。 お問い合わせ先の不動産会社が保管する個人情報の取り扱いについては、不動産会社に直接お問い合わせください。
愛知県知事免許(2)第23191号 |
|---|
- 交通:
- 名古屋市東山線/東山公園駅
- 愛知県名古屋市千種区東山通5丁目65 東山ビルA棟308号室
- TEL:
- 052-734-2333
- FAX:
- 052-734-2332
- 所属団体:
- (公社)愛知県宅地建物取引業協会会員東海不動産公正取引協議会加盟
取引態様:仲介  - 40406176
|
- スマートフォンで
この不動産会社を見る

|
- 提携サイト等より掲載されている物件情報につきましては、不動産会社詳細情報にリンクされていないものがあります。
- 物件に関するお問合せは、物件詳細ページの「情報提供会社」に表示されている不動産会社へ直接お願いいたします。
- 間取図は、現況を優先させていただきます。
- 映像は物件の一部を撮影したものです。物件の契約にあたっての最終判断はご自身の判断に基づいて行ってください。
- 仲介手数料について

アットホームは物件情報の適正化に努めております。
内容に誤りがある場合にはこちらへご連絡ください。