東京都中央区新川2丁目(八丁堀駅)の貸事務所:物件詳細
交通 所在地 |
駅徒歩 |
賃料 管理費等 |
敷金/保証金 礼金 |
使用部分面積 坪数/坪単価 |
物件種目 築年月 |
|
JR京葉線/八丁堀
東京都中央区新川2丁目
|
2分
|
32.06万円
68,706円
|
なし / 6ヶ月
なし
|
68.82m²
20.81坪/1.5401万円
|
貸事務所
1974年9月(築51年3ヶ月)
|
|
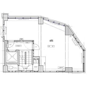
間取図
|
外観
|
その他の画像
|
| 交通 | JR京葉線 八丁堀駅 徒歩2分 |
|---|
| その他の交通 | 東京メトロ日比谷線 八丁堀駅 徒歩5分 東京メトロ東西線 茅場町駅 徒歩7分 |
| 所在地 |
東京都中央区新川2丁目
|
| 物件種目 |
貸事務所 |
| 賃料 |
32.06万円 |
管理費等 |
68,706円 |
| 敷金 / 保証金 |
なし / 6ヶ月 |
礼金 |
なし |
| 敷引 |
- |
坪単価 |
1.5401万円 |
| 保証金償却 |
- |
権利金 |
- |
| 造作譲渡 |
- |
その他一時金 |
- |
| 維持費等 |
- |
保険等 |
- |
| 使用部分面積 |
68.82m² |
坪数 |
20.81坪 |
| 築年月 |
1974年9月(築51年3ヶ月)
|
階建 / 階 |
10階建 / 8階 |
| 駐車場 |
- |
バイク置き場 |
- |
| 駐輪場 |
- |
土地面積 |
- |
| 接道状況 |
-
|
用途地域 |
- |
| 間取り |
- |
建物構造 |
SRC |
| アピールポイント |
八重洲通り角地の視認性高いコンパクトオフィス。2018年7月に大規模リニューアル工事済で綺麗に生まれ変わりました。分割されているフロアもあり多様のニーズにもお応えできます。 |
| 建物名・部屋番号 |
AUBE新川ビル 8階 |
| リフォーム履歴 |
- |
| リノベーション履歴 |
- |
| 特記事項 |
OAフロア |
| 備考 |
管理形態/管理員の勤務形態:-/-
※他区画も募集中!詳細はお問い合わせください。
■2018年7月大規模リニューアル完了
■共益費に水道料金含む
|
| エネルギー消費性能 |
- |
| 断熱性能 |
- |
| 目安光熱費 |
- |
| バス・トイレ |
専有部分に男女別トイレあり |
| キッチン |
- |
| 設備・サービス |
個別空調、給湯、光ファイバー |
| その他 |
エレベーター |
| 契約期間 |
10年 |
条件等 |
定期借家
|
| 引渡可能時期 |
即時 |
現況 |
空 |
| 仲介手数料 |
1ヶ月 |
|
|
| 更新料 |
- |
物件番号 |
6982711196 |
| 情報公開日 |
2025年11月6日 |
次回更新予定日 |
2025年11月20日 |
| ケータイ用バーコード |
- スマートフォンでこの物件を見る
- スマートフォンからもこの物件をご覧になれます。
|
※「-」と表示されている項目については、情報提供会社にご確認ください。
| 周辺施設 |
まいばすけっと新川2丁目店 |
| 距離 |
380m |
| 周辺施設 |
ナチュラルローソン新川二丁目店 |
| 距離 |
106m |
| 周辺施設 |
ほっともっと新川2丁目店 |
| 距離 |
131m |
ここから簡単にお問い合わせをすることができます。
(SSLでの暗号化での送信を希望されるお客さまは
こちら
よりお問い合わせください)
お問い合わせを行う前に
「個人情報の取り扱いについて」を必ずお読みください。
「個人情報の取り扱いについて」に同意いただいた場合は「上記にご同意の上 確認画面へ進む」のボタンをクリックしてください。
個人情報の取り扱いについて
皆さまが送付された個人情報はアットホーム(株)のサーバを経由し、お問い合わせ先の不動産会社にメールまたはFAXにて転送されるためアットホーム(株)にも保管されます。アットホーム(株)で保管された個人情報の取り扱いについては、【こちら】をご覧ください。
また、本画面でご記入いただいた個人情報は、お問い合わせ先の不動産会社でも保管します。 お問い合わせ先の不動産会社が保管する個人情報の取り扱いについては、不動産会社に直接お問い合わせください。
東京都知事免許(4)第86803号 |
|---|
- 交通:
- JR山手線/東京駅 徒歩5分
- 東京都中央区日本橋3丁目8-3 SAKURA building1階
- TEL:
- 03-6262-5940
- FAX:
- 03-6262-5941
- 所属団体:
- (公社)全日本不動産協会会員(公社)首都圏不動産公正取引協議会加盟
取引態様:仲介  - 00273415
|
- スマートフォンで
この不動産会社を見る

|
- 提携サイト等より掲載されている物件情報につきましては、不動産会社詳細情報にリンクされていないものがあります。
- 物件に関するお問合せは、物件詳細ページの「情報提供会社」に表示されている不動産会社へ直接お願いいたします。
- 間取図は、現況を優先させていただきます。
- 映像は物件の一部を撮影したものです。物件の契約にあたっての最終判断はご自身の判断に基づいて行ってください。
- 仲介手数料について

アットホームは物件情報の適正化に努めております。
内容に誤りがある場合にはこちらへご連絡ください。