広島県広島市東区光町1丁目(広島駅)の貸事務所:物件詳細
交通 所在地 |
駅徒歩 |
賃料 管理費等 |
敷金/保証金 礼金 |
使用部分面積 坪数/坪単価 |
物件種目 築年月 |
|
芸備線/広島
広島県広島市東区光町1丁目
|
6分
|
39.61万円
なし
|
6ヶ月 / なし
なし
|
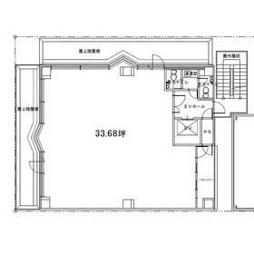
99.21m²
30.01坪/1.3199万円
|
貸事務所
1999年3月(築27年3ヶ月)
|
|
間取図
|
外観
|
<
その他の画像
>
|
| 交通 | 芸備線 広島駅 徒歩6分 |
|---|
| その他の交通 | 山陽新幹線 広島駅 徒歩6分 JR山陽本線 広島駅 徒歩6分 |
| 所在地 |
広島県広島市東区光町1丁目
|
| 物件種目 |
貸事務所 |
| 賃料 |
39.61万円 |
管理費等 |
なし |
| 敷金 / 保証金 |
6ヶ月 / なし |
礼金 |
なし |
| 敷引 |
- |
坪単価 |
1.3199万円 |
| 保証金償却 |
- |
権利金 |
- |
| 造作譲渡 |
- |
その他一時金 |
- |
| 維持費等 |
ごみ処理費用:5,500円/月 |
保険等 |
要 |
| 使用部分面積 |
99.21m² |
坪数 |
30.01坪 |
| 築年月 |
1999年3月(築27年3ヶ月)
|
階建 / 階 |
7階建 / 7階 |
| 駐車場 |
有 27,500円/月 敷金2ヶ月 |
バイク置き場 |
- |
| 駐輪場 |
- |
土地面積 |
- |
| 接道状況 |
-
|
用途地域 |
- |
| 間取り |
- |
建物構造 |
鉄骨造 |
| アピールポイント |
広島市東区エリアは弊社にお任せください!
光町一丁目交差点の角地に位置し、ガラス張りの特徴ある外観で視認性は良好です!
周辺にはドラックストアとコンビニ、銀行等があり利便性の高いエリアです。
1フロア1テナントとなりますので、お手洗い・給湯室等の共用部分を気兼ねなくご利用できます。
広島駅周辺で事務所をお探しでしたら、是非一度お問い合わせください! |
| 建物名・部屋番号 |
第4寺岡ビル |
| リフォーム履歴 |
- |
| リノベーション履歴 |
- |
| 特記事項 |
24時間利用可、最上階、24時間セキュリティー、天井高2.5M以上 |
| 備考 |
管理形態/管理員の勤務形態:-/-
|
| エネルギー消費性能 |
- |
| 断熱性能 |
- |
| 目安光熱費 |
- |
| バス・トイレ |
共用部分に男女別トイレあり |
| キッチン |
- |
| 設備・サービス |
個別空調、防犯カメラ、エアコン、インターネット対応、光ファイバー |
| その他 |
エレベーター |
| 契約期間 |
2年 |
条件等 |
-
|
| 引渡可能時期 |
即時 |
現況 |
空 |
| 更新料 |
- |
物件番号 |
6982809009 |
| 情報公開日 |
2024年7月2日 |
次回更新予定日 |
2026年5月22日 |
| ケータイ用バーコード |
- スマートフォンでこの物件を見る
- スマートフォンからもこの物件をご覧になれます。
|
※「-」と表示されている項目については、情報提供会社にご確認ください。
| 周辺施設 |
セブンイレブン広島光町店 |
| 距離 |
48m |
写真を見る |
| 周辺施設 |
ファミリーマート光町一丁目店 |
| 距離 |
99m |
写真を見る |
| 周辺施設 |
ローソン光町1丁目店 |
| 距離 |
100m |
写真を見る |
| 周辺施設 |
ウォンツ光町店 |
| 距離 |
74m |
写真を見る |
| 周辺施設 |
広島光郵便局 |
| 距離 |
191m |
写真を見る |
| 周辺施設 |
もみじ銀行広島光町支店 |
| 距離 |
188m |
写真を見る |
| 周辺施設 |
広島銀行広島駅北口支店 |
| 距離 |
401m |
写真を見る |
| 周辺施設 |
ゆうちょ銀行広島支店JR広島駅新幹線口内出張所 |
| 距離 |
506m |
写真を見る |
ここから簡単にお問い合わせをすることができます。
(SSLでの暗号化での送信を希望されるお客さまは
こちら
よりお問い合わせください)
お問い合わせを行う前に
「個人情報の取り扱いについて」を必ずお読みください。
「個人情報の取り扱いについて」に同意いただいた場合は「上記にご同意の上 確認画面へ進む」のボタンをクリックしてください。
個人情報の取り扱いについて
皆さまが送付された個人情報はアットホーム(株)のサーバを経由し、お問い合わせ先の不動産会社にメールまたはFAXにて転送されるためアットホーム(株)にも保管されます。アットホーム(株)で保管された個人情報の取り扱いについては、【こちら】をご覧ください。
また、本画面でご記入いただいた個人情報は、お問い合わせ先の不動産会社でも保管します。 お問い合わせ先の不動産会社が保管する個人情報の取り扱いについては、不動産会社に直接お問い合わせください。
国土交通大臣免許(4)第7938号 |
|---|
- 交通:
- 広島電鉄本線/紙屋町東駅 徒歩3分
- 広島県広島市中区立町2-23 野村不動産広島ビル6F
- TEL:
- 082-242-6600
- FAX:
- 082-242-6602
- 所属団体:
- (公社)全日本不動産協会会員中国地区不動産公正取引協議会加盟
取引態様:仲介  - 50108329
|
- スマートフォンで
この不動産会社を見る

|
- 提携サイト等より掲載されている物件情報につきましては、不動産会社詳細情報にリンクされていないものがあります。
- 物件に関するお問合せは、物件詳細ページの「情報提供会社」に表示されている不動産会社へ直接お願いいたします。
- 間取図は、現況を優先させていただきます。
- 映像は物件の一部を撮影したものです。物件の契約にあたっての最終判断はご自身の判断に基づいて行ってください。
- 仲介手数料について

アットホームは物件情報の適正化に努めております。
内容に誤りがある場合にはこちらへご連絡ください。