島根県松江市白瀉本町(松江しんじ湖温泉駅)の貸事務所:物件詳細
交通 所在地 |
駅徒歩 |
賃料 管理費等 |
敷金/保証金 礼金 |
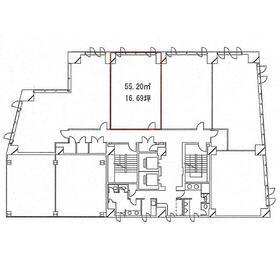
使用部分面積 坪数/坪単価 |
物件種目 築年月 |
|
一畑電車北松江線/松江しんじ湖温泉
島根県松江市白瀉本町
|
18分
|
要確認
|
要確認
|
55.20m²
16.69坪/要確認
|
貸事務所
1997年11月(築28年5ヶ月)
|
|
間取図
|
外観
|
<
その他の画像
>
|
| 交通 | 一畑電車北松江線 松江しんじ湖温泉駅 徒歩18分 |
|---|
| その他の交通 | JR山陰本線 松江駅 徒歩16分 |
| 所在地 |
島根県松江市白瀉本町
|
| 物件種目 |
貸事務所 |
| 賃料 |
要確認 |
管理費等 |
要確認 |
| 敷金 / 保証金 |
要確認 |
礼金 |
要確認 |
| 敷引 |
要確認 |
坪単価 |
要確認 |
| 保証金償却 |
要確認 |
権利金 |
- |
| 造作譲渡 |
- |
その他一時金 |
- |
| 維持費等 |
- |
保険等 |
要 |
| 使用部分面積 |
55.20m² |
坪数 |
16.69坪 |
| 築年月 |
1997年11月(築28年5ヶ月)
|
階建 / 階 |
8階建 / 7階 |
| 駐車場 |
有 11,000円/月 敷金無し |
バイク置き場 |
- |
| 駐輪場 |
- |
土地面積 |
- |
| 接道状況 |
-
|
用途地域 |
- |
| 間取り |
- |
建物構造 |
SRC |
| アピールポイント |
松江市中心部エリアは弊社にお任せください!
松江駅から徒歩12分・大橋の手前にございます!
貸室からは宍道湖が見渡せ、景観は良好です。
約17坪の広さなので、スタートアップや小規模企業様にお勧めでございます。
大橋を渡ると飲食店街がありますので、
お昼やお仕事終わりにも気軽に寄ることが出来便利です! |
| 建物名・部屋番号 |
|
| リフォーム履歴 |
- |
| リノベーション履歴 |
- |
| 特記事項 |
24時間利用可、24時間セキュリティー、天井高2.5M以上 |
| 備考 |
管理形態/管理員の勤務形態:-/-
|
| エネルギー消費性能 |
- |
| 断熱性能 |
- |
| 目安光熱費 |
- |
| バス・トイレ |
共用部分に男女別トイレあり |
| キッチン |
- |
| 設備・サービス |
個別空調、エアコン、インターネット対応、光ファイバー |
| その他 |
エレベーター2基以上、エレベーター |
| 契約期間 |
要確認 |
条件等 |
-
|
| 引渡可能時期 |
即時 |
現況 |
空 |
| 更新料 |
要確認 |
物件番号 |
6982835905 |
| 情報公開日 |
2024年7月5日 |
次回更新予定日 |
2026年4月1日 |
| ケータイ用バーコード |
- スマートフォンでこの物件を見る
- スマートフォンからもこの物件をご覧になれます。
|
※「-」と表示されている項目については、情報提供会社にご確認ください。
| 周辺施設 |
ローソン松江母衣町店 |
| 距離 |
503m |
写真を見る |
| 周辺施設 |
セブンイレブン松江米子町店 |
| 距離 |
648m |
写真を見る |
| 周辺施設 |
松江白潟本町郵便局 |
| 距離 |
76m |
写真を見る |
| 周辺施設 |
山陰合同銀行本店営業部 |
| 距離 |
94m |
写真を見る |
| 周辺施設 |
みずほ銀行松江支店 |
| 距離 |
280m |
写真を見る |
| 周辺施設 |
松江市役所 |
| 距離 |
1152m |
写真を見る |
ここから簡単にお問い合わせをすることができます。
(SSLでの暗号化での送信を希望されるお客さまは
こちら
よりお問い合わせください)
お問い合わせを行う前に
「個人情報の取り扱いについて」を必ずお読みください。
「個人情報の取り扱いについて」に同意いただいた場合は「上記にご同意の上 確認画面へ進む」のボタンをクリックしてください。
個人情報の取り扱いについて
皆さまが送付された個人情報はアットホーム(株)のサーバを経由し、お問い合わせ先の不動産会社にメールまたはFAXにて転送されるためアットホーム(株)にも保管されます。アットホーム(株)で保管された個人情報の取り扱いについては、【こちら】をご覧ください。
また、本画面でご記入いただいた個人情報は、お問い合わせ先の不動産会社でも保管します。 お問い合わせ先の不動産会社が保管する個人情報の取り扱いについては、不動産会社に直接お問い合わせください。
国土交通大臣免許(4)第7938号 |
|---|
- 交通:
- 広島電鉄本線/紙屋町東駅 徒歩3分
- 広島県広島市中区立町2-23 野村不動産広島ビル6F
- TEL:
- 082-242-6600
- FAX:
- 082-242-6602
- 所属団体:
- (公社)全日本不動産協会会員中国地区不動産公正取引協議会加盟
取引態様:仲介  - 50108329
|
- スマートフォンで
この不動産会社を見る

|
- 提携サイト等より掲載されている物件情報につきましては、不動産会社詳細情報にリンクされていないものがあります。
- 物件に関するお問合せは、物件詳細ページの「情報提供会社」に表示されている不動産会社へ直接お願いいたします。
- 間取図は、現況を優先させていただきます。
- 映像は物件の一部を撮影したものです。物件の契約にあたっての最終判断はご自身の判断に基づいて行ってください。
- 仲介手数料について

アットホームは物件情報の適正化に努めております。
内容に誤りがある場合にはこちらへご連絡ください。