大阪府大阪市中央区南船場1丁目(長堀橋駅)の貸事務所:物件詳細
交通 所在地 |
駅徒歩 |
賃料 管理費等 |
敷金/保証金 礼金 |
使用部分面積 坪数/坪単価 |
物件種目 築年月 |
|
地下鉄長堀鶴見緑地線/長堀橋
大阪府大阪市中央区南船場1丁目
|
2分
|
4.96万円
28,732円
|
なし / 22.85万円
なし
|
21.59m²
6.53坪/0.7595万円
|
貸事務所
1976年4月(築50年)
|
|
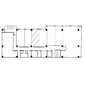
間取図
|
外観
外観
|
その他の画像
|
| 交通 | 地下鉄長堀鶴見緑地線 長堀橋駅 徒歩2分 |
| 所在地 |
大阪府大阪市中央区南船場1丁目
|
| 物件種目 |
貸事務所 |
| 賃料 |
4.96万円 |
管理費等 |
28,732円 |
| 敷金 / 保証金 |
なし / 22.85万円 |
礼金 |
なし |
| 敷引 |
- |
坪単価 |
0.7595万円 |
| 保証金償却 |
- |
権利金 |
- |
| 造作譲渡 |
- |
その他一時金 |
- |
| 維持費等 |
- |
保険等 |
不要 |
| 使用部分面積 |
21.59m² |
坪数 |
6.53坪 |
| 築年月 |
1976年4月(築50年)
|
階建 / 階 |
10階建 / 4階 |
| 駐車場 |
- |
バイク置き場 |
- |
| 駐輪場 |
有 4,950円/月 |
土地面積 |
- |
| 接道状況 |
-
|
用途地域 |
- |
| 間取り |
- |
建物構造 |
SRC |
| アピールポイント |
仲介手数料無料! |
| 建物名・部屋番号 |
|
| リフォーム履歴 |
■その他:2016年12月 全室空調入替え 2020年02月共用部タイルカーペット張替え ※実施年月は最も古い履歴を表示 |
| リノベーション履歴 |
- |
| 特記事項 |
24時間利用可、有人警備、フリーレント、24時間セキュリティー |
| 備考 |
賃貸保証等:加入要(保証会社加入必須)
管理形態/管理員の勤務形態:-/-
フリーレント:1ヶ月
保証金半額プラン適応(保証会社加入必須)
|
| エネルギー消費性能 |
- |
| 断熱性能 |
- |
| 目安光熱費 |
- |
| バス・トイレ |
共用部分に男女別トイレあり |
| キッチン |
- |
| 設備・サービス |
個別空調、給湯、エアコン、火災警報器(報知機) |
| その他 |
エレベーター |
| 契約期間 |
2年 |
条件等 |
定期借家
|
| 引渡可能時期 |
即時 |
現況 |
空 |
| 仲介手数料 |
不要 |
|
|
| 更新料 |
- |
物件番号 |
6983356587 |
| 情報公開日 |
2025年2月26日 |
次回更新予定日 |
2026年4月3日 |
| ケータイ用バーコード |
- スマートフォンでこの物件を見る
- スマートフォンからもこの物件をご覧になれます。
|
※「-」と表示されている項目については、情報提供会社にご確認ください。
ここから簡単にお問い合わせをすることができます。
(SSLでの暗号化での送信を希望されるお客さまは
こちら
よりお問い合わせください)
お問い合わせを行う前に
「個人情報の取り扱いについて」を必ずお読みください。
「個人情報の取り扱いについて」に同意いただいた場合は「上記にご同意の上 確認画面へ進む」のボタンをクリックしてください。
個人情報の取り扱いについて
皆さまが送付された個人情報はアットホーム(株)のサーバを経由し、お問い合わせ先の不動産会社にメールまたはFAXにて転送されるためアットホーム(株)にも保管されます。アットホーム(株)で保管された個人情報の取り扱いについては、【こちら】をご覧ください。
また、本画面でご記入いただいた個人情報は、お問い合わせ先の不動産会社でも保管します。 お問い合わせ先の不動産会社が保管する個人情報の取り扱いについては、不動産会社に直接お問い合わせください。
大阪府知事免許(8)第34324号 |
|---|
- 交通:
- 地下鉄堺筋線/南森町駅 徒歩5分
- 大阪府大阪市北区西天満4丁目3-18 MF西天満ビル
- TEL:
- 06-6364-5377
- FAX:
- 06-6362-3675
取引態様:代理  - 50027198
|
- スマートフォンで
この不動産会社を見る

|
- 提携サイト等より掲載されている物件情報につきましては、不動産会社詳細情報にリンクされていないものがあります。
- 物件に関するお問合せは、物件詳細ページの「情報提供会社」に表示されている不動産会社へ直接お願いいたします。
- 間取図は、現況を優先させていただきます。
- 映像は物件の一部を撮影したものです。物件の契約にあたっての最終判断はご自身の判断に基づいて行ってください。
- 仲介手数料について

アットホームは物件情報の適正化に努めております。
内容に誤りがある場合にはこちらへご連絡ください。