大阪府大阪市中央区南本町2丁目(堺筋本町駅)の貸事務所:物件詳細
交通 所在地 |
駅徒歩 |
賃料 管理費等 |
敷金/保証金 礼金 |
使用部分面積 坪数/坪単価 |
物件種目 築年月 |
|
地下鉄堺筋線/堺筋本町
大阪府大阪市中央区南本町2丁目
|
2分
|
165.33万円
330,660円
|
3ヶ月 / なし
3ヶ月
|
496.09m²
150.06坪/1.1018万円
|
貸事務所
1962年5月(築63年6ヶ月)
|
|
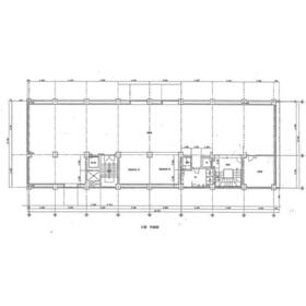
間取図
5階の図面です
|
間取図
6階の図面です
|
<
その他の画像
>
|
| 交通 | 地下鉄堺筋線 堺筋本町駅 徒歩2分 |
|---|
| その他の交通 | 地下鉄中央線 堺筋本町駅 徒歩4分 地下鉄御堂筋線 本町駅 徒歩7分 |
| 所在地 |
大阪府大阪市中央区南本町2丁目
|
| 物件種目 |
貸事務所 |
| 賃料 |
165.33万円 |
管理費等 |
330,660円 |
| 敷金 / 保証金 |
3ヶ月 / なし |
礼金 |
3ヶ月 |
| 敷引 |
- |
坪単価 |
1.1018万円 |
| 保証金償却 |
- |
権利金 |
- |
| 造作譲渡 |
- |
その他一時金 |
- |
| 維持費等 |
- |
保険等 |
- |
| 使用部分面積 |
496.09m² |
坪数 |
150.06坪 |
| 築年月 |
1962年5月(築63年6ヶ月)
|
階建 / 階 |
地上8階地下1階建 / 5階 |
| 駐車場 |
- |
バイク置き場 |
- |
| 駐輪場 |
- |
土地面積 |
- |
| 接道状況 |
-
|
用途地域 |
- |
| 間取り |
- |
建物構造 |
RC |
| アピールポイント |
賃貸テナント募集中です♪
5階6階セット契約の場合は賃料相談可能です♪ |
| 建物名・部屋番号 |
|
| リフォーム履歴 |
- |
| リノベーション履歴 |
- |
| 特記事項 |
- |
| 備考 |
管理形態/管理員の勤務形態:-/-
|
| エネルギー消費性能 |
- |
| 断熱性能 |
- |
| 目安光熱費 |
- |
| バス・トイレ |
トイレ |
| キッチン |
- |
| 設備・サービス |
- |
| その他 |
- |
| 契約期間 |
5年 |
条件等 |
定期借家
|
| 引渡可能時期 |
相談 |
現況 |
空 |
| 更新料 |
- |
物件番号 |
6984142221 |
| 情報公開日 |
2024年11月11日 |
次回更新予定日 |
2025年11月4日 |
| ケータイ用バーコード |
- スマートフォンでこの物件を見る
- スマートフォンからもこの物件をご覧になれます。
|
※「-」と表示されている項目については、情報提供会社にご確認ください。
| 周辺施設 |
ローソン南本町二丁目店 |
| 距離 |
102m |
写真を見る |
| 周辺施設 |
ダイコクドラッグ船場店 |
| 距離 |
106m |
写真を見る |
| 周辺施設 |
(株)紀伊國屋書店本町店 |
| 距離 |
179m |
写真を見る |
| 周辺施設 |
Seria紀伊國屋本町店 |
| 距離 |
180m |
写真を見る |
ここから簡単にお問い合わせをすることができます。
(SSLでの暗号化での送信を希望されるお客さまは
こちら
よりお問い合わせください)
お問い合わせを行う前に
「個人情報の取り扱いについて」を必ずお読みください。
「個人情報の取り扱いについて」に同意いただいた場合は「上記にご同意の上 確認画面へ進む」のボタンをクリックしてください。
個人情報の取り扱いについて
皆さまが送付された個人情報はアットホーム(株)のサーバを経由し、お問い合わせ先の不動産会社にメールまたはFAXにて転送されるためアットホーム(株)にも保管されます。アットホーム(株)で保管された個人情報の取り扱いについては、【こちら】をご覧ください。
また、本画面でご記入いただいた個人情報は、お問い合わせ先の不動産会社でも保管します。 お問い合わせ先の不動産会社が保管する個人情報の取り扱いについては、不動産会社に直接お問い合わせください。
大阪府知事免許(3)第58283号 |
|---|
- 交通:
- JR阪和線/長居駅 徒歩1分
- 大阪府大阪市住吉区長居3丁目2-11 RE/MAXビル
- TEL:
- 06-4703-3300
- FAX:
- 06-4703-3993
- 所属団体:
- (一社)大阪府宅地建物取引業協会会員(公社)近畿地区不動産公正取引協議会加盟
取引態様:仲介  - 50026982
|
- スマートフォンで
この不動産会社を見る

|
- 提携サイト等より掲載されている物件情報につきましては、不動産会社詳細情報にリンクされていないものがあります。
- 物件に関するお問合せは、物件詳細ページの「情報提供会社」に表示されている不動産会社へ直接お願いいたします。
- 間取図は、現況を優先させていただきます。
- 映像は物件の一部を撮影したものです。物件の契約にあたっての最終判断はご自身の判断に基づいて行ってください。
- 仲介手数料について

アットホームは物件情報の適正化に努めております。
内容に誤りがある場合にはこちらへご連絡ください。