宮崎県宮崎市広島1丁目(宮崎駅)の貸事務所:物件詳細
交通 所在地 |
駅徒歩 |
賃料 管理費等 |
敷金/保証金 礼金 |
使用部分面積 坪数/坪単価 |
物件種目 築年月 |
|
JR日豊本線/宮崎 [バス利用可] バス 宮崎税務署前 停歩1分
宮崎県宮崎市広島1丁目
|
8分
|
8.58万円
なし
|
3ヶ月 / なし
なし
|
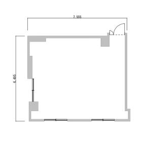
42.90m²
12.97坪/0.6612万円
|
貸事務所
1979年5月(築46年11ヶ月)
|
|
間取図
|
外観
|
<
その他の画像
>
|
| 交通 | JR日豊本線 宮崎駅 徒歩8分 [バス利用可] バス 宮崎税務署前 停歩1分 |
| 所在地 |
宮崎県宮崎市広島1丁目
|
| 物件種目 |
貸事務所 |
| 賃料 |
8.58万円 |
管理費等 |
なし |
| 敷金 / 保証金 |
3ヶ月 / なし |
礼金 |
なし |
| 敷引 |
- |
坪単価 |
0.6612万円 |
| 保証金償却 |
- |
権利金 |
- |
| 造作譲渡 |
- |
その他一時金 |
- |
| 維持費等 |
- |
保険等 |
要 火災 |
| 使用部分面積 |
42.90m² |
坪数 |
12.97坪 |
| 築年月 |
1979年5月(築46年11ヶ月)
|
階建 / 階 |
5階建 / 2階 |
| 駐車場 |
有 8,800円/月(空き1台) 1階屋内駐車場 |
バイク置き場 |
- |
| 駐輪場 |
- |
土地面積 |
- |
| 接道状況 |
-
|
用途地域 |
- |
| 間取り |
- |
建物構造 |
RC |
| アピールポイント |
市内中心部の貸事務所です。
宮崎駅徒歩8分、宮崎中央郵便局徒歩5分!
中心市街地も近く宮崎県庁徒歩6分と便利な立地です。
2階の事務所で給湯・トイレあり。
駐車場は敷地内1台まで!
※飲食店不可 |
| 建物名・部屋番号 |
桂ビル(2階貸事務所) 201号 |
| リフォーム履歴 |
- |
| リノベーション履歴 |
- |
| 特記事項 |
飲食店不可 |
| 備考 |
賃貸保証等:加入要(総賃料の100%)
管理形態/管理員の勤務形態:-/-
市内中心部の貸事務所です。
宮崎駅徒歩8分、宮崎中央郵便局徒歩5分!
中心市街地も近く宮崎県庁徒歩6分と便利な立地です。
2階の事務所で給湯・トイレあり。
駐車場は敷地内1台まで!
|
| エネルギー消費性能 |
- |
| 断熱性能 |
- |
| 目安光熱費 |
- |
| バス・トイレ |
共用部分に男女別トイレあり |
| キッチン |
- |
| 設備・サービス |
- |
| その他 |
- |
| 契約期間 |
2年 |
条件等 |
-
|
| 引渡可能時期 |
相談 |
現況 |
空 |
| 仲介手数料 |
1ヶ月 |
|
|
| 更新料 |
なし |
物件番号 |
6984484063 |
| 情報公開日 |
2024年12月11日 |
次回更新予定日 |
2026年3月27日 |
| ケータイ用バーコード |
- スマートフォンでこの物件を見る
- スマートフォンからもこの物件をご覧になれます。
|
※「-」と表示されている項目については、情報提供会社にご確認ください。
| 周辺施設 |
アミュプラザみやざきやま館 |
| 距離 |
424m |
| 周辺施設 |
山形屋ストア宮崎山形屋店 |
| 距離 |
492m |
| 周辺施設 |
セブンイレブン宮崎広島2丁目店 |
| 距離 |
409m |
ここから簡単にお問い合わせをすることができます。
(SSLでの暗号化での送信を希望されるお客さまは
こちら
よりお問い合わせください)
お問い合わせを行う前に
「個人情報の取り扱いについて」を必ずお読みください。
「個人情報の取り扱いについて」に同意いただいた場合は「上記にご同意の上 確認画面へ進む」のボタンをクリックしてください。
個人情報の取り扱いについて
皆さまが送付された個人情報はアットホーム(株)のサーバを経由し、お問い合わせ先の不動産会社にメールまたはFAXにて転送されるためアットホーム(株)にも保管されます。アットホーム(株)で保管された個人情報の取り扱いについては、【こちら】をご覧ください。
また、本画面でご記入いただいた個人情報は、お問い合わせ先の不動産会社でも保管します。 お問い合わせ先の不動産会社が保管する個人情報の取り扱いについては、不動産会社に直接お問い合わせください。
宮崎県知事免許(6)第4110号 |
|---|
- 交通:
- JR日豊本線/宮崎駅 徒歩13分
- 宮崎県宮崎市永楽町1-3
- TEL:
- 0985-25-1330
- FAX:
- 0985-28-8910
- 所属団体:
- (一社)宮崎県宅地建物取引業協会会員(一社)九州不動産公正取引協議会加盟
取引態様:仲介  - 80500707
|
- スマートフォンで
この不動産会社を見る

|
- 提携サイト等より掲載されている物件情報につきましては、不動産会社詳細情報にリンクされていないものがあります。
- 物件に関するお問合せは、物件詳細ページの「情報提供会社」に表示されている不動産会社へ直接お願いいたします。
- 間取図は、現況を優先させていただきます。
- 映像は物件の一部を撮影したものです。物件の契約にあたっての最終判断はご自身の判断に基づいて行ってください。
- 仲介手数料について

アットホームは物件情報の適正化に努めております。
内容に誤りがある場合にはこちらへご連絡ください。