茨城県水戸市東原1丁目(赤塚駅)の貸事務所:物件詳細
交通 所在地 |
駅徒歩 |
賃料 管理費等 |
敷金/保証金 礼金 |
使用部分面積 坪数/坪単価 |
物件種目 築年月 |
|
JR常磐線/赤塚
茨城県水戸市東原1丁目
|
3900m
|
13.2万円
38,000円
|
3ヶ月 / なし
1ヶ月
|
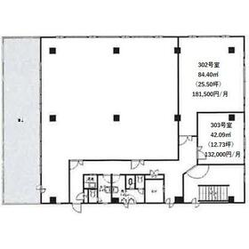
42.09m²
12.73坪/1.0368万円
|
貸事務所
1993年3月(築32年10ヶ月)
|
| 交通 | JR常磐線 赤塚駅 徒歩3900m |
| 所在地 |
茨城県水戸市東原1丁目
|
| 物件種目 |
貸事務所 |
| 賃料 |
13.2万円 |
管理費等 |
38,000円 |
| 敷金 / 保証金 |
3ヶ月 / なし |
礼金 |
1ヶ月 |
| 敷引 |
- |
坪単価 |
1.0368万円 |
| 保証金償却 |
- |
権利金 |
- |
| 造作譲渡 |
- |
その他一時金 |
- |
| 維持費等 |
- |
保険等 |
要 3年 火災 |
| 使用部分面積 |
42.09m² |
坪数 |
12.73坪 |
| 築年月 |
1993年3月(築32年10ヶ月)
|
階建 / 階 |
4階建 / 3階 |
| 駐車場 |
有 5,000円/月 |
バイク置き場 |
- |
| 駐輪場 |
- |
土地面積 |
- |
| 接道状況 |
-
|
用途地域 |
- |
| 間取り |
- |
建物構造 |
RC |
| アピールポイント |
◆広々駐車場
◆1Fが100円ショップ「セリア」
◆国道50号線沿い |
| 建物名・部屋番号 |
沼津ヶ澤ビル 302 |
| リフォーム履歴 |
- |
| リノベーション履歴 |
- |
| 特記事項 |
駐車場3台分以上、24時間セキュリティー、国道沿いに面する |
| 備考 |
賃貸保証等:加入要(加えて審査の結果、連帯保証人が必要となる場合がございます。)
管理形態/管理員の勤務形態:-/-
セキュリティ付
【302号室】 賃料181,500円
|
| エネルギー消費性能 |
- |
| 断熱性能 |
- |
| 目安光熱費 |
- |
| バス・トイレ |
- |
| キッチン |
- |
| 設備・サービス |
都市ガス、エアコン |
| その他 |
エレベーター |
| 契約期間 |
3年 |
条件等 |
-
|
| 引渡可能時期 |
相談 |
現況 |
使用中 |
| 更新料 |
- |
物件番号 |
6984721046 |
| 情報公開日 |
2025年6月6日 |
次回更新予定日 |
2025年12月13日 |
| ケータイ用バーコード |
- スマートフォンでこの物件を見る
- スマートフォンからもこの物件をご覧になれます。
|
※「-」と表示されている項目については、情報提供会社にご確認ください。
ここから簡単にお問い合わせをすることができます。
(SSLでの暗号化での送信を希望されるお客さまは
こちら
よりお問い合わせください)
お問い合わせを行う前に
「個人情報の取り扱いについて」を必ずお読みください。
「個人情報の取り扱いについて」に同意いただいた場合は「上記にご同意の上 確認画面へ進む」のボタンをクリックしてください。
個人情報の取り扱いについて
皆さまが送付された個人情報はアットホーム(株)のサーバを経由し、お問い合わせ先の不動産会社にメールまたはFAXにて転送されるためアットホーム(株)にも保管されます。アットホーム(株)で保管された個人情報の取り扱いについては、【こちら】をご覧ください。
また、本画面でご記入いただいた個人情報は、お問い合わせ先の不動産会社でも保管します。 お問い合わせ先の不動産会社が保管する個人情報の取り扱いについては、不動産会社に直接お問い合わせください。
茨城県知事免許(2)第7374号 |
|---|
- 交通:
- JR常磐線/水戸駅 徒歩13分 【バス】2分 南町3丁目 停歩5分
- 茨城県水戸市南町3丁目3-43 小林ビル3F-A
- TEL:
- 029-225-9000
- FAX:
- 029-297-9161
- 所属団体:
- (公社)全日本不動産協会会員(公社)首都圏不動産公正取引協議会加盟
取引態様:仲介  - 00269361
|
- スマートフォンで
この不動産会社を見る

|
- 提携サイト等より掲載されている物件情報につきましては、不動産会社詳細情報にリンクされていないものがあります。
- 物件に関するお問合せは、物件詳細ページの「情報提供会社」に表示されている不動産会社へ直接お願いいたします。
- 間取図は、現況を優先させていただきます。
- 映像は物件の一部を撮影したものです。物件の契約にあたっての最終判断はご自身の判断に基づいて行ってください。
- 仲介手数料について

アットホームは物件情報の適正化に努めております。
内容に誤りがある場合にはこちらへご連絡ください。