大阪府大阪市中央区南船場1丁目(長堀橋駅)の貸事務所:物件詳細
交通 所在地 |
駅徒歩 |
賃料 管理費等 |
敷金/保証金 礼金 |
使用部分面積 坪数/坪単価 |
物件種目 築年月 |
|
地下鉄長堀鶴見緑地線/長堀橋
大阪府大阪市中央区南船場1丁目
|
4分
|
要確認
|
要確認
|
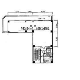
152.52m²
46.13坪/要確認
|
貸事務所
2000年1月(築26年3ヶ月)
|
|
間取図
|
外観
|
<
その他の画像
>
|
| 交通 | 地下鉄長堀鶴見緑地線 長堀橋駅 徒歩4分 |
|---|
| その他の交通 | 地下鉄堺筋線 長堀橋駅 徒歩5分 地下鉄長堀鶴見緑地線 松屋町駅 徒歩7分 |
| 所在地 |
大阪府大阪市中央区南船場1丁目
|
| 物件種目 |
貸事務所 |
| 賃料 |
要確認 |
管理費等 |
要確認 |
| 敷金 / 保証金 |
要確認 |
礼金 |
要確認 |
| 敷引 |
要確認 |
坪単価 |
要確認 |
| 保証金償却 |
要確認 |
権利金 |
- |
| 造作譲渡 |
- |
その他一時金 |
- |
| 維持費等 |
- |
保険等 |
- |
| 使用部分面積 |
152.52m² |
坪数 |
46.13坪 |
| 築年月 |
2000年1月(築26年3ヶ月)
|
階建 / 階 |
地上9階地下1階建 / 7階 |
| 駐車場 |
- |
バイク置き場 |
- |
| 駐輪場 |
- |
土地面積 |
- |
| 接道状況 |
-
|
用途地域 |
- |
| 間取り |
- |
建物構造 |
SRC |
| 建物名・部屋番号 |
南船場M21ビル 7F 46.14坪 |
| リフォーム履歴 |
- |
| リノベーション履歴 |
- |
| 特記事項 |
24時間利用可、OAフロア、24時間セキュリティー、耐震構造(新耐震基準)、天井高2.5M以上 |
| 備考 |
管理形態/管理員の勤務形態:-/-
|
| エネルギー消費性能 |
- |
| 断熱性能 |
- |
| 目安光熱費 |
- |
| バス・トイレ |
共用部分に男女別トイレあり |
| キッチン |
- |
| 設備・サービス |
個別空調、オートロック、暖房、冷房 |
| その他 |
エレベーター |
| 契約期間 |
要確認 |
条件等 |
-
|
| 引渡可能時期 |
即時 |
現況 |
空 |
| 更新料 |
要確認 |
物件番号 |
6985095552 |
| 情報公開日 |
2025年2月5日 |
次回更新予定日 |
2026年4月10日 |
| ケータイ用バーコード |
- スマートフォンでこの物件を見る
- スマートフォンからもこの物件をご覧になれます。
|
※「-」と表示されている項目については、情報提供会社にご確認ください。
| 周辺施設 |
ローソン長堀橋店 |
| 距離 |
196m |
写真を見る |
| 周辺施設 |
ファミリーマート南船場一丁目店 |
| 距離 |
150m |
写真を見る |
| 周辺施設 |
ほっかほっか亭南船場一丁目店 |
| 距離 |
180m |
| 周辺施設 |
大阪南船場一郵便局 |
| 距離 |
255m |
写真を見る |
ここから簡単にお問い合わせをすることができます。
(SSLでの暗号化での送信を希望されるお客さまは
こちら
よりお問い合わせください)
お問い合わせを行う前に
「個人情報の取り扱いについて」を必ずお読みください。
「個人情報の取り扱いについて」に同意いただいた場合は「上記にご同意の上 確認画面へ進む」のボタンをクリックしてください。
個人情報の取り扱いについて
皆さまが送付された個人情報はアットホーム(株)のサーバを経由し、お問い合わせ先の不動産会社にメールまたはFAXにて転送されるためアットホーム(株)にも保管されます。アットホーム(株)で保管された個人情報の取り扱いについては、【こちら】をご覧ください。
また、本画面でご記入いただいた個人情報は、お問い合わせ先の不動産会社でも保管します。 お問い合わせ先の不動産会社が保管する個人情報の取り扱いについては、不動産会社に直接お問い合わせください。
国土交通大臣免許(4)第7938号 |
|---|
- 交通:
- 地下鉄四つ橋線/本町駅 徒歩1分
- 大阪府大阪市西区靱本町1丁目11-7 信濃橋三井ビル11F
- TEL:
- 06-6147-9791
- FAX:
- 06-6147-9792
- 所属団体:
- (公社)全日本不動産協会会員(公社)近畿地区不動産公正取引協議会加盟
取引態様:仲介  - 50108170
|
- スマートフォンで
この不動産会社を見る

|
- 提携サイト等より掲載されている物件情報につきましては、不動産会社詳細情報にリンクされていないものがあります。
- 物件に関するお問合せは、物件詳細ページの「情報提供会社」に表示されている不動産会社へ直接お願いいたします。
- 間取図は、現況を優先させていただきます。
- 映像は物件の一部を撮影したものです。物件の契約にあたっての最終判断はご自身の判断に基づいて行ってください。
- 仲介手数料について

アットホームは物件情報の適正化に努めております。
内容に誤りがある場合にはこちらへご連絡ください。