東京都豊島区東池袋4丁目(池袋駅)の貸事務所:物件詳細
交通 所在地 |
駅徒歩 |
賃料 管理費等 |
敷金/保証金 礼金 |
使用部分面積 坪数/坪単価 |
物件種目 築年月 |
|
JR山手線/池袋
東京都豊島区東池袋4丁目
|
7分
|
62.535万円
83,380円
|
なし / 10ヶ月
なし
|
125.29m²
37.90坪/1.65万円
|
貸事務所
1998年1月(築28年)
|
|
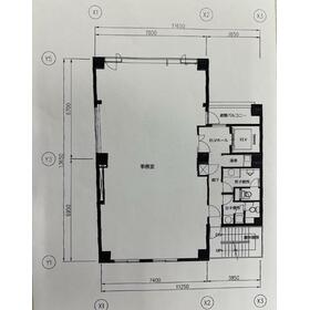
間取図
|
|
<
その他の画像
>
|
| 交通 | JR山手線 池袋駅 徒歩7分 |
|---|
| その他の交通 | 東京メトロ丸ノ内線 池袋駅 徒歩7分 東京メトロ有楽町線 東池袋駅 徒歩3分 |
| 所在地 |
東京都豊島区東池袋4丁目
|
| 物件種目 |
貸事務所 |
| 賃料 |
62.535万円 |
管理費等 |
83,380円 |
| 敷金 / 保証金 |
なし / 10ヶ月 |
礼金 |
なし |
| 敷引 |
- |
坪単価 |
1.65万円 |
| 保証金償却 |
解約時2ヶ月 |
権利金 |
- |
| 造作譲渡 |
- |
その他一時金 |
- |
| 維持費等 |
- |
保険等 |
要 2年 |
| 使用部分面積 |
125.29m² |
坪数 |
37.90坪 |
| 築年月 |
1998年1月(築28年)
|
階建 / 階 |
8階建 / 6階 |
| 駐車場 |
- |
バイク置き場 |
- |
| 駐輪場 |
- |
土地面積 |
- |
| 接道状況 |
-
|
用途地域 |
- |
| 間取り |
- |
建物構造 |
鉄骨造 |
| アピールポイント |
■物件名:池袋今泉ビル 6F
■住所:豊島区東池袋4丁目25-12
■サンシャイン60目の前
■機械警備、男女別トイレ完備
○山手線【池袋駅】徒歩7分、有楽町線【東池袋駅】徒歩2分、
サンシャイン60目の前の立地
○管理体制良好な綺麗な建物
○男女別トイレ、機械警備完備
池袋今泉ビルのお問い合わせは、
事業用専門不動産の株式会社エンジンテラスまで! |
| 建物名・部屋番号 |
池袋今泉ビル 601 |
| リフォーム履歴 |
- |
| リノベーション履歴 |
- |
| 特記事項 |
24時間利用可、24時間セキュリティー |
| 備考 |
賃貸保証等:加入要(契約プランに基づく。)
管理形態/管理員の勤務形態:-/-
|
| エネルギー消費性能 |
- |
| 断熱性能 |
- |
| 目安光熱費 |
- |
| バス・トイレ |
専有部分に男女別トイレあり |
| キッチン |
- |
| 設備・サービス |
エアコン、光ファイバー |
| その他 |
エレベーター |
| 契約期間 |
2年 |
条件等 |
-
|
| 引渡可能時期 |
2025年12月中旬予定 |
現況 |
使用中 |
| 仲介手数料 |
1ヶ月 |
|
|
| 更新料 |
新賃料 1ヶ月 |
物件番号 |
6985398525 |
| 情報公開日 |
2025年2月28日 |
次回更新予定日 |
2025年12月25日 |
| ケータイ用バーコード |
- スマートフォンでこの物件を見る
- スマートフォンからもこの物件をご覧になれます。
|
※「-」と表示されている項目については、情報提供会社にご確認ください。
| 周辺施設 |
まいばすけっと東池袋4丁目店 |
| 距離 |
78m |
写真を見る |
| 周辺施設 |
ファミマサンシャイン店 |
| 距離 |
215m |
写真を見る |
| 周辺施設 |
ジョナサン池袋サンシャイン前店 |
| 距離 |
56m |
写真を見る |
| 周辺施設 |
カフェ・ベローチェ池袋サンシャイン前店 |
| 距離 |
75m |
写真を見る |
| 周辺施設 |
サンシャイン60内郵便局 |
| 距離 |
215m |
写真を見る |
| 周辺施設 |
池袋警察署 |
| 距離 |
1271m |
写真を見る |
| 周辺施設 |
サンシャインパーキング(南A入口) |
| 距離 |
215m |
写真を見る |
ここから簡単にお問い合わせをすることができます。
(SSLでの暗号化での送信を希望されるお客さまは
こちら
よりお問い合わせください)
お問い合わせを行う前に
「個人情報の取り扱いについて」を必ずお読みください。
「個人情報の取り扱いについて」に同意いただいた場合は「上記にご同意の上 確認画面へ進む」のボタンをクリックしてください。
個人情報の取り扱いについて
皆さまが送付された個人情報はアットホーム(株)のサーバを経由し、お問い合わせ先の不動産会社にメールまたはFAXにて転送されるためアットホーム(株)にも保管されます。アットホーム(株)で保管された個人情報の取り扱いについては、【こちら】をご覧ください。
また、本画面でご記入いただいた個人情報は、お問い合わせ先の不動産会社でも保管します。 お問い合わせ先の不動産会社が保管する個人情報の取り扱いについては、不動産会社に直接お問い合わせください。
東京都知事免許(3)第94555号 |
|---|
- 交通:
- JR山手線/池袋駅 徒歩5分
- 東京都豊島区東池袋1丁目44-10 タイガースビル702
- TEL:
- 03-5953-2622
- FAX:
- 03-5953-2621
- 所属団体:
- (公社)全日本不動産協会会員(公社)首都圏不動産公正取引協議会加盟
取引態様:仲介  - 00160967
|
- スマートフォンで
この不動産会社を見る

|
- 提携サイト等より掲載されている物件情報につきましては、不動産会社詳細情報にリンクされていないものがあります。
- 物件に関するお問合せは、物件詳細ページの「情報提供会社」に表示されている不動産会社へ直接お願いいたします。
- 間取図は、現況を優先させていただきます。
- 映像は物件の一部を撮影したものです。物件の契約にあたっての最終判断はご自身の判断に基づいて行ってください。
- 仲介手数料について

アットホームは物件情報の適正化に努めております。
内容に誤りがある場合にはこちらへご連絡ください。