東京都新宿区新宿5丁目(新宿御苑前駅)の貸事務所:物件詳細
交通 所在地 |
駅徒歩 |
賃料 管理費等 |
敷金/保証金 礼金 |
使用部分面積 坪数/坪単価 |
物件種目 築年月 |
東京メトロ丸ノ内線/新宿御苑前
東京都新宿区新宿5丁目
|
5分
|
18.48万円
33,000円
|
なし / 120万円
なし
|
51.70m²
15.63坪/1.1817万円
|
貸事務所
1963年3月(築62年8ヶ月)
|
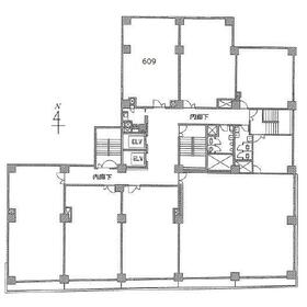
間取図
|
|
その他の画像
|
交通 | 東京メトロ丸ノ内線 新宿御苑前駅 徒歩5分 |
---|
その他の交通 | 都営新宿線 新宿三丁目駅 徒歩6分 東京メトロ丸ノ内線 新宿駅 徒歩15分 |
所在地 |
東京都新宿区新宿5丁目
|
物件種目 |
貸事務所 |
賃料 |
18.48万円 |
管理費等 |
33,000円 |
敷金 / 保証金 |
なし / 120万円 |
礼金 |
なし |
敷引 |
- |
坪単価 |
1.1817万円 |
保証金償却 |
- |
権利金 |
- |
造作譲渡 |
- |
その他一時金 |
- |
維持費等 |
- |
保険等 |
要 火災 |
使用部分面積 |
51.70m² |
坪数 |
15.63坪 |
築年月 |
1963年3月(築62年8ヶ月)
|
階建 / 階 |
地上10階地下1階建 / 6階 |
駐車場 |
- |
バイク置き場 |
- |
駐輪場 |
- |
土地面積 |
- |
接道状況 |
-
|
用途地域 |
商業地域 |
間取り |
- |
建物構造 |
SRC |
建物名・部屋番号 |
ローヤルマンションビル 609 |
リフォーム履歴 |
■水回り:2025年3月 キッチン、トイレ、給湯器 ■内装:2025年3月 内装全面(床・壁・天井・建具)、サッシ ※実施年月は最も古い履歴を表示 |
リノベーション履歴 |
2025年3月 借室内フルリノベーション ※実施年月は最も古い履歴を表示 |
特記事項 |
24時間利用可、土曜日利用可、土日・祝日利用可、角部屋、24時間セキュリティー |
備考 |
賃貸保証等:加入要(賃料の50%~)
管理形態/管理員の勤務形態:-/-
主要採光面:北向き
施設内会議室あり:¥2,000/2時間
靖国通り沿い、フルリフォーム完了!!
ビル内レンタル倉庫あり!!サッシ交換済!!
LEDスポットライト☆彡
|
エネルギー消費性能 |
- |
断熱性能 |
- |
目安光熱費 |
- |
バス・トイレ |
専有部分にトイレあり |
キッチン |
- |
設備・サービス |
個別空調、エアコン2台以上、収納スペース、防犯カメラ、給湯、動力あり、エアコン、火災警報器(報知機)、光ファイバー |
その他 |
エレベーター2基以上、エレベーター |
契約期間 |
2年 |
条件等 |
-
|
引渡可能時期 |
即時 |
現況 |
空 |
仲介手数料 |
不要 |
|
|
更新料 |
新賃料 1ヶ月 |
物件番号 |
6985499599 |
情報公開日 |
2025年3月7日 |
次回更新予定日 |
2025年10月30日 |
ケータイ用バーコード |
- スマートフォンでこの物件を見る
- スマートフォンからもこの物件をご覧になれます。
|
※「-」と表示されている項目については、情報提供会社にご確認ください。
ここから簡単にお問い合わせをすることができます。
(SSLでの暗号化での送信を希望されるお客さまは
こちら
よりお問い合わせください)
お問い合わせを行う前に
「個人情報の取り扱いについて」を必ずお読みください。
「個人情報の取り扱いについて」に同意いただいた場合は「上記にご同意の上 確認画面へ進む」のボタンをクリックしてください。
個人情報の取り扱いについて
皆さまが送付された個人情報はアットホーム(株)のサーバを経由し、お問い合わせ先の不動産会社にメールまたはFAXにて転送されるためアットホーム(株)にも保管されます。アットホーム(株)で保管された個人情報の取り扱いについては、【こちら】をご覧ください。
また、本画面でご記入いただいた個人情報は、お問い合わせ先の不動産会社でも保管します。 お問い合わせ先の不動産会社が保管する個人情報の取り扱いについては、不動産会社に直接お問い合わせください。
東京都知事免許(6)第77129号 |
---|
- 交通:
- 東京メトロ丸ノ内線/新宿御苑前駅 徒歩1分
- 東京都新宿区新宿2丁目6-3 藤和新宿コープ11F
- TEL:
- 03-3350-5001
- FAX:
- 03-3350-6241
- 所属団体:
- (公社)東京都宅地建物取引業協会会員(公社)首都圏不動産公正取引協議会加盟
取引態様:仲介  - 00130636
|
- スマートフォンで
この不動産会社を見る

|
- 提携サイト等より掲載されている物件情報につきましては、不動産会社詳細情報にリンクされていないものがあります。
- 物件に関するお問合せは、物件詳細ページの「情報提供会社」に表示されている不動産会社へ直接お願いいたします。
- 間取図は、現況を優先させていただきます。
- 映像は物件の一部を撮影したものです。物件の契約にあたっての最終判断はご自身の判断に基づいて行ってください。
- 仲介手数料について

アットホームは物件情報の適正化に努めております。
内容に誤りがある場合にはこちらへご連絡ください。