東京都中央区日本橋3丁目(日本橋駅)の貸事務所:物件詳細
交通 所在地 |
駅徒歩 |
賃料 管理費等 |
敷金/保証金 礼金 |
使用部分面積 坪数/坪単価 |
物件種目 築年月 |
|
都営浅草線/日本橋
東京都中央区日本橋3丁目
|
4分
|
136.8675万円
273,735円
|
なし / 10ヶ月
なし
|
274.21m²
82.94坪/1.6501万円
|
貸事務所
1971年12月(築53年11ヶ月)
|
|
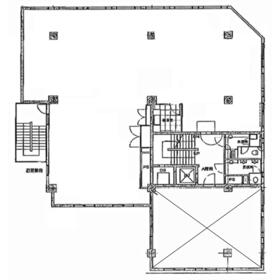
間取図
|
外観
|
<
その他の画像
>
|
|
|
| 交通 | 都営浅草線 日本橋駅 徒歩4分 |
|---|
| その他の交通 | 東京メトロ銀座線 日本橋駅 徒歩5分 東京メトロ東西線 日本橋駅 徒歩5分 |
| 所在地 |
東京都中央区日本橋3丁目
|
| 物件種目 |
貸事務所 |
| 賃料 |
136.8675万円 |
管理費等 |
273,735円 |
| 敷金 / 保証金 |
なし / 10ヶ月 |
礼金 |
なし |
| 敷引 |
- |
坪単価 |
1.6501万円 |
| 保証金償却 |
- |
権利金 |
- |
| 造作譲渡 |
- |
その他一時金 |
- |
| 維持費等 |
- |
保険等 |
要 |
| 使用部分面積 |
274.21m² |
坪数 |
82.94坪 |
| 築年月 |
1971年12月(築53年11ヶ月)
|
階建 / 階 |
地上9階地下1階建 / 4階 |
| 駐車場 |
- |
バイク置き場 |
- |
| 駐輪場 |
- |
土地面積 |
- |
| 接道状況 |
-
|
用途地域 |
- |
| 間取り |
- |
建物構造 |
SRC |
| アピールポイント |
都営浅草線・東京メトロ銀座線・東西線「日本橋」駅から徒歩4~5分という好立地にある「新々会館ビル」4階、ワンフロア約274㎡の広々とした貸事務所です。定期借家契約(1年)で、プロジェクトオフィスや短期利用にも最適。OAフロア仕様でレイアウトの自由度が高く、IT系やベンチャー企業のニーズにも応えられる空間です。個別空調完備により、快適な室内環境を24時間確保可能。共用部には男女別トイレがあり、清潔で使いやすい環境が整っています。24時間セキュリティシステムにより、安心して業務に集中できる点も魅力。周辺には銀行・コンビニ・郵便局などが点在し、ビジネスに必要な生活インフラも充実しています。中央区日本橋という都心エリアで、利便性と快適性を兼ね備えたオフィスをお探しの方は、ぜひご検討ください。 |
| 建物名・部屋番号 |
新々会館ビル 4階 |
| リフォーム履歴 |
- |
| リノベーション履歴 |
- |
| 特記事項 |
OAフロア、24時間セキュリティー |
| 備考 |
賃貸保証等:加入要(月額固定費の1ヶ月分)
管理形態/管理員の勤務形態:-/-
|
| エネルギー消費性能 |
- |
| 断熱性能 |
- |
| 目安光熱費 |
- |
| バス・トイレ |
トイレ2ヶ所、共用部分に男女別トイレあり |
| キッチン |
- |
| 設備・サービス |
個別空調 |
| その他 |
エレベーター |
| 契約期間 |
1年 |
条件等 |
定期借家
|
| 引渡可能時期 |
即時 |
現況 |
空 |
| 更新料 |
なし |
物件番号 |
6985674071 |
| 情報公開日 |
2025年3月22日 |
次回更新予定日 |
2025年11月8日 |
| ケータイ用バーコード |
- スマートフォンでこの物件を見る
- スマートフォンからもこの物件をご覧になれます。
|
※「-」と表示されている項目については、情報提供会社にご確認ください。
| 周辺施設 |
ファミリーマート日本橋三丁目店 |
| 距離 |
162m |
| 周辺施設 |
ゆうちょ銀行本店デイリーヤマザキ日本生命日本橋ビル店内出張所 |
| 距離 |
179m |
ここから簡単にお問い合わせをすることができます。
(SSLでの暗号化での送信を希望されるお客さまは
こちら
よりお問い合わせください)
お問い合わせを行う前に
「個人情報の取り扱いについて」を必ずお読みください。
「個人情報の取り扱いについて」に同意いただいた場合は「上記にご同意の上 確認画面へ進む」のボタンをクリックしてください。
個人情報の取り扱いについて
皆さまが送付された個人情報はアットホーム(株)のサーバを経由し、お問い合わせ先の不動産会社にメールまたはFAXにて転送されるためアットホーム(株)にも保管されます。アットホーム(株)で保管された個人情報の取り扱いについては、【こちら】をご覧ください。
また、本画面でご記入いただいた個人情報は、お問い合わせ先の不動産会社でも保管します。 お問い合わせ先の不動産会社が保管する個人情報の取り扱いについては、不動産会社に直接お問い合わせください。
千葉県知事免許(3)第16513号 |
|---|
- 交通:
- 流鉄流山線/流山駅 徒歩13分 【バス】 停歩1分
- 千葉県流山市加5丁目1700-1
- TEL:
- 04-7197-4519
- FAX:
- 04-7197-4520
- 所属団体:
- (一社)千葉県宅地建物取引業協会会員(公社)首都圏不動産公正取引協議会加盟
取引態様:仲介  - 00109432
|
- スマートフォンで
この不動産会社を見る

|
- 提携サイト等より掲載されている物件情報につきましては、不動産会社詳細情報にリンクされていないものがあります。
- 物件に関するお問合せは、物件詳細ページの「情報提供会社」に表示されている不動産会社へ直接お願いいたします。
- 間取図は、現況を優先させていただきます。
- 映像は物件の一部を撮影したものです。物件の契約にあたっての最終判断はご自身の判断に基づいて行ってください。
- 仲介手数料について

アットホームは物件情報の適正化に努めております。
内容に誤りがある場合にはこちらへご連絡ください。