東京都中央区銀座4丁目(銀座駅)の貸事務所:物件詳細
交通 所在地 |
駅徒歩 |
賃料 管理費等 |
敷金/保証金 礼金 |
使用部分面積 坪数/坪単価 |
物件種目 築年月 |
|
東京メトロ丸ノ内線/銀座
東京都中央区銀座4丁目
|
2分
|
要確認
|
要確認
|
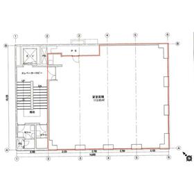
113.95m²
34.46坪/要確認
|
貸事務所
1970年1月(築56年)
|
|
間取図
|
|
その他の画像
|
| 交通 | 東京メトロ丸ノ内線 銀座駅 徒歩2分 |
|---|
| その他の交通 | JR山手線 有楽町駅 徒歩7分 東京メトロ有楽町線 銀座一丁目駅 徒歩9分 |
| 所在地 |
東京都中央区銀座4丁目
|
| 物件種目 |
貸事務所 |
| 賃料 |
要確認 |
管理費等 |
要確認 |
| 敷金 / 保証金 |
要確認 |
礼金 |
要確認 |
| 敷引 |
要確認 |
坪単価 |
要確認 |
| 保証金償却 |
要確認 |
権利金 |
- |
| 造作譲渡 |
- |
その他一時金 |
- |
| 維持費等 |
- |
保険等 |
- |
| 使用部分面積 |
113.95m² |
坪数 |
34.46坪 |
| 築年月 |
1970年1月(築56年)
|
階建 / 階 |
地上7階地下1階建 / 4階 |
| 駐車場 |
- |
バイク置き場 |
- |
| 駐輪場 |
- |
土地面積 |
- |
| 接道状況 |
-
|
用途地域 |
- |
| 間取り |
- |
建物構造 |
SRC |
| アピールポイント |
並木通りに面したオフィスビルです!
一部、店舗利用相談可能! |
| 建物名・部屋番号 |
東京銀座第二朝日ビルディング 4階 |
| リフォーム履歴 |
- |
| リノベーション履歴 |
- |
| 特記事項 |
24時間利用可、土曜日利用可、土日・祝日利用可、整形無柱空間、OAフロア、飲食店不可、1フロア1テナント、角部屋、24時間セキュリティー |
| 備考 |
管理形態/管理員の勤務形態:-/-
※2015年8月耐震補強工事済
※空調2016年更新
※正面玄関:6:00~21:00(日祝閉館)夜間オートロック
※在館テナントの方は24時間出入可能
※床仕様:タイルカーペット
※天井高:2,480㎜
※流し台・LED照明・電気給湯器・室内換気有・ブラインド
※事務所仕様
※室内清掃及び廃棄物処理は貸主指定業者と別途契約
|
| エネルギー消費性能 |
- |
| 断熱性能 |
- |
| 目安光熱費 |
- |
| バス・トイレ |
共用部分に男女別トイレあり |
| キッチン |
- |
| 設備・サービス |
個別空調、エアコン、暖房、冷房、光ファイバー |
| その他 |
- |
| 契約期間 |
3年 |
条件等 |
定期借家
|
| 引渡可能時期 |
即時 |
現況 |
空 |
| 仲介手数料 |
1ヶ月 |
|
|
| 更新料 |
要確認 |
物件番号 |
6985727241 |
| 情報公開日 |
2025年3月26日 |
次回更新予定日 |
2025年12月26日 |
| ケータイ用バーコード |
- スマートフォンでこの物件を見る
- スマートフォンからもこの物件をご覧になれます。
|
※「-」と表示されている項目については、情報提供会社にご確認ください。
ここから簡単にお問い合わせをすることができます。
(SSLでの暗号化での送信を希望されるお客さまは
こちら
よりお問い合わせください)
お問い合わせを行う前に
「個人情報の取り扱いについて」を必ずお読みください。
「個人情報の取り扱いについて」に同意いただいた場合は「上記にご同意の上 確認画面へ進む」のボタンをクリックしてください。
個人情報の取り扱いについて
皆さまが送付された個人情報はアットホーム(株)のサーバを経由し、お問い合わせ先の不動産会社にメールまたはFAXにて転送されるためアットホーム(株)にも保管されます。アットホーム(株)で保管された個人情報の取り扱いについては、【こちら】をご覧ください。
また、本画面でご記入いただいた個人情報は、お問い合わせ先の不動産会社でも保管します。 お問い合わせ先の不動産会社が保管する個人情報の取り扱いについては、不動産会社に直接お問い合わせください。
東京都知事免許(5)第79601号 |
|---|
- 交通:
- 東京メトロ銀座線/京橋駅 徒歩1分
- 東京都中央区銀座1丁目20-17 押谷ビル8階
- TEL:
- 03-3563-7666
- FAX:
- 03-3563-7667
- 所属団体:
- (公社)全日本不動産協会会員(一社)不動産協会会員(公社)首都圏不動産公正取引協議会加盟
取引態様:仲介  - 00013100
|
- スマートフォンで
この不動産会社を見る

|
- 提携サイト等より掲載されている物件情報につきましては、不動産会社詳細情報にリンクされていないものがあります。
- 物件に関するお問合せは、物件詳細ページの「情報提供会社」に表示されている不動産会社へ直接お願いいたします。
- 間取図は、現況を優先させていただきます。
- 映像は物件の一部を撮影したものです。物件の契約にあたっての最終判断はご自身の判断に基づいて行ってください。
- 仲介手数料について

アットホームは物件情報の適正化に努めております。
内容に誤りがある場合にはこちらへご連絡ください。