熊本県熊本市中央区細工町4丁目(祗園橋駅)の貸事務所:物件詳細
交通 所在地 |
駅徒歩 |
賃料 管理費等 |
敷金/保証金 礼金 |
使用部分面積 坪数/坪単価 |
物件種目 築年月 |
|
熊本市電健軍線/祗園橋
熊本県熊本市中央区細工町4丁目
|
2分
|
57.563万円
34,538円
|
6ヶ月 / なし
なし
|
345.37m²
104.47坪/0.551万円
|
貸事務所
1982年12月(築42年11ヶ月)
|
|
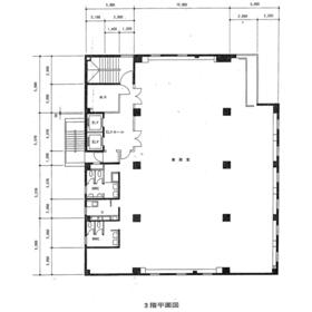
間取図
|
外観
|
<
その他の画像
>
|
| 交通 | 熊本市電健軍線 祗園橋駅 徒歩2分 |
| 所在地 |
熊本県熊本市中央区細工町4丁目
|
| 物件種目 |
貸事務所 |
| 賃料 |
57.563万円 |
管理費等 |
34,538円 |
| 敷金 / 保証金 |
6ヶ月 / なし |
礼金 |
なし |
| 敷引 |
- |
坪単価 |
0.551万円 |
| 保証金償却 |
- |
権利金 |
- |
| 造作譲渡 |
- |
その他一時金 |
- |
| 維持費等 |
- |
保険等 |
- |
| 使用部分面積 |
345.37m² |
坪数 |
104.47坪 |
| 築年月 |
1982年12月(築42年11ヶ月)
|
階建 / 階 |
7階建 / 3階 |
| 駐車場 |
空無 |
バイク置き場 |
- |
| 駐輪場 |
- |
土地面積 |
- |
| 接道状況 |
-
|
用途地域 |
- |
| 間取り |
ワンルーム |
建物構造 |
RC |
| 建物名・部屋番号 |
扇寿(せんじゅ)ビル |
| リフォーム履歴 |
- |
| リノベーション履歴 |
- |
| 特記事項 |
天井高2.5M以上 |
| 備考 |
賃貸保証等:加入要(月額総賃料の100%)
管理形態/管理員の勤務形態:-/-
2階にコンパクトに区分けした事務所もございます。
A号室・・約44坪
B号室・・約56坪
|
| エネルギー消費性能 |
- |
| 断熱性能 |
- |
| 目安光熱費 |
- |
| バス・トイレ |
共用部分に男女別トイレあり |
| キッチン |
- |
| 設備・サービス |
ビルトインエアコン、光ファイバー |
| その他 |
エレベーター2基以上 |
| 契約期間 |
2年 |
条件等 |
-
|
| 引渡可能時期 |
即時 |
現況 |
空 |
| 更新料 |
- |
物件番号 |
6985738492 |
| 情報公開日 |
2025年3月28日 |
次回更新予定日 |
2025年11月4日 |
| ケータイ用バーコード |
- スマートフォンでこの物件を見る
- スマートフォンからもこの物件をご覧になれます。
|
※「-」と表示されている項目については、情報提供会社にご確認ください。
| 周辺施設 |
セブンイレブン熊本細工町店 |
| 距離 |
407m |
ここから簡単にお問い合わせをすることができます。
(SSLでの暗号化での送信を希望されるお客さまは
こちら
よりお問い合わせください)
お問い合わせを行う前に
「個人情報の取り扱いについて」を必ずお読みください。
「個人情報の取り扱いについて」に同意いただいた場合は「上記にご同意の上 確認画面へ進む」のボタンをクリックしてください。
個人情報の取り扱いについて
皆さまが送付された個人情報はアットホーム(株)のサーバを経由し、お問い合わせ先の不動産会社にメールまたはFAXにて転送されるためアットホーム(株)にも保管されます。アットホーム(株)で保管された個人情報の取り扱いについては、【こちら】をご覧ください。
また、本画面でご記入いただいた個人情報は、お問い合わせ先の不動産会社でも保管します。 お問い合わせ先の不動産会社が保管する個人情報の取り扱いについては、不動産会社に直接お問い合わせください。
熊本県知事免許(3)第4963号 |
|---|
- 交通:
- JR豊肥本線/平成駅 徒歩8分 【バス】 南本荘 停歩1分
- 熊本県熊本市中央区本荘町720-1 隈部ビル3F
- TEL:
- 096-373-6111
- FAX:
- 096-373-6006
- 所属団体:
- (公社)熊本県宅地建物取引業協会会員(一社)九州不動産公正取引協議会加盟
取引態様:仲介  - 80501929
|
- スマートフォンで
この不動産会社を見る

|
- 提携サイト等より掲載されている物件情報につきましては、不動産会社詳細情報にリンクされていないものがあります。
- 物件に関するお問合せは、物件詳細ページの「情報提供会社」に表示されている不動産会社へ直接お願いいたします。
- 間取図は、現況を優先させていただきます。
- 映像は物件の一部を撮影したものです。物件の契約にあたっての最終判断はご自身の判断に基づいて行ってください。
- 仲介手数料について

アットホームは物件情報の適正化に努めております。
内容に誤りがある場合にはこちらへご連絡ください。