東京都新宿区西新宿6丁目(西新宿駅)の貸事務所:物件詳細
交通 所在地 |
駅徒歩 |
賃料 管理費等 |
敷金/保証金 礼金 |
使用部分面積 坪数/坪単価 |
物件種目 築年月 |
|
東京メトロ丸ノ内線/西新宿
東京都新宿区西新宿6丁目
|
3分
|
280.038万円
560,076円
|
なし / 10ヶ月
1ヶ月
|
420.79m²
127.28坪/2.2001万円
|
貸事務所
1996年6月(築29年7ヶ月)
|
|
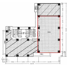
間取図
|
外観
|
<
その他の画像
>
|
| 交通 | 東京メトロ丸ノ内線 西新宿駅 徒歩3分 |
|---|
| その他の交通 | 都営大江戸線 都庁前駅 徒歩4分 JR山手線 新宿駅 徒歩13分 |
| 所在地 |
東京都新宿区西新宿6丁目
|
| 物件種目 |
貸事務所 |
| 賃料 |
280.038万円 |
管理費等 |
560,076円 |
| 敷金 / 保証金 |
なし / 10ヶ月 |
礼金 |
1ヶ月 |
| 敷引 |
- |
坪単価 |
2.2001万円 |
| 保証金償却 |
解約時1ヶ月 |
権利金 |
- |
| 造作譲渡 |
- |
その他一時金 |
- |
| 維持費等 |
- |
保険等 |
- |
| 使用部分面積 |
420.79m² |
坪数 |
127.28坪 |
| 築年月 |
1996年6月(築29年7ヶ月)
|
階建 / 階 |
地上13階地下2階建 / 10階 |
| 駐車場 |
- |
バイク置き場 |
- |
| 駐輪場 |
- |
土地面積 |
- |
| 接道状況 |
-
|
用途地域 |
- |
| 間取り |
- |
建物構造 |
鉄骨造 |
| アピールポイント |
西新宿のハイスペックオフィス!西新宿から徒歩3分の好立地!是非一度ご内見下さい! |
| 建物名・部屋番号 |
パークウエスト 1002~1004 |
| リフォーム履歴 |
- |
| リノベーション履歴 |
- |
| 特記事項 |
24時間利用可、有人警備、OAフロア、24時間セキュリティー、耐震構造(新耐震基準)、天井高2.5M以上 |
| 備考 |
賃貸保証等:利用可(指定保証会社にご加入いただく場合がございます)
管理形態/管理員の勤務形態:-/-
【税率10%算出。税率変動に準ず】
エントランス 月~土7:00~20:00 日祝7:00~19:00
※契約期間は相談になります
|
| エネルギー消費性能 |
- |
| 断熱性能 |
- |
| 目安光熱費 |
- |
| バス・トイレ |
共用部分に男女別トイレあり |
| キッチン |
- |
| 設備・サービス |
個別空調、給湯、エアコン、暖房、冷房、光ファイバー |
| その他 |
エレベーター2基以上、エレベーター |
| 契約期間 |
2年 |
条件等 |
定期借家
|
| 引渡可能時期 |
即時 |
現況 |
空 |
| 仲介手数料 |
1ヶ月 |
|
|
| 更新料 |
新賃料 1ヶ月 |
物件番号 |
6985741835 |
| 情報公開日 |
2025年3月27日 |
次回更新予定日 |
2025年12月16日 |
| ケータイ用バーコード |
- スマートフォンでこの物件を見る
- スマートフォンからもこの物件をご覧になれます。
|
※「-」と表示されている項目については、情報提供会社にご確認ください。
| 周辺施設 |
りそな銀行新都心営業部 |
| 距離 |
1m |
写真を見る |
| 周辺施設 |
セブンイレブンDR西新宿ダイワロイネットホテル店 |
| 距離 |
106m |
写真を見る |
| 周辺施設 |
タリーズコーヒー新宿オークタワー店 |
| 距離 |
44m |
写真を見る |
| 周辺施設 |
スターバックスコーヒー西新宿三井ビル店 |
| 距離 |
319m |
写真を見る |
| 周辺施設 |
なか卯西新宿店 |
| 距離 |
183m |
写真を見る |
| 周辺施設 |
ウエルシア西新宿三井ビル店 |
| 距離 |
140m |
写真を見る |
| 周辺施設 |
新宿アイタウン郵便局 |
| 距離 |
320m |
写真を見る |
ここから簡単にお問い合わせをすることができます。
(SSLでの暗号化での送信を希望されるお客さまは
こちら
よりお問い合わせください)
お問い合わせを行う前に
「個人情報の取り扱いについて」を必ずお読みください。
「個人情報の取り扱いについて」に同意いただいた場合は「上記にご同意の上 確認画面へ進む」のボタンをクリックしてください。
個人情報の取り扱いについて
皆さまが送付された個人情報はアットホーム(株)のサーバを経由し、お問い合わせ先の不動産会社にメールまたはFAXにて転送されるためアットホーム(株)にも保管されます。アットホーム(株)で保管された個人情報の取り扱いについては、【こちら】をご覧ください。
また、本画面でご記入いただいた個人情報は、お問い合わせ先の不動産会社でも保管します。 お問い合わせ先の不動産会社が保管する個人情報の取り扱いについては、不動産会社に直接お問い合わせください。
東京都知事免許(5)第79601号 |
|---|
- 交通:
- JR総武線/新宿駅 徒歩5分
- 東京都渋谷区代々木2丁目13-6 YU-WAビル2階
- TEL:
- 03-5308-4666
- FAX:
- 03-5308-4667
- 所属団体:
- (公社)全日本不動産協会会員(公社)首都圏不動産公正取引協議会加盟
取引態様:仲介  - 00275533
|
- スマートフォンで
この不動産会社を見る

|
- 提携サイト等より掲載されている物件情報につきましては、不動産会社詳細情報にリンクされていないものがあります。
- 物件に関するお問合せは、物件詳細ページの「情報提供会社」に表示されている不動産会社へ直接お願いいたします。
- 間取図は、現況を優先させていただきます。
- 映像は物件の一部を撮影したものです。物件の契約にあたっての最終判断はご自身の判断に基づいて行ってください。
- 仲介手数料について

アットホームは物件情報の適正化に努めております。
内容に誤りがある場合にはこちらへご連絡ください。