東京都千代田区神田司町2丁目(淡路町駅)の貸事務所:物件詳細
交通 所在地 |
駅徒歩 |
賃料 管理費等 |
敷金/保証金 礼金 |
使用部分面積 坪数/坪単価 |
物件種目 築年月 |
東京メトロ丸ノ内線/淡路町
東京都千代田区神田司町2丁目
|
3分
|
189.6246万円
-
|
10ヶ月 / なし
なし
|
316.59m²
95.76坪/1.9801万円
|
貸事務所
1987年7月(築38年4ヶ月)
|
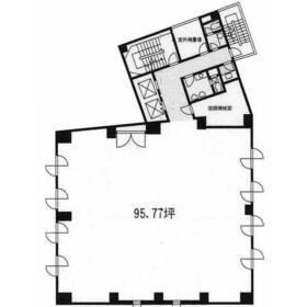
間取図
|
外観
|
<
その他の画像
>
|
交通 | 東京メトロ丸ノ内線 淡路町駅 徒歩3分 |
---|
その他の交通 | 都営新宿線 小川町駅 徒歩3分 東京メトロ銀座線 神田駅 徒歩5分 |
所在地 |
東京都千代田区神田司町2丁目
|
物件種目 |
貸事務所 |
賃料 |
189.6246万円 |
管理費等 |
- |
敷金 / 保証金 |
10ヶ月 / なし |
礼金 |
なし |
敷引 |
- |
坪単価 |
1.9801万円 |
保証金償却 |
解約時1ヶ月 |
権利金 |
- |
造作譲渡 |
- |
その他一時金 |
- |
維持費等 |
警備保障料:25,300円/月 |
保険等 |
- |
使用部分面積 |
316.59m² |
坪数 |
95.76坪 |
築年月 |
1987年7月(築38年4ヶ月)
|
階建 / 階 |
10階建 / 7階 |
駐車場 |
無 |
バイク置き場 |
- |
駐輪場 |
- |
土地面積 |
- |
接道状況 |
-
|
用途地域 |
- |
間取り |
- |
建物構造 |
SRC |
アピールポイント |
公園にも面しているので社員の気分転換にもなります。無柱空間で正方形の貸室でレイアウトしやすいです! |
建物名・部屋番号 |
パークサイド1ビル 7階 |
リフォーム履歴 |
- |
リノベーション履歴 |
- |
特記事項 |
有人警備、整形無柱空間、OAフロア、飲食店不可、24時間セキュリティー、耐震構造(新耐震基準)、IT重説対応物件 |
備考 |
管理形態/管理員の勤務形態:-/-
IT重説対応物件
■清掃料負担別途(プランによって費用がかわります)
|
エネルギー消費性能 |
- |
断熱性能 |
- |
目安光熱費 |
- |
バス・トイレ |
トイレ |
キッチン |
- |
設備・サービス |
個別空調、エアコン2台以上、給湯、暖房、冷房、光ファイバー |
その他 |
エレベーター2基以上 |
契約期間 |
2年 |
条件等 |
-
|
引渡可能時期 |
2025年12月上旬予定 |
現況 |
使用中 |
仲介手数料 |
1ヶ月 |
|
|
更新料 |
なし |
物件番号 |
6985829410 |
情報公開日 |
2025年4月2日 |
次回更新予定日 |
2025年10月27日 |
ケータイ用バーコード |
- スマートフォンでこの物件を見る
- スマートフォンからもこの物件をご覧になれます。
|
※「-」と表示されている項目については、情報提供会社にご確認ください。
周辺施設 |
マルエツプチ神田司町店 |
距離 |
64m |
写真を見る |
周辺施設 |
ファミリーマート神田司町店 |
距離 |
80m |
写真を見る |
周辺施設 |
千代田区立千代田小学校 |
距離 |
96m |
写真を見る |
周辺施設 |
東京東信用金庫神田支店 |
距離 |
160m |
写真を見る |
周辺施設 |
神田さくら館駐車場 |
距離 |
174m |
写真を見る |
周辺施設 |
珈琲館内神田店 |
距離 |
177m |
写真を見る |
周辺施設 |
神田さくら館温水プール |
距離 |
185m |
写真を見る |
周辺施設 |
ウエルシア神田小川町2号店 |
距離 |
259m |
写真を見る |
ここから簡単にお問い合わせをすることができます。
(SSLでの暗号化での送信を希望されるお客さまは
こちら
よりお問い合わせください)
お問い合わせを行う前に
「個人情報の取り扱いについて」を必ずお読みください。
「個人情報の取り扱いについて」に同意いただいた場合は「上記にご同意の上 確認画面へ進む」のボタンをクリックしてください。
個人情報の取り扱いについて
皆さまが送付された個人情報はアットホーム(株)のサーバを経由し、お問い合わせ先の不動産会社にメールまたはFAXにて転送されるためアットホーム(株)にも保管されます。アットホーム(株)で保管された個人情報の取り扱いについては、【こちら】をご覧ください。
また、本画面でご記入いただいた個人情報は、お問い合わせ先の不動産会社でも保管します。 お問い合わせ先の不動産会社が保管する個人情報の取り扱いについては、不動産会社に直接お問い合わせください。
東京都知事免許(5)第79601号 |
---|
- 交通:
- JR中央線/神田駅 徒歩3分
- 東京都千代田区鍛冶町1丁目9-1 第二大久保ビル2階
- TEL:
- 03-5297-5666
- FAX:
- 03-5297-5665
- 所属団体:
- (公社)全日本不動産協会会員(公社)首都圏不動産公正取引協議会加盟
取引態様:仲介  - 00016657
|
- スマートフォンで
この不動産会社を見る

|
- 提携サイト等より掲載されている物件情報につきましては、不動産会社詳細情報にリンクされていないものがあります。
- 物件に関するお問合せは、物件詳細ページの「情報提供会社」に表示されている不動産会社へ直接お願いいたします。
- 間取図は、現況を優先させていただきます。
- 映像は物件の一部を撮影したものです。物件の契約にあたっての最終判断はご自身の判断に基づいて行ってください。
- 仲介手数料について

アットホームは物件情報の適正化に努めております。
内容に誤りがある場合にはこちらへご連絡ください。