不動産 賃貸 マンション等の住宅情報:埼玉住まい情報


鳥取県米子市東町(米子駅)の貸事務所:物件詳細

  • 物件詳細
  • 情報の見方
  • 印刷用画面
交通
所在地
駅徒歩 賃料
管理費等
敷金/保証金
礼金
使用部分面積
坪数/坪単価
物件種目
築年月

境線/米子

鳥取県米子市東町

9分

要確認

要確認

72.07m²

21.80坪/要確認

貸事務所

1984年12月(築40年11ヶ月)

おすすめコメント  スタッフ: 猪川 未来

◆駅前の大通り沿いに面している米子駅から徒歩約7分のオフィスビル◆郵便局やコンビニなどが近隣にあり便利な周辺環境!

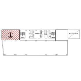
間取図

間取図

外観

外観

<
その他の画像
  • 玄関
  • 共有部分
  • 共有部分
  • 共有部分
  • 共有部分
  • 共有部分
  • 共有部分
  • 室内
  • 室内
  • 室内
  • 洗面
  • トイレ
  • キッチン
  • 駐車場
  • コンビニ
  • コンビニ
  • 郵便局
  • 郵便局
  • 銀行
  • 銀行
>
    • とりあえず保存
    • お問い合わせ
    交通

    境線 米子駅 徒歩9分

    その他の交通

    境線 博労町駅 徒歩15分

    境線 富士見町駅 徒歩16分

    所在地 鳥取県米子市東町
    物件種目 貸事務所
    賃料 要確認 管理費等 要確認
    敷金 / 保証金 要確認 礼金 要確認
    敷引 要確認 坪単価 要確認
    保証金償却 要確認 権利金
    造作譲渡 その他一時金
    維持費等 保険等
    使用部分面積 72.07m² 坪数 21.80坪
    築年月 1984年12月(築40年11ヶ月) 階建 / 階 8階建 / 2階
    駐車場 有 16,500円/月
    敷金6ヶ月
    バイク置き場
    駐輪場 土地面積
    接道状況 用途地域
    間取り 建物構造 SRC
    アピールポイント 米子駅から徒歩約7分、駅前の大通り沿いに面しているオフィスのご紹介です!
    個別空調や光ファイバー等の設備も充実しています。
    郵便局やコンビニなどが近隣にあり便利な周辺環境です!
    米子駅周辺で物件をお探しの方は是非お気軽にお問い合わせください!
    建物名・部屋番号 米子第一生命ビル
    リフォーム履歴
    リノベーション履歴
    特記事項 24時間利用可、土曜日利用可、24時間セキュリティー、天井高2.5M以上
    備考
    管理形態/管理員の勤務形態:-/-
    エネルギー消費性能
    断熱性能
    目安光熱費
    バス・トイレ 共用部分に男女別トイレあり
    キッチン
    設備・サービス 個別空調、エアコン、セントラル、インターネット対応、光ファイバー
    その他 エレベーター2基以上、エレベーター
    契約期間 要確認 条件等
    引渡可能時期 即時 現況
    更新料 要確認 物件番号 6985840766
    情報公開日 2025年4月7日 次回更新予定日 2025年10月28日
    ケータイ用バーコード

    QRコード

    スマートフォンでこの物件を見る
    スマートフォンからもこの物件をご覧になれます。
    ※「-」と表示されている項目については、情報提供会社にご確認ください。

    この物件の周辺情報

    周辺施設 イオン米子駅前店
    距離 625m
    周辺施設 ローソン米子加茂町店
    距離 173m
    周辺施設 ローソン米子明治町店
    距離 264m
    周辺施設 米子元町サンロード郵便局
    距離 318m
    周辺施設 米子加茂町郵便局
    距離 348m
    周辺施設 山陰合同銀行米子東支店
    距離 202m
    周辺施設 山陰合同銀行会見出張所
    距離 202m
    周辺施設 米子市役所
    距離 347m

    クイックお問い合わせ

    ここから簡単にお問い合わせをすることができます。
    (SSLでの暗号化での送信を希望されるお客さまは こちら よりお問い合わせください)

    お問い合わせ内容(必須)
    物件のお問い合わせ理由(必須)
    お名前・ご担当者様名(必須) 姓  名 
    メールアドレス(必須)
    ※携帯電話のメールアドレスをご入力される方はこちらをご確認ください
    電話番号(必須)
    - -

    ※入力いただいた電話番号へSMSまたは音声でパスワードをご連絡します。

    携帯電話の番号をご入力の方へ

    携帯電話の番号をご入力の方へ
    確認画面にて送信ボタンをクリックするとSMSが携帯電話に届きます。
    そのSMSに記載のパスワード(認証番号)を入力し、お問い合わせを完了してください。
    尚、SMSの送信者番号は 0005 202 760 となります。
    これはアットホームの固定番号です。

    備考欄 希望条件、物件案内希望日、質問などがございましたらご記入ください。
    お問い合わせを行う前に「個人情報の取り扱いについて」を必ずお読みください。
    「個人情報の取り扱いについて」に同意いただいた場合は「上記にご同意の上 確認画面へ進む」のボタンをクリックしてください。

    個人情報の取り扱いについて

    皆さまが送付された個人情報はアットホーム(株)のサーバを経由し、お問い合わせ先の不動産会社にメールまたはFAXにて転送されるためアットホーム(株)にも保管されます。アットホーム(株)で保管された個人情報の取り扱いについては、【こちら】をご覧ください。
    また、本画面でご記入いただいた個人情報は、お問い合わせ先の不動産会社でも保管します。 お問い合わせ先の不動産会社が保管する個人情報の取り扱いについては、不動産会社に直接お問い合わせください。

    情報提供会社

    情報提供会社

    (株)クイックコンサルティング 広島支店

    国土交通大臣免許(4)第7938号

    交通:
    広島電鉄本線/紙屋町東駅 徒歩3分
    広島県広島市中区立町2-23 野村不動産広島ビル6F
    TEL:
    082-242-6600
    FAX:
    082-242-6602
    所属団体:
    (公社)全日本不動産協会会員
    中国地区不動産公正取引協議会加盟

    取引態様:仲介

    • 会社情報
    • 50108329
    スマートフォンで
    この不動産会社を見る
    QRコード
    • とりあえず保存
    • お問い合わせ
    • 提携サイト等より掲載されている物件情報につきましては、不動産会社詳細情報にリンクされていないものがあります。
    • 物件に関するお問合せは、物件詳細ページの「情報提供会社」に表示されている不動産会社へ直接お願いいたします。
    • 間取図は、現況を優先させていただきます。
    • 映像は物件の一部を撮影したものです。物件の契約にあたっての最終判断はご自身の判断に基づいて行ってください。
    • 仲介手数料について仲介手数料

    アットホームは物件情報の適正化に努めております。 内容に誤りがある場合にはこちらへご連絡ください。

    【埼玉住まい情報】では、日本全国の物件から賃貸マンションや賃貸アパート・賃貸一戸建て等の賃貸住宅情報、新築マンション・分譲マンションや中古マンション等の売買マンション情報、新築一戸建てや中古一戸建てなどの戸建住宅、 土地など、総合的な不動産住宅情報検索サービスを提供致します。
    【埼玉住まい情報】から、選りすぐりの不動産物件を探してみましょう。

    【免責事項】
    このコーナーの運営はアットホーム株式会社(https://www.athome.co.jp/)が行っています。
    このコーナーに掲載している物件情報は、「アットホーム不動産情報ネットワーク」に加盟する不動産会社等(情報提供元)から提供されています。信頼性の高い情報提供が行えるよう、最大限の努力をしておりますが、その内容を保証するものではありません。 利用者のみなさまと各情報提供元との取引に起因する損害および情報が掲載されたことに起因する損害等については、株式会社イーシティ埼玉、およびアットホームは一切責任を負いません。
    各物件情報の内容や画像等はすべて現況を優先させていただきます。
    お取引等(お取引の準備、資金調達等を含みます)の際には、内容や契約条件等について、各情報提供元より十分な説明を受け、ご自身でご確認の上、判断してください。
    このコーナーへの物件情報のご掲載、その他不動産業務ソリューション等についての不動産会社様のお問合せはこちらからお願いいたします。

    物件画像: