神奈川県横浜市中区山下町(日本大通り駅)の貸事務所:物件詳細
交通 所在地 |
駅徒歩 |
賃料 管理費等 |
敷金/保証金 礼金 |
使用部分面積 坪数/坪単価 |
物件種目 築年月 |
|
横浜高速鉄道みなとみらい線/日本大通り
神奈川県横浜市中区山下町
|
1分
|
240.8978万円
-
|
なし / 10ヶ月
なし
|
556.90m²
168.46坪/1.43万円
|
貸事務所
1987年9月(築38年4ヶ月)
|
|
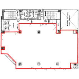
間取図
1フロア+B区画合計168.46坪(各階間取りは同じです)
|
外観
本町通り沿い角地の物件
|
<
その他の画像
>
|
| 交通 | 横浜高速鉄道みなとみらい線 日本大通り駅 徒歩1分 |
|---|
| その他の交通 | JR根岸線 関内駅 徒歩11分 JR京浜東北線 桜木町駅 徒歩17分 |
| 所在地 |
神奈川県横浜市中区山下町
|
| 物件種目 |
貸事務所 |
| 賃料 |
240.8978万円 |
管理費等 |
- |
| 敷金 / 保証金 |
なし / 10ヶ月 |
礼金 |
なし |
| 敷引 |
- |
坪単価 |
1.43万円 |
| 保証金償却 |
- |
権利金 |
- |
| 造作譲渡 |
- |
その他一時金 |
- |
| 維持費等 |
- |
保険等 |
要 借家人賠償特約付火災保険 |
| 使用部分面積 |
556.90m² |
坪数 |
168.46坪 |
| 築年月 |
1987年9月(築38年4ヶ月)
|
階建 / 階 |
地上9階地下1階建 / 5階~6階部分 |
| 駐車場 |
- |
バイク置き場 |
- |
| 駐輪場 |
- |
土地面積 |
- |
| 接道状況 |
-
|
用途地域 |
- |
| 間取り |
- |
建物構造 |
SRC |
| アピールポイント |
関内エリアのメインストリート「本町通り」沿いの角地ビル!周辺には裁判所や市役所、県庁等の官公庁及び金融機関が集積。歴史的建造物も点在する横浜で最も伝統あるビジネス街!貸室分割相談可、複数フロア募集中!50坪~250坪まで希望面積に合わせたご提案が可能です!機械式駐車場に複数台空き有!(別途駐車場契約が必要)室内・共用部リニューアル済!1~3階三井住友銀行オープンが入居! |
| 建物名・部屋番号 |
Yokohama Bayside Building 5階~6階602号室 |
| リフォーム履歴 |
■水回り:2024年7月 トイレ 2024年9月末にトイレ、給湯室リニューアル済 ■内装:2024年3月 内装全面(床・壁・天井・建具) ※実施年月は最も古い履歴を表示 |
| リノベーション履歴 |
2024年7月 空調、OAフロア、LED照明、1階エントランスリニューアル済 ※実施年月は最も古い履歴を表示 |
| 特記事項 |
OAフロア、飲食店不可、駐車場3台分以上、24時間セキュリティー、耐震構造(新耐震基準)、天井高2.5M以上 |
| 備考 |
賃貸保証等:利用可(契約時:月額固定費の100%、更新時:1万円/年(加入する保証会社により料金は異なります))
管理形態/管理員の勤務形態:-/-
・館内喫煙所有
・機械式駐車場有(別途契約)
・分割相談可能
・OAフロア、空調、LED照明、トイレリニューアル済(2024年7月完工)
・給湯室、エントランスリニューアル(2024年9月完工)
・1~3階三井住友銀行
・周辺に裁判所や区役所、県庁等の官公庁が集積したエリア
|
| エネルギー消費性能 |
- |
| 断熱性能 |
- |
| 目安光熱費 |
- |
| バス・トイレ |
共用部分に男女別トイレあり |
| キッチン |
- |
| 設備・サービス |
個別空調、エアコン2台以上、オートロック |
| その他 |
施設内喫煙所、エレベーター2基以上 |
| 契約期間 |
2年 |
条件等 |
-
|
| 引渡可能時期 |
即時 |
現況 |
空 |
| 仲介手数料 |
1ヶ月 |
|
|
| 更新料 |
なし |
物件番号 |
6985901285 |
| 情報公開日 |
2025年4月11日 |
次回更新予定日 |
2025年12月29日 |
| ケータイ用バーコード |
- スマートフォンでこの物件を見る
- スマートフォンからもこの物件をご覧になれます。
|
※「-」と表示されている項目については、情報提供会社にご確認ください。
| 周辺施設 |
独立行政法人地域医療機能推進機構横浜中央病院 |
| 距離 |
661m |
ここから簡単にお問い合わせをすることができます。
(SSLでの暗号化での送信を希望されるお客さまは
こちら
よりお問い合わせください)
お問い合わせを行う前に
「個人情報の取り扱いについて」を必ずお読みください。
「個人情報の取り扱いについて」に同意いただいた場合は「上記にご同意の上 確認画面へ進む」のボタンをクリックしてください。
個人情報の取り扱いについて
皆さまが送付された個人情報はアットホーム(株)のサーバを経由し、お問い合わせ先の不動産会社にメールまたはFAXにて転送されるためアットホーム(株)にも保管されます。アットホーム(株)で保管された個人情報の取り扱いについては、【こちら】をご覧ください。
また、本画面でご記入いただいた個人情報は、お問い合わせ先の不動産会社でも保管します。 お問い合わせ先の不動産会社が保管する個人情報の取り扱いについては、不動産会社に直接お問い合わせください。
スターツファシリティーサービス(株)東京都知事免許(2)第100929号 |
|---|
- 交通:
- 東京メトロ銀座線/日本橋駅 徒歩1分
- 東京都中央区日本橋3丁目1-8 スターツ日本橋ビル7階
- TEL:
- 03-3241-1390
- FAX:
- 03-3241-2442
取引態様:仲介 |
- 提携サイト等より掲載されている物件情報につきましては、不動産会社詳細情報にリンクされていないものがあります。
- 物件に関するお問合せは、物件詳細ページの「情報提供会社」に表示されている不動産会社へ直接お願いいたします。
- 間取図は、現況を優先させていただきます。
- 映像は物件の一部を撮影したものです。物件の契約にあたっての最終判断はご自身の判断に基づいて行ってください。
- 仲介手数料について

アットホームは物件情報の適正化に努めております。
内容に誤りがある場合にはこちらへご連絡ください。