東京都港区新橋4丁目(新橋駅)の貸事務所:物件詳細
交通 所在地 |
駅徒歩 |
賃料 管理費等 |
敷金/保証金 礼金 |
使用部分面積 坪数/坪単価 |
物件種目 築年月 |
|
都営浅草線/新橋
東京都港区新橋4丁目
|
5分
|
21.02万円
56,595円
|
なし / 10ヶ月
なし
|
48.59m²
14.69坪/1.4301万円
|
貸事務所
1972年8月(築53年5ヶ月)
|
|
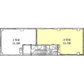
間取図
|
外観
|
<
その他の画像
>
|
| 交通 | 都営浅草線 新橋駅 徒歩5分 |
|---|
| その他の交通 | JR山手線 新橋駅 徒歩7分 JR京浜東北線 新橋駅 徒歩7分 |
| 所在地 |
東京都港区新橋4丁目
|
| 物件種目 |
貸事務所 |
| 賃料 |
21.02万円 |
管理費等 |
56,595円 |
| 敷金 / 保証金 |
なし / 10ヶ月 |
礼金 |
なし |
| 敷引 |
- |
坪単価 |
1.4301万円 |
| 保証金償却 |
解約時2ヶ月 |
権利金 |
- |
| 造作譲渡 |
- |
その他一時金 |
- |
| 維持費等 |
水道代:5,500円/月 |
保険等 |
要 |
| 使用部分面積 |
48.59m² |
坪数 |
14.69坪 |
| 築年月 |
1972年8月(築53年5ヶ月)
|
階建 / 階 |
6階建 / 5階 |
| 駐車場 |
- |
バイク置き場 |
- |
| 駐輪場 |
- |
土地面積 |
- |
| 接道状況 |
-
|
用途地域 |
- |
| 間取り |
- |
建物構造 |
鉄骨造 |
| アピールポイント |
明るい外観で周囲のビルの中でも際立ったオフィスビルです! |
| 建物名・部屋番号 |
502 |
| リフォーム履歴 |
- |
| リノベーション履歴 |
- |
| 特記事項 |
24時間利用可、24時間セキュリティー |
| 備考 |
賃貸保証等:加入要(別途)
管理形態/管理員の勤務形態:-/-
明るい外観で周囲のビルの中でも際立ったオフィスビルです!
|
| エネルギー消費性能 |
- |
| 断熱性能 |
- |
| 目安光熱費 |
- |
| バス・トイレ |
共用部分に男女別トイレあり |
| キッチン |
- |
| 設備・サービス |
個別空調、エアコン、暖房、冷房、光ファイバー |
| その他 |
エレベーター |
| 契約期間 |
2年 |
条件等 |
-
|
| 引渡可能時期 |
即時 |
現況 |
空 |
| 仲介手数料 |
1ヶ月 |
|
|
| 更新料 |
新賃料 1ヶ月 |
物件番号 |
6985925137 |
| 情報公開日 |
2025年4月10日 |
次回更新予定日 |
2025年12月19日 |
| ケータイ用バーコード |
- スマートフォンでこの物件を見る
- スマートフォンからもこの物件をご覧になれます。
|
※「-」と表示されている項目については、情報提供会社にご確認ください。
| 周辺施設 |
新橋ピアザビルパーキングタワー |
| 距離 |
92m |
写真を見る |
| 周辺施設 |
エネオスDr.Drive新橋SS |
| 距離 |
94m |
写真を見る |
| 周辺施設 |
カフェ・ベローチェ新橋四丁目店 |
| 距離 |
222m |
写真を見る |
| 周辺施設 |
ほっともっと新橋柳通り店 |
| 距離 |
118m |
写真を見る |
| 周辺施設 |
セブンイレブン新橋第一京浜店 |
| 距離 |
92m |
写真を見る |
| 周辺施設 |
喫茶室ルノアール新橋烏森口店 |
| 距離 |
229m |
写真を見る |
| 周辺施設 |
ローソン新橋四丁目店 |
| 距離 |
233m |
写真を見る |
| 周辺施設 |
ファミリーマート新橋桜田公園前店 |
| 距離 |
247m |
写真を見る |
ここから簡単にお問い合わせをすることができます。
(SSLでの暗号化での送信を希望されるお客さまは
こちら
よりお問い合わせください)
お問い合わせを行う前に
「個人情報の取り扱いについて」を必ずお読みください。
「個人情報の取り扱いについて」に同意いただいた場合は「上記にご同意の上 確認画面へ進む」のボタンをクリックしてください。
個人情報の取り扱いについて
皆さまが送付された個人情報はアットホーム(株)のサーバを経由し、お問い合わせ先の不動産会社にメールまたはFAXにて転送されるためアットホーム(株)にも保管されます。アットホーム(株)で保管された個人情報の取り扱いについては、【こちら】をご覧ください。
また、本画面でご記入いただいた個人情報は、お問い合わせ先の不動産会社でも保管します。 お問い合わせ先の不動産会社が保管する個人情報の取り扱いについては、不動産会社に直接お問い合わせください。
東京都知事免許(5)第79601号 |
|---|
- 交通:
- 都営浅草線/大門駅 徒歩1分
- 東京都港区芝大門1丁目15-7 芝大門ABC館ビル7F
- TEL:
- 03-3434-9666
- FAX:
- 03-3434-9665
- 所属団体:
- (公社)全日本不動産協会会員(一社)不動産協会会員(公社)首都圏不動産公正取引協議会加盟
取引態様:仲介  - 00160639
|
- スマートフォンで
この不動産会社を見る

|
- 提携サイト等より掲載されている物件情報につきましては、不動産会社詳細情報にリンクされていないものがあります。
- 物件に関するお問合せは、物件詳細ページの「情報提供会社」に表示されている不動産会社へ直接お願いいたします。
- 間取図は、現況を優先させていただきます。
- 映像は物件の一部を撮影したものです。物件の契約にあたっての最終判断はご自身の判断に基づいて行ってください。
- 仲介手数料について

アットホームは物件情報の適正化に努めております。
内容に誤りがある場合にはこちらへご連絡ください。