福岡県福岡市中央区大名2丁目(赤坂駅)の貸事務所:物件詳細
交通 所在地 |
駅徒歩 |
賃料 管理費等 |
敷金/保証金 礼金 |
使用部分面積 坪数/坪単価 |
物件種目 築年月 |
|
地下鉄空港線/赤坂
福岡県福岡市中央区大名2丁目
|
1分
|
74.2572万円
140,486円
|
12ヶ月 / なし
なし
|
120.63m²
36.49坪/2.035万円
|
貸事務所
2024年1月(築1年10ヶ月)
|
|
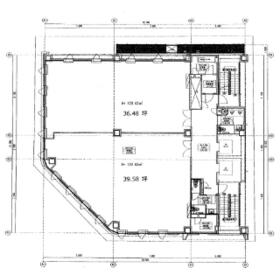
間取図
|
|
<
その他の画像
>
|
| 交通 | 地下鉄空港線 赤坂駅 徒歩1分 |
|---|
| その他の交通 | 地下鉄空港線 天神駅 徒歩11分 西鉄天神大牟田線 西鉄福岡(天神)駅 徒歩14分 |
| 所在地 |
福岡県福岡市中央区大名2丁目
|
| 物件種目 |
貸事務所 |
| 賃料 |
74.2572万円 |
管理費等 |
140,486円 |
| 敷金 / 保証金 |
12ヶ月 / なし |
礼金 |
なし |
| 敷引 |
- |
坪単価 |
2.035万円 |
| 保証金償却 |
- |
権利金 |
- |
| 造作譲渡 |
- |
その他一時金 |
- |
| 維持費等 |
- |
保険等 |
要 |
| 使用部分面積 |
120.63m² |
坪数 |
36.49坪 |
| 築年月 |
2024年1月(築1年10ヶ月)
|
階建 / 階 |
9階建 / 2階 |
| 駐車場 |
有 25,000円/月 25,000円(税別)、敷金2ヶ月、立体駐車場 |
バイク置き場 |
- |
| 駐輪場 |
有 |
土地面積 |
- |
| 接道状況 |
-
|
用途地域 |
商業地域 |
| 間取り |
- |
建物構造 |
鉄骨造 |
| アピールポイント |
赤坂交差点角地!赤坂駅3番出口すぐ |
| 建物名・部屋番号 |
赤坂セントラルビル 2F |
| リフォーム履歴 |
- |
| リノベーション履歴 |
- |
| 特記事項 |
土曜日利用可、土日・祝日利用可、OAフロア、24時間セキュリティー |
| 備考 |
管理形態/管理員の勤務形態:-/-
24時間換気センサー付き自動空調システム、タッチレスエレベーター、Low-E複層ガラス
・3階 76.06坪(251.44㎡)
・4階 76.06坪(251.44㎡)
・5階 76.06坪(251.44㎡)
・6階 76.06坪(251.44㎡)
・7階 76.06坪(251.44㎡)
・9階 29.18坪(96.46㎡)
25.69坪(84.93㎡)
21.18坪(70.02㎡)
◆賃料:18,500円/坪 共益費:3,500円/坪 消費税別途
◆3F~7Fは2分割可能(124.28㎡124.16㎡)
|
| エネルギー消費性能 |
- |
| 断熱性能 |
- |
| 目安光熱費 |
- |
| バス・トイレ |
共用部分に男女別トイレあり |
| キッチン |
- |
| 設備・サービス |
個別空調、暖房、冷房、Low-E ガラス |
| その他 |
エレベーター2基以上、エレベーター |
| 契約期間 |
2年 |
条件等 |
-
|
| 引渡可能時期 |
即時 |
現況 |
空 |
| 更新料 |
- |
物件番号 |
6986096963 |
| 情報公開日 |
2025年8月1日 |
次回更新予定日 |
2025年10月24日 |
| ケータイ用バーコード |
- スマートフォンでこの物件を見る
- スマートフォンからもこの物件をご覧になれます。
|
※「-」と表示されている項目については、情報提供会社にご確認ください。
| 周辺施設 |
レガネットキュート赤坂門店 |
| 距離 |
92m |
| 周辺施設 |
西日本シティ銀行赤坂門支店 |
| 距離 |
164m |
ここから簡単にお問い合わせをすることができます。
(SSLでの暗号化での送信を希望されるお客さまは
こちら
よりお問い合わせください)
お問い合わせを行う前に
「個人情報の取り扱いについて」を必ずお読みください。
「個人情報の取り扱いについて」に同意いただいた場合は「上記にご同意の上 確認画面へ進む」のボタンをクリックしてください。
個人情報の取り扱いについて
皆さまが送付された個人情報はアットホーム(株)のサーバを経由し、お問い合わせ先の不動産会社にメールまたはFAXにて転送されるためアットホーム(株)にも保管されます。アットホーム(株)で保管された個人情報の取り扱いについては、【こちら】をご覧ください。
また、本画面でご記入いただいた個人情報は、お問い合わせ先の不動産会社でも保管します。 お問い合わせ先の不動産会社が保管する個人情報の取り扱いについては、不動産会社に直接お問い合わせください。
福岡県知事免許(3)第17150号 |
|---|
- 交通:
- 地下鉄七隈線/六本松駅 徒歩3分
- 福岡県福岡市中央区草香江1丁目4-65
- TEL:
- 092-725-1278
- FAX:
- 092-725-1279
- 所属団体:
- (公社)福岡県宅地建物取引業協会会員(一社)九州不動産公正取引協議会加盟
取引態様:仲介  - 80005406
|
- スマートフォンで
この不動産会社を見る

|
- 提携サイト等より掲載されている物件情報につきましては、不動産会社詳細情報にリンクされていないものがあります。
- 物件に関するお問合せは、物件詳細ページの「情報提供会社」に表示されている不動産会社へ直接お願いいたします。
- 間取図は、現況を優先させていただきます。
- 映像は物件の一部を撮影したものです。物件の契約にあたっての最終判断はご自身の判断に基づいて行ってください。
- 仲介手数料について

アットホームは物件情報の適正化に努めております。
内容に誤りがある場合にはこちらへご連絡ください。