不動産 賃貸 マンション等の住宅情報:埼玉住まい情報


東京都港区芝4丁目(三田駅)の貸事務所:物件詳細

  • 物件詳細
  • 情報の見方
  • 印刷用画面
交通
所在地
駅徒歩 賃料
管理費等
敷金/保証金
礼金
使用部分面積
坪数/坪単価
物件種目
築年月

都営三田線/三田 新着

東京都港区芝4丁目

5分

21.78万円

6ヶ月 / なし

なし

59.50m²

17.99坪/1.2101万円

貸事務所

1984年6月(築41年10ヶ月)

おすすめコメント  スタッフ: 米田 匠吾

三田駅から徒歩5分。第一京浜沿いにあるビルで、複数路線利用可能な好立地です。業種等是非ご相談下さい。

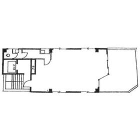
間取図

間取図

外観

外観

  • とりあえず保存
  • お問い合わせ
交通

都営三田線 三田駅 徒歩5分

その他の交通

JR山手線 田町駅 徒歩7分

都営三田線 芝公園駅 徒歩7分

所在地 東京都港区芝4丁目
物件種目 貸事務所
賃料 21.78万円 管理費等
敷金 / 保証金 6ヶ月 / なし 礼金 なし
敷引 坪単価 1.2101万円
保証金償却 解約時2ヶ月 権利金
造作譲渡 その他一時金
維持費等 保険等
使用部分面積 59.50m² 坪数 17.99坪
築年月 1984年6月(築41年10ヶ月) 階建 / 階 6階建 / 5階
駐車場 バイク置き場
駐輪場 土地面積
接道状況 用途地域
間取り 建物構造 鉄骨造
アピールポイント 当日のご案内も可能ですので、お気軽にお問合せ下さい!
建物名・部屋番号 尾家ビル 5階
リフォーム履歴
リノベーション履歴
特記事項 24時間利用可、土曜日利用可、土日・祝日利用可
備考
賃貸保証等:利用可(月額固定費の1ヶ月分)
管理形態/管理員の勤務形態:-/-
エネルギー消費性能
断熱性能
目安光熱費
バス・トイレ 専有部分にトイレあり
キッチン
設備・サービス 個別空調、暖房、冷房
その他 エレベーター
契約期間 2年 条件等
引渡可能時期 即時 現況
仲介手数料 1ヶ月    
更新料 新賃料 1ヶ月 物件番号 6986172760
情報公開日 2026年3月10日 次回更新予定日 2026年3月24日
ケータイ用バーコード

QRコード

スマートフォンでこの物件を見る
スマートフォンからもこの物件をご覧になれます。
※「-」と表示されている項目については、情報提供会社にご確認ください。

この物件の周辺情報

周辺施設 セブンイレブン港区芝4丁目店
距離 26m
周辺施設 すき家芝四丁目店
距離 23m
周辺施設 まいばすけっと芝4丁目店
距離 224m
周辺施設 なか卯芝浦店
距離 471m
周辺施設 芝一郵便局
距離 264m
周辺施設 さわやか信用金庫東京港支店
距離 91m
周辺施設 りそな銀行田町支店
距離 316m
周辺施設 金杉濱町緑地
距離 289m

クイックお問い合わせ

ここから簡単にお問い合わせをすることができます。
(SSLでの暗号化での送信を希望されるお客さまは こちら よりお問い合わせください)

お問い合わせ内容(必須)
物件のお問い合わせ理由(必須)
お名前・ご担当者様名(必須) 姓  名 
メールアドレス(必須)
※携帯電話のメールアドレスをご入力される方はこちらをご確認ください
電話番号(必須)
- -

※入力いただいた電話番号へSMSまたは音声でパスワードをご連絡します。

携帯電話の番号をご入力の方へ

携帯電話の番号をご入力の方へ
確認画面にて送信ボタンをクリックするとSMSが携帯電話に届きます。
そのSMSに記載のパスワード(認証番号)を入力し、お問い合わせを完了してください。
尚、SMSの送信者番号は 0005 202 760 となります。
これはアットホームの固定番号です。

備考欄 希望条件、物件案内希望日、質問などがございましたらご記入ください。
お問い合わせを行う前に「個人情報の取り扱いについて」を必ずお読みください。
「個人情報の取り扱いについて」に同意いただいた場合は「上記にご同意の上 確認画面へ進む」のボタンをクリックしてください。

個人情報の取り扱いについて

皆さまが送付された個人情報はアットホーム(株)のサーバを経由し、お問い合わせ先の不動産会社にメールまたはFAXにて転送されるためアットホーム(株)にも保管されます。アットホーム(株)で保管された個人情報の取り扱いについては、【こちら】をご覧ください。
また、本画面でご記入いただいた個人情報は、お問い合わせ先の不動産会社でも保管します。 お問い合わせ先の不動産会社が保管する個人情報の取り扱いについては、不動産会社に直接お問い合わせください。

情報提供会社

情報提供会社

(株)ライトハウス オフィスリーシング事業部

東京都知事免許(1)第106093号

交通:
JR山手線/神田駅 徒歩3分
東京都千代田区神田須田町1丁目26 ラシーヌ神田ビル6階
TEL:
03-6262-9750
FAX:
03-6262-9751
所属団体:
(公社)全日本不動産協会会員
(公社)首都圏不動産公正取引協議会加盟

取引態様:仲介

  • 会社情報
  • 00276094
スマートフォンで
この不動産会社を見る
QRコード
  • とりあえず保存
  • お問い合わせ
  • 提携サイト等より掲載されている物件情報につきましては、不動産会社詳細情報にリンクされていないものがあります。
  • 物件に関するお問合せは、物件詳細ページの「情報提供会社」に表示されている不動産会社へ直接お願いいたします。
  • 間取図は、現況を優先させていただきます。
  • 映像は物件の一部を撮影したものです。物件の契約にあたっての最終判断はご自身の判断に基づいて行ってください。
  • 仲介手数料について仲介手数料

アットホームは物件情報の適正化に努めております。 内容に誤りがある場合にはこちらへご連絡ください。

【埼玉住まい情報】では、日本全国の物件から賃貸マンションや賃貸アパート・賃貸一戸建て等の賃貸住宅情報、新築マンション・分譲マンションや中古マンション等の売買マンション情報、新築一戸建てや中古一戸建てなどの戸建住宅、 土地など、総合的な不動産住宅情報検索サービスを提供致します。
【埼玉住まい情報】から、選りすぐりの不動産物件を探してみましょう。

【免責事項】
このコーナーの運営はアットホーム株式会社(https://www.athome.co.jp/)が行っています。
このコーナーに掲載している物件情報は、「アットホーム不動産情報ネットワーク」に加盟する不動産会社等(情報提供元)から提供されています。信頼性の高い情報提供が行えるよう、最大限の努力をしておりますが、その内容を保証するものではありません。 利用者のみなさまと各情報提供元との取引に起因する損害および情報が掲載されたことに起因する損害等については、株式会社イーシティ埼玉、およびアットホームは一切責任を負いません。
各物件情報の内容や画像等はすべて現況を優先させていただきます。
お取引等(お取引の準備、資金調達等を含みます)の際には、内容や契約条件等について、各情報提供元より十分な説明を受け、ご自身でご確認の上、判断してください。
このコーナーへの物件情報のご掲載、その他不動産業務ソリューション等についての不動産会社様のお問合せはこちらからお願いいたします。

物件画像: