東京都港区赤坂3丁目(赤坂見附駅)の貸事務所:物件詳細
交通 所在地 |
駅徒歩 |
賃料 管理費等 |
敷金/保証金 礼金 |
使用部分面積 坪数/坪単価 |
物件種目 築年月 |
|
東京メトロ銀座線/赤坂見附
東京都港区赤坂3丁目
|
3分
|
71.28万円
79,700円
|
なし / 6ヶ月
1ヶ月
|
119.00m²
35.99坪/1.9802万円
|
貸事務所
1990年5月(築35年8ヶ月)
|
|
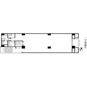
間取図
|
外観
|
<
その他の画像
>
|
| 交通 | 東京メトロ銀座線 赤坂見附駅 徒歩3分 |
|---|
| その他の交通 | 東京メトロ千代田線 赤坂駅 徒歩6分 東京メトロ半蔵門線 永田町駅 徒歩7分 |
| 所在地 |
東京都港区赤坂3丁目
|
| 物件種目 |
貸事務所 |
| 賃料 |
71.28万円 |
管理費等 |
79,700円 |
| 敷金 / 保証金 |
なし / 6ヶ月 |
礼金 |
1ヶ月 |
| 敷引 |
- |
坪単価 |
1.9802万円 |
| 保証金償却 |
解約時1ヶ月 |
権利金 |
- |
| 造作譲渡 |
- |
その他一時金 |
- |
| 維持費等 |
- |
保険等 |
- |
| 使用部分面積 |
119.00m² |
坪数 |
35.99坪 |
| 築年月 |
1990年5月(築35年8ヶ月)
|
階建 / 階 |
7階建 / 2階 |
| 駐車場 |
無 |
バイク置き場 |
無 |
| 駐輪場 |
無 |
土地面積 |
- |
| 接道状況 |
-
|
用途地域 |
- |
| 間取り |
- |
建物構造 |
SRC |
| アピールポイント |
☆複数路線利用可能な便利なオフィス環境《飲食店不可・医療関係クリニック等店舗営業不可》
☆一ツ木通り沿いの建物!近隣にコンビニ・飲食店多数♪ |
| 建物名・部屋番号 |
陶香堂ビル 地上2階 |
| リフォーム履歴 |
- |
| リノベーション履歴 |
- |
| 特記事項 |
24時間利用可、土曜日利用可、土日・祝日利用可、飲食店不可 |
| 備考 |
賃貸保証等:加入要(フォーシーズ株式会社)
管理形態/管理員の勤務形態:-/-
◎飲食店不可・医療関係クリニック等店舗営業不可
※保証会社:加入必須(フォーシーズ)
※火災保険:貸主指定保険加入必須
・再契約可 再契約料:新賃料の1ヵ月分
・ゴミ処理費用:月額7,700円(税込)
|
| エネルギー消費性能 |
- |
| 断熱性能 |
- |
| 目安光熱費 |
- |
| バス・トイレ |
専有部分に男女別トイレあり |
| キッチン |
- |
| 設備・サービス |
個別空調、エアコン |
| その他 |
エレベーター |
| 契約期間 |
2年 |
条件等 |
定期借家
|
| 引渡可能時期 |
即時 |
現況 |
空 |
| 仲介手数料 |
1ヶ月 |
|
|
| 更新料 |
- |
物件番号 |
6986574469 |
| 情報公開日 |
2025年12月22日 |
次回更新予定日 |
2026年1月9日 |
| ケータイ用バーコード |
- スマートフォンでこの物件を見る
- スマートフォンからもこの物件をご覧になれます。
|
※「-」と表示されている項目については、情報提供会社にご確認ください。
| 周辺施設 |
エクセルシオールカフェthe b赤坂見附店 |
| 距離 |
63m |
写真を見る |
| 周辺施設 |
赤坂一ツ木通郵便局 |
| 距離 |
49m |
写真を見る |
| 周辺施設 |
みずほ銀行赤坂支店 |
| 距離 |
88m |
写真を見る |
| 周辺施設 |
デイリーヤマザキ赤坂見附店 |
| 距離 |
99m |
写真を見る |
| 周辺施設 |
銀だこハイボール酒場赤坂見附店 |
| 距離 |
101m |
写真を見る |
| 周辺施設 |
スギ薬局赤坂見附店 |
| 距離 |
116m |
写真を見る |
| 周辺施設 |
スターバックスコーヒー赤坂見附店 |
| 距離 |
117m |
写真を見る |
| 周辺施設 |
自遊空間赤坂見附駅前店 |
| 距離 |
138m |
写真を見る |
ここから簡単にお問い合わせをすることができます。
(SSLでの暗号化での送信を希望されるお客さまは
こちら
よりお問い合わせください)
お問い合わせを行う前に
「個人情報の取り扱いについて」を必ずお読みください。
「個人情報の取り扱いについて」に同意いただいた場合は「上記にご同意の上 確認画面へ進む」のボタンをクリックしてください。
個人情報の取り扱いについて
皆さまが送付された個人情報はアットホーム(株)のサーバを経由し、お問い合わせ先の不動産会社にメールまたはFAXにて転送されるためアットホーム(株)にも保管されます。アットホーム(株)で保管された個人情報の取り扱いについては、【こちら】をご覧ください。
また、本画面でご記入いただいた個人情報は、お問い合わせ先の不動産会社でも保管します。 お問い合わせ先の不動産会社が保管する個人情報の取り扱いについては、不動産会社に直接お問い合わせください。
東京都知事免許(12)第36339号 |
|---|
- 交通:
- 東京メトロ銀座線/赤坂見附駅 徒歩2分
- 東京都港区赤坂3丁目21-11 西脇ビル
- TEL:
- 03-3585-3411
- FAX:
- 03-3589-0189
- 所属団体:
- (公社)東京都宅地建物取引業協会会員(公社)首都圏不動産公正取引協議会加盟
取引態様:仲介  - 00520640
|
- スマートフォンで
この不動産会社を見る

|
- 提携サイト等より掲載されている物件情報につきましては、不動産会社詳細情報にリンクされていないものがあります。
- 物件に関するお問合せは、物件詳細ページの「情報提供会社」に表示されている不動産会社へ直接お願いいたします。
- 間取図は、現況を優先させていただきます。
- 映像は物件の一部を撮影したものです。物件の契約にあたっての最終判断はご自身の判断に基づいて行ってください。
- 仲介手数料について

アットホームは物件情報の適正化に努めております。
内容に誤りがある場合にはこちらへご連絡ください。