東京都港区港南5丁目(品川駅)の貸事務所:物件詳細
交通 所在地 |
駅徒歩 |
賃料 管理費等 |
敷金/保証金 礼金 |
使用部分面積 坪数/坪単価 |
物件種目 築年月 |
JR山手線/品川 [バス利用可] バス 10分 東京入国管理局前 停歩1分
東京都港区港南5丁目
|
31分
|
15.4万円
22,000円
|
10ヶ月 / なし
なし
|
66.11m²
19.99坪/0.7701万円
|
貸事務所
1969年7月(築56年4ヶ月)
|
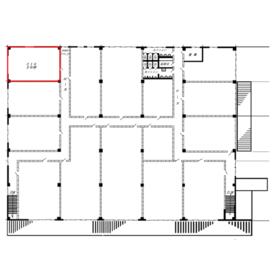
間取図
|
|
<
その他の画像
>
|
交通 | JR山手線 品川駅 徒歩31分 [バス利用可] バス 10分 東京入国管理局前 停歩1分 |
---|
その他の交通 | 東京モノレール 天王洲アイル駅 徒歩15分 |
所在地 |
東京都港区港南5丁目
|
物件種目 |
貸事務所 |
賃料 |
15.4万円 |
管理費等 |
22,000円 |
敷金 / 保証金 |
10ヶ月 / なし |
礼金 |
なし |
敷引 |
- |
坪単価 |
0.7701万円 |
保証金償却 |
- |
権利金 |
- |
造作譲渡 |
- |
その他一時金 |
- |
維持費等 |
- |
保険等 |
要 |
使用部分面積 |
66.11m² |
坪数 |
19.99坪 |
築年月 |
1969年7月(築56年4ヶ月)
|
階建 / 階 |
2階建 / 2階 |
駐車場 |
無 |
バイク置き場 |
無 |
駐輪場 |
無 |
土地面積 |
- |
接道状況 |
-
|
用途地域 |
- |
間取り |
- |
建物構造 |
鉄骨造 |
アピールポイント |
事業主様の探し物だからこそ、同じ事業主目線でご案内。
弊社はテナント、貸店舗、社宅(寮)の不動産仲介を
はじめとし、ファイナンス関する様々なご相談も承ります。
個人事業主、中小企業様の最善を尽くす、btob専門の総合企業です。 |
建物名・部屋番号 |
松岡品川埠頭ビル 210 |
リフォーム履歴 |
- |
リノベーション履歴 |
- |
特記事項 |
24時間利用可、土曜日利用可、土日・祝日利用可、飲食店不可、角部屋、都道府県道沿いに面する |
備考 |
賃貸保証等:加入要(初回、総賃料の1か月。1年毎に総賃料の10%~要)
管理形態/管理員の勤務形態:-/-
平日事前予約にて内見可。天井高2.7m
|
エネルギー消費性能 |
- |
断熱性能 |
- |
目安光熱費 |
- |
バス・トイレ |
共用部分に男女別トイレあり |
キッチン |
- |
設備・サービス |
個別空調、エアコン、暖房、冷房、インターネット対応、光ファイバー |
その他 |
- |
契約期間 |
5年 |
条件等 |
定期借家
|
引渡可能時期 |
即時 |
現況 |
空 |
仲介手数料 |
1ヶ月 |
適格請求書発行 |
可
|
更新料 |
- |
物件番号 |
6986581433 |
情報公開日 |
2025年6月6日 |
次回更新予定日 |
2025年10月17日 |
ケータイ用バーコード |
- スマートフォンでこの物件を見る
- スマートフォンからもこの物件をご覧になれます。
|
※「-」と表示されている項目については、情報提供会社にご確認ください。
周辺施設 |
ローソン品川埠頭店 |
距離 |
13m |
写真を見る |
周辺施設 |
ファミリーマート品川埠頭店 |
距離 |
76m |
写真を見る |
周辺施設 |
マルエツ港南ワールドシティ店 |
距離 |
1319m |
写真を見る |
周辺施設 |
港南公社駐車場 |
距離 |
1507m |
写真を見る |
周辺施設 |
マツモトキヨシ天王洲アイル店 |
距離 |
1396m |
写真を見る |
周辺施設 |
セブンイレブン天王洲シーフォートスクエア店 |
距離 |
1396m |
写真を見る |
周辺施設 |
品川天王洲郵便局 |
距離 |
1396m |
写真を見る |
周辺施設 |
サブウェイ天王洲シーフォートスクエア店 |
距離 |
1396m |
写真を見る |
ここから簡単にお問い合わせをすることができます。
(SSLでの暗号化での送信を希望されるお客さまは
こちら
よりお問い合わせください)
お問い合わせを行う前に
「個人情報の取り扱いについて」を必ずお読みください。
「個人情報の取り扱いについて」に同意いただいた場合は「上記にご同意の上 確認画面へ進む」のボタンをクリックしてください。
個人情報の取り扱いについて
皆さまが送付された個人情報はアットホーム(株)のサーバを経由し、お問い合わせ先の不動産会社にメールまたはFAXにて転送されるためアットホーム(株)にも保管されます。アットホーム(株)で保管された個人情報の取り扱いについては、【こちら】をご覧ください。
また、本画面でご記入いただいた個人情報は、お問い合わせ先の不動産会社でも保管します。 お問い合わせ先の不動産会社が保管する個人情報の取り扱いについては、不動産会社に直接お問い合わせください。
東京都知事免許(1)第110005号 |
---|
- 交通:
- JR山手線/新宿駅 徒歩8分
- 東京都新宿区西新宿7丁目5-6 新宿ダイカンプラザ756-1103号
- TEL:
- 03-6228-0011
- FAX:
- 03-6228-0012
- 所属団体:
- (公社)全日本不動産協会会員(公社)首都圏不動産公正取引協議会加盟
取引態様:仲介  - 00276312
|
- スマートフォンで
この不動産会社を見る

|
- 提携サイト等より掲載されている物件情報につきましては、不動産会社詳細情報にリンクされていないものがあります。
- 物件に関するお問合せは、物件詳細ページの「情報提供会社」に表示されている不動産会社へ直接お願いいたします。
- 間取図は、現況を優先させていただきます。
- 映像は物件の一部を撮影したものです。物件の契約にあたっての最終判断はご自身の判断に基づいて行ってください。
- 仲介手数料について

アットホームは物件情報の適正化に努めております。
内容に誤りがある場合にはこちらへご連絡ください。