大阪府大阪市西区阿波座1丁目(本町駅)の貸事務所:物件詳細
交通 所在地 |
駅徒歩 |
賃料 管理費等 |
敷金/保証金 礼金 |
使用部分面積 坪数/坪単価 |
物件種目 築年月 |
|
地下鉄四つ橋線/本町
大阪府大阪市西区阿波座1丁目
|
3分
|
50.74万円
186,956円
|
10ヶ月 / なし
なし
|
160.52m²
48.55坪/1.045万円
|
貸事務所
1989年4月(築36年9ヶ月)
|
|
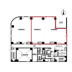
間取図
|
外観
|
<
その他の画像
>
|
| 交通 | 地下鉄四つ橋線 本町駅 徒歩3分 |
|---|
| その他の交通 | 地下鉄中央線 本町駅 徒歩4分 地下鉄御堂筋線 本町駅 徒歩8分 |
| 所在地 |
大阪府大阪市西区阿波座1丁目
|
| 物件種目 |
貸事務所 |
| 賃料 |
50.74万円 |
管理費等 |
186,956円 |
| 敷金 / 保証金 |
10ヶ月 / なし |
礼金 |
なし |
| 敷引 |
- |
坪単価 |
1.045万円 |
| 保証金償却 |
- |
権利金 |
- |
| 造作譲渡 |
- |
その他一時金 |
- |
| 維持費等 |
- |
保険等 |
不要 |
| 使用部分面積 |
160.52m² |
坪数 |
48.55坪 |
| 築年月 |
1989年4月(築36年9ヶ月)
|
階建 / 階 |
10階建 / 2階 |
| 駐車場 |
- |
バイク置き場 |
- |
| 駐輪場 |
- |
土地面積 |
- |
| 接道状況 |
-
|
用途地域 |
- |
| 間取り |
- |
建物構造 |
SRC造、一部S造 |
| 建物名・部屋番号 |
カーニープレイス本町ビル 2F 48.56坪 |
| リフォーム履歴 |
- |
| リノベーション履歴 |
- |
| 特記事項 |
24時間利用可、土曜日利用可、土日・祝日利用可、OAフロア、耐震構造(新耐震基準)、天井高2.5M以上 |
| 備考 |
管理形態/管理員の勤務形態:-/-
|
| エネルギー消費性能 |
- |
| 断熱性能 |
- |
| 目安光熱費 |
- |
| バス・トイレ |
共用部分に男女別トイレあり |
| キッチン |
- |
| 設備・サービス |
個別空調、給湯、エアコン、暖房、冷房、光ファイバー |
| その他 |
エレベーター2基以上、エレベーター |
| 契約期間 |
2年 |
条件等 |
-
|
| 引渡可能時期 |
即時 |
現況 |
空 |
| 更新料 |
なし |
物件番号 |
6986659615 |
| 情報公開日 |
2025年6月12日 |
次回更新予定日 |
2026年1月2日 |
| ケータイ用バーコード |
- スマートフォンでこの物件を見る
- スマートフォンからもこの物件をご覧になれます。
|
※「-」と表示されている項目については、情報提供会社にご確認ください。
| 周辺施設 |
ファミリーマート本町駅西店 |
| 距離 |
113m |
写真を見る |
| 周辺施設 |
カフェ・ド・クリエ西本町店 |
| 距離 |
1m |
写真を見る |
| 周辺施設 |
スターバックスコーヒー西本町店 |
| 距離 |
138m |
写真を見る |
| 周辺施設 |
医療法人日新会日新会病院 |
| 距離 |
1297m |
| 周辺施設 |
大阪厚生信用金庫西区支店 |
| 距離 |
229m |
ここから簡単にお問い合わせをすることができます。
(SSLでの暗号化での送信を希望されるお客さまは
こちら
よりお問い合わせください)
お問い合わせを行う前に
「個人情報の取り扱いについて」を必ずお読みください。
「個人情報の取り扱いについて」に同意いただいた場合は「上記にご同意の上 確認画面へ進む」のボタンをクリックしてください。
個人情報の取り扱いについて
皆さまが送付された個人情報はアットホーム(株)のサーバを経由し、お問い合わせ先の不動産会社にメールまたはFAXにて転送されるためアットホーム(株)にも保管されます。アットホーム(株)で保管された個人情報の取り扱いについては、【こちら】をご覧ください。
また、本画面でご記入いただいた個人情報は、お問い合わせ先の不動産会社でも保管します。 お問い合わせ先の不動産会社が保管する個人情報の取り扱いについては、不動産会社に直接お問い合わせください。
国土交通大臣免許(4)第7938号 |
|---|
- 交通:
- 地下鉄四つ橋線/本町駅 徒歩1分
- 大阪府大阪市西区靱本町1丁目11-7 信濃橋三井ビル11F
- TEL:
- 06-6147-9791
- FAX:
- 06-6147-9792
- 所属団体:
- (公社)全日本不動産協会会員(公社)近畿地区不動産公正取引協議会加盟
取引態様:仲介  - 50108170
|
- スマートフォンで
この不動産会社を見る

|
- 提携サイト等より掲載されている物件情報につきましては、不動産会社詳細情報にリンクされていないものがあります。
- 物件に関するお問合せは、物件詳細ページの「情報提供会社」に表示されている不動産会社へ直接お願いいたします。
- 間取図は、現況を優先させていただきます。
- 映像は物件の一部を撮影したものです。物件の契約にあたっての最終判断はご自身の判断に基づいて行ってください。
- 仲介手数料について

アットホームは物件情報の適正化に努めております。
内容に誤りがある場合にはこちらへご連絡ください。