福岡県福岡市博多区博多駅前4丁目(博多駅)の貸事務所:物件詳細
交通 所在地 |
駅徒歩 |
賃料 管理費等 |
敷金/保証金 礼金 |
使用部分面積 坪数/坪単価 |
物件種目 築年月 |
|
九州新幹線/博多
福岡県福岡市博多区博多駅前4丁目
|
13分
|
33.22万円
33,000円
|
3ヶ月 / なし
なし
|
73.07m²
22.10坪/1.503万円
|
貸事務所
2020年1月(築5年10ヶ月)
|
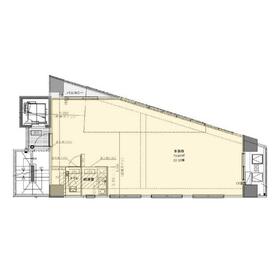
|
間取図
|
|
その他の画像
|
| 交通 | 九州新幹線 博多駅 徒歩13分 |
|---|
| その他の交通 | 地下鉄空港線 博多駅 徒歩14分 JR鹿児島本線 博多駅 徒歩15分 |
| 所在地 |
福岡県福岡市博多区博多駅前4丁目
|
| 物件種目 |
貸事務所 |
| 賃料 |
33.22万円 |
管理費等 |
33,000円 |
| 敷金 / 保証金 |
3ヶ月 / なし |
礼金 |
なし |
| 敷引 |
- |
坪単価 |
1.503万円 |
| 保証金償却 |
- |
権利金 |
- |
| 造作譲渡 |
- |
その他一時金 |
- |
| 維持費等 |
- |
保険等 |
- |
| 使用部分面積 |
73.07m² |
坪数 |
22.10坪 |
| 築年月 |
2020年1月(築5年10ヶ月)
|
階建 / 階 |
7階建 / 4階 |
| 駐車場 |
近有 14,437円/月 |
バイク置き場 |
- |
| 駐輪場 |
- |
土地面積 |
- |
| 接道状況 |
-
|
用途地域 |
- |
| 間取り |
- |
建物構造 |
RC |
| アピールポイント |
博多駅前の築浅オフィスビル!1フロア1テナントで内覧も可能です! |
| 建物名・部屋番号 |
ヴィラージュ博多駅前オフィス 4階 |
| リフォーム履歴 |
- |
| リノベーション履歴 |
- |
| 特記事項 |
1フロア1テナント、24時間セキュリティー |
| 備考 |
賃貸保証等:加入要(全保連:賃料100%(更新料:賃料の10%))
管理形態/管理員の勤務形態:-/-
鍵作成費:22,000円(税込)
|
| エネルギー消費性能 |
- |
| 断熱性能 |
- |
| 目安光熱費 |
- |
| バス・トイレ |
専有部分にトイレあり |
| キッチン |
- |
| 設備・サービス |
エアコン2台以上、オートロック、防犯カメラ、給湯、都市ガス、エアコン |
| その他 |
- |
| 契約期間 |
3年 |
条件等 |
-
|
| 引渡可能時期 |
相談 |
現況 |
空 |
| 更新料 |
- |
物件番号 |
6986689513 |
| 情報公開日 |
2025年9月20日 |
次回更新予定日 |
2025年10月29日 |
| ケータイ用バーコード |
- スマートフォンでこの物件を見る
- スマートフォンからもこの物件をご覧になれます。
|
※「-」と表示されている項目については、情報提供会社にご確認ください。
| 周辺施設 |
ファミリーマート博多美野島一丁目店 |
| 距離 |
186m |
| 周辺施設 |
セブンイレブン博多宮島店 |
| 距離 |
321m |
ここから簡単にお問い合わせをすることができます。
(SSLでの暗号化での送信を希望されるお客さまは
こちら
よりお問い合わせください)
お問い合わせを行う前に
「個人情報の取り扱いについて」を必ずお読みください。
「個人情報の取り扱いについて」に同意いただいた場合は「上記にご同意の上 確認画面へ進む」のボタンをクリックしてください。
個人情報の取り扱いについて
皆さまが送付された個人情報はアットホーム(株)のサーバを経由し、お問い合わせ先の不動産会社にメールまたはFAXにて転送されるためアットホーム(株)にも保管されます。アットホーム(株)で保管された個人情報の取り扱いについては、【こちら】をご覧ください。
また、本画面でご記入いただいた個人情報は、お問い合わせ先の不動産会社でも保管します。 お問い合わせ先の不動産会社が保管する個人情報の取り扱いについては、不動産会社に直接お問い合わせください。
国土交通大臣免許(3)第8432号 |
|---|
- 交通:
- 地下鉄七隈線/渡辺通駅 徒歩3分
- 福岡県福岡市中央区高砂1丁目1-27 Premier Hosaka1F
- TEL:
- 092-791-3652
- FAX:
- 092-791-3653
- 所属団体:
- 全国賃貸管理ビジネス協会会員(一社)全国賃貸不動産管理業協会会員(一社)九州不動産公正取引協議会加盟
取引態様:仲介  - 80507795
|
- スマートフォンで
この不動産会社を見る

|
- 提携サイト等より掲載されている物件情報につきましては、不動産会社詳細情報にリンクされていないものがあります。
- 物件に関するお問合せは、物件詳細ページの「情報提供会社」に表示されている不動産会社へ直接お願いいたします。
- 間取図は、現況を優先させていただきます。
- 映像は物件の一部を撮影したものです。物件の契約にあたっての最終判断はご自身の判断に基づいて行ってください。
- 仲介手数料について

アットホームは物件情報の適正化に努めております。
内容に誤りがある場合にはこちらへご連絡ください。