福岡県福岡市中央区大手門3丁目(大濠公園駅)の貸事務所:物件詳細
交通 所在地 |
駅徒歩 |
賃料 管理費等 |
敷金/保証金 礼金 |
使用部分面積 坪数/坪単価 |
物件種目 築年月 |
|
地下鉄空港線/大濠公園
福岡県福岡市中央区大手門3丁目
|
3分
|
18.7万円
55,000円
|
なし / なし
2ヶ月
|
64.94m²
19.64坪/0.952万円
|
貸事務所
1993年11月(築32年5ヶ月)
|
| 交通 | 地下鉄空港線 大濠公園駅 徒歩3分 |
|---|
| その他の交通 | 地下鉄空港線 唐人町駅 徒歩13分 地下鉄空港線 赤坂駅 徒歩15分 |
| 所在地 |
福岡県福岡市中央区大手門3丁目
|
| 物件種目 |
貸事務所 |
| 賃料 |
18.7万円 |
管理費等 |
55,000円 |
| 敷金 / 保証金 |
なし / なし |
礼金 |
2ヶ月 |
| 敷引 |
- |
坪単価 |
0.952万円 |
| 保証金償却 |
- |
権利金 |
- |
| 造作譲渡 |
- |
その他一時金 |
- |
| 維持費等 |
- |
保険等 |
- |
| 使用部分面積 |
64.94m² |
坪数 |
19.64坪 |
| 築年月 |
1993年11月(築32年5ヶ月)
|
階建 / 階 |
地上7階地下1階建 / 4階 |
| 駐車場 |
有 22,000円/月 ※空き台数はご確認ください。 |
バイク置き場 |
- |
| 駐輪場 |
- |
土地面積 |
- |
| 接道状況 |
-
|
用途地域 |
- |
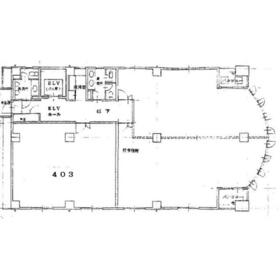
| 間取り |
- |
建物構造 |
RC |
| アピールポイント |
大濠公園まで徒歩3分の好立地オフィスビルです。内見も可能ですのでお気軽にお問い合わせください。 |
| 建物名・部屋番号 |
OMビル 403 |
| リフォーム履歴 |
- |
| リノベーション履歴 |
- |
| 特記事項 |
土曜日利用可、土日・祝日利用可 |
| 備考 |
賃貸保証等:利用可(※要確認)
管理形態/管理員の勤務形態:-/-
鍵交換代:20,000円(税別)
|
| エネルギー消費性能 |
- |
| 断熱性能 |
- |
| 目安光熱費 |
- |
| バス・トイレ |
共用部分に男女別トイレあり |
| キッチン |
- |
| 設備・サービス |
エアコン |
| その他 |
エレベーター |
| 契約期間 |
2年 |
条件等 |
-
|
| 引渡可能時期 |
相談 |
現況 |
空 |
| 仲介手数料 |
1ヶ月 |
|
|
| 更新料 |
- |
物件番号 |
6986759336 |
| 情報公開日 |
2026年3月25日 |
次回更新予定日 |
2026年4月8日 |
| ケータイ用バーコード |
- スマートフォンでこの物件を見る
- スマートフォンからもこの物件をご覧になれます。
|
※「-」と表示されている項目については、情報提供会社にご確認ください。
| 周辺施設 |
マックスバリュエクスプレス港町店 |
| 距離 |
473m |
| 周辺施設 |
ミニストップ大手門3丁目店 |
| 距離 |
93m |
| 周辺施設 |
セブンイレブン福岡大濠公園駅前店 |
| 距離 |
232m |
| 周辺施設 |
私立福岡大学附属若葉高校 |
| 距離 |
896m |
| 周辺施設 |
医療法人西福岡桜十字桜十字大手門病院 |
| 距離 |
430m |
ここから簡単にお問い合わせをすることができます。
(SSLでの暗号化での送信を希望されるお客さまは
こちら
よりお問い合わせください)
お問い合わせを行う前に
「個人情報の取り扱いについて」を必ずお読みください。
「個人情報の取り扱いについて」に同意いただいた場合は「上記にご同意の上 確認画面へ進む」のボタンをクリックしてください。
個人情報の取り扱いについて
皆さまが送付された個人情報はアットホーム(株)のサーバを経由し、お問い合わせ先の不動産会社にメールまたはFAXにて転送されるためアットホーム(株)にも保管されます。アットホーム(株)で保管された個人情報の取り扱いについては、【こちら】をご覧ください。
また、本画面でご記入いただいた個人情報は、お問い合わせ先の不動産会社でも保管します。 お問い合わせ先の不動産会社が保管する個人情報の取り扱いについては、不動産会社に直接お問い合わせください。
国土交通大臣免許(3)第8432号 |
|---|
- 交通:
- 地下鉄七隈線/渡辺通駅 徒歩3分
- 福岡県福岡市中央区高砂1丁目1-27 Premier Hosaka1F
- TEL:
- 092-791-3652
- FAX:
- 092-791-3653
- 所属団体:
- 全国賃貸管理ビジネス協会会員(一社)全国賃貸不動産管理業協会会員(一社)九州不動産公正取引協議会加盟
取引態様:仲介  - 80507795
|
- スマートフォンで
この不動産会社を見る

|
- 提携サイト等より掲載されている物件情報につきましては、不動産会社詳細情報にリンクされていないものがあります。
- 物件に関するお問合せは、物件詳細ページの「情報提供会社」に表示されている不動産会社へ直接お願いいたします。
- 間取図は、現況を優先させていただきます。
- 映像は物件の一部を撮影したものです。物件の契約にあたっての最終判断はご自身の判断に基づいて行ってください。
- 仲介手数料について

アットホームは物件情報の適正化に努めております。
内容に誤りがある場合にはこちらへご連絡ください。