東京都中央区新川1丁目(八丁堀駅)の貸事務所:物件詳細
交通 所在地 |
駅徒歩 |
賃料 管理費等 |
敷金/保証金 礼金 |
使用部分面積 坪数/坪単価 |
物件種目 築年月 |
|
JR京葉線/八丁堀
東京都中央区新川1丁目
|
6分
|
99万円
-
|
なし / 8ヶ月
2ヶ月
|
382.65m²
115.75坪/0.8553万円
|
貸事務所(建物一括)
1979年10月(築46年1ヶ月)
|
|
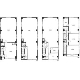
間取図
|
|
その他の画像
|
| 交通 | JR京葉線 八丁堀駅 徒歩6分 |
|---|
| その他の交通 | 東京メトロ日比谷線 茅場町駅 徒歩5分 東京メトロ半蔵門線 水天宮前駅 徒歩13分 |
| 所在地 |
東京都中央区新川1丁目
|
| 物件種目 |
貸事務所(建物一括) |
| 賃料 |
99万円 |
管理費等 |
- |
| 敷金 / 保証金 |
なし / 8ヶ月 |
礼金 |
2ヶ月 |
| 敷引 |
- |
坪単価 |
0.8553万円 |
| 保証金償却 |
- |
権利金 |
- |
| 造作譲渡 |
- |
その他一時金 |
- |
| 維持費等 |
- |
保険等 |
- |
| 使用部分面積 |
382.65m² |
坪数 |
115.75坪 |
| 築年月 |
1979年10月(築46年1ヶ月)
|
階建 / 階 |
4階建 / 1階 |
| 駐車場 |
- |
バイク置き場 |
- |
| 駐輪場 |
- |
土地面積 |
- |
| 接道状況 |
-
|
用途地域 |
- |
| 間取り |
- |
建物構造 |
RC |
| アピールポイント |
1階部分にハイルーフ車駐車可能 ダムェーターがついており
荷物の搬出入が便利です。
1階駐車場兼倉庫、2階倉庫、3階 4階事務所等、利用用途多数相談可能です。
382.65㎡の一棟ビル 幅広い業種に対応できる建物です。
ご内見可能になりました。 |
| 建物名・部屋番号 |
|
| リフォーム履歴 |
- |
| リノベーション履歴 |
- |
| 特記事項 |
24時間利用可、土曜日利用可、土日・祝日利用可、飲食店不可、角部屋、保証人不要 |
| 備考 |
管理形態/管理員の勤務形態:-/-
倉庫、物販店舗、撮影スタジオ、事務所等、業種ご相談ください。定期借家7年
|
| エネルギー消費性能 |
- |
| 断熱性能 |
- |
| 目安光熱費 |
- |
| バス・トイレ |
トイレ2ヶ所、トイレ |
| キッチン |
- |
| 設備・サービス |
都市ガス、エアコン、インターネット対応 |
| その他 |
- |
| 契約期間 |
7年 |
条件等 |
定期借家
|
| 引渡可能時期 |
相談 |
現況 |
空 |
| 仲介手数料 |
1.1ヶ月 |
|
|
| 更新料 |
なし |
物件番号 |
6986767958 |
| 情報公開日 |
2025年6月23日 |
次回更新予定日 |
2025年10月27日 |
| ケータイ用バーコード |
- スマートフォンでこの物件を見る
- スマートフォンからもこの物件をご覧になれます。
|
※「-」と表示されている項目については、情報提供会社にご確認ください。
| 周辺施設 |
まいばすけっと新川2丁目店 |
| 距離 |
200m |
| 周辺施設 |
さわやか信用金庫日本橋支店 |
| 距離 |
370m |
| 周辺施設 |
マストパーク日本橋茅場町2丁目 |
| 距離 |
589m |
ここから簡単にお問い合わせをすることができます。
(SSLでの暗号化での送信を希望されるお客さまは
こちら
よりお問い合わせください)
お問い合わせを行う前に
「個人情報の取り扱いについて」を必ずお読みください。
「個人情報の取り扱いについて」に同意いただいた場合は「上記にご同意の上 確認画面へ進む」のボタンをクリックしてください。
個人情報の取り扱いについて
皆さまが送付された個人情報はアットホーム(株)のサーバを経由し、お問い合わせ先の不動産会社にメールまたはFAXにて転送されるためアットホーム(株)にも保管されます。アットホーム(株)で保管された個人情報の取り扱いについては、【こちら】をご覧ください。
また、本画面でご記入いただいた個人情報は、お問い合わせ先の不動産会社でも保管します。 お問い合わせ先の不動産会社が保管する個人情報の取り扱いについては、不動産会社に直接お問い合わせください。
東京都知事免許(4)第88851号 |
|---|
- 交通:
- 都営浅草線/人形町駅 徒歩7分
- 東京都中央区日本橋浜町2丁目23-6 人形町不動産ビル
- TEL:
- 03-6228-1162
- FAX:
- 03-6228-1163
- 所属団体:
- (公社)全日本不動産協会会員(公社)首都圏不動産公正取引協議会加盟
取引態様:仲介  - 00018475
|
- スマートフォンで
この不動産会社を見る

|
- 提携サイト等より掲載されている物件情報につきましては、不動産会社詳細情報にリンクされていないものがあります。
- 物件に関するお問合せは、物件詳細ページの「情報提供会社」に表示されている不動産会社へ直接お願いいたします。
- 間取図は、現況を優先させていただきます。
- 映像は物件の一部を撮影したものです。物件の契約にあたっての最終判断はご自身の判断に基づいて行ってください。
- 仲介手数料について

アットホームは物件情報の適正化に努めております。
内容に誤りがある場合にはこちらへご連絡ください。