東京都千代田区神田東松下町(神田駅)の貸事務所:物件詳細
交通 所在地 |
駅徒歩 |
賃料 管理費等 |
敷金/保証金 礼金 |
使用部分面積 坪数/坪単価 |
物件種目 築年月 |
JR山手線/神田
東京都千代田区神田東松下町
|
7分
|
38.26万円
83,160円
|
10ヶ月 / なし
1ヶ月
|
99.98m²
30.24坪/1.2651万円
|
貸事務所
1993年3月(築32年8ヶ月)
|
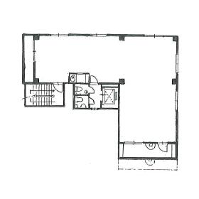
間取図
|
|
<
その他の画像
>
|
交通 | JR山手線 神田駅 徒歩7分 |
---|
その他の交通 | 都営新宿線 岩本町駅 徒歩3分 JR総武線 秋葉原駅 徒歩9分 |
所在地 |
東京都千代田区神田東松下町
|
物件種目 |
貸事務所 |
賃料 |
38.26万円 |
管理費等 |
83,160円 |
敷金 / 保証金 |
10ヶ月 / なし |
礼金 |
1ヶ月 |
敷引 |
2ヶ月 |
坪単価 |
1.2651万円 |
保証金償却 |
- |
権利金 |
- |
造作譲渡 |
- |
その他一時金 |
- |
維持費等 |
水道料:5,500円/月 |
保険等 |
要 |
使用部分面積 |
99.98m² |
坪数 |
30.24坪 |
築年月 |
1993年3月(築32年8ヶ月)
|
階建 / 階 |
7階建 / 6階 |
駐車場 |
有 49,500円/月 |
バイク置き場 |
- |
駐輪場 |
有 1,650円/月 |
土地面積 |
- |
接道状況 |
-
|
用途地域 |
- |
間取り |
- |
建物構造 |
鉄骨造 |
アピールポイント |
■通勤も非常に便利です。秋葉原も神田も近いのですが、新宿まで1本の【岩本町駅】はもっと近いため、雨の日も助かります。
■事務所の形状がL字型ですので、レイアウトもしやすいです。 ■隣にコインパーキングもあり、ご来客にも便利ですね。 |
建物名・部屋番号 |
神田SYビル 6階 |
リフォーム履歴 |
■内装:2025年8月 全室クロス張替え、床(フローリング等)、壁・天井(クロス・塗装等) ■LED照明 ■トイレ2ヶ所(使い分けが可能です) ※実施年月は最も古い履歴を表示 |
リノベーション履歴 |
- |
特記事項 |
土日・祝日利用可、OAフロア、飲食店不可、1フロア1テナント、角部屋 |
備考 |
賃貸保証等:加入要(保証会社に加入していただきます。)
管理形態/管理員の勤務形態:-/-
|
エネルギー消費性能 |
- |
断熱性能 |
- |
目安光熱費 |
- |
バス・トイレ |
トイレ2ヶ所、専有部分に男女別トイレあり |
キッチン |
- |
設備・サービス |
個別空調、エアコン2台以上、オートロック、ビルトインエアコン、火災警報器(報知機)、インターネット対応、光ファイバー |
その他 |
エレベーター |
契約期間 |
2年 |
条件等 |
-
|
引渡可能時期 |
即時 |
現況 |
空 |
適格請求書発行 |
可
|
更新料 |
新賃料 1ヶ月 |
物件番号 |
6986882753 |
情報公開日 |
2025年10月1日 |
次回更新予定日 |
2025年10月29日 |
ケータイ用バーコード |
- スマートフォンでこの物件を見る
- スマートフォンからもこの物件をご覧になれます。
|
※「-」と表示されている項目については、情報提供会社にご確認ください。
周辺施設 |
まいばすけっと岩本町駅南店 |
距離 |
100m |
周辺施設 |
セブンイレブン神田岩本町店 |
距離 |
102m |
周辺施設 |
ニッポンレンタカー神田営業所 |
距離 |
142m |
周辺施設 |
マツモトキヨシ岩本町駅前店 |
距離 |
236m |
ここから簡単にお問い合わせをすることができます。
(SSLでの暗号化での送信を希望されるお客さまは
こちら
よりお問い合わせください)
お問い合わせを行う前に
「個人情報の取り扱いについて」を必ずお読みください。
「個人情報の取り扱いについて」に同意いただいた場合は「上記にご同意の上 確認画面へ進む」のボタンをクリックしてください。
個人情報の取り扱いについて
皆さまが送付された個人情報はアットホーム(株)のサーバを経由し、お問い合わせ先の不動産会社にメールまたはFAXにて転送されるためアットホーム(株)にも保管されます。アットホーム(株)で保管された個人情報の取り扱いについては、【こちら】をご覧ください。
また、本画面でご記入いただいた個人情報は、お問い合わせ先の不動産会社でも保管します。 お問い合わせ先の不動産会社が保管する個人情報の取り扱いについては、不動産会社に直接お問い合わせください。
東京都知事免許(1)第112035号 |
---|
- 交通:
- 東京メトロ銀座線/銀座駅 徒歩7分
- 東京都中央区銀座6丁目5-8 トップビル 6階
- TEL:
- 03-3289-9389
- FAX:
- 03-3289-9390
- 所属団体:
- (公社)東京都宅地建物取引業協会会員(公社)首都圏不動産公正取引協議会加盟
取引態様:仲介  - 00281212
|
- スマートフォンで
この不動産会社を見る

|
- 提携サイト等より掲載されている物件情報につきましては、不動産会社詳細情報にリンクされていないものがあります。
- 物件に関するお問合せは、物件詳細ページの「情報提供会社」に表示されている不動産会社へ直接お願いいたします。
- 間取図は、現況を優先させていただきます。
- 映像は物件の一部を撮影したものです。物件の契約にあたっての最終判断はご自身の判断に基づいて行ってください。
- 仲介手数料について

アットホームは物件情報の適正化に努めております。
内容に誤りがある場合にはこちらへご連絡ください。