東京都渋谷区松濤2丁目(神泉駅)の貸事務所:物件詳細
交通 所在地 |
駅徒歩 |
賃料 管理費等 |
敷金/保証金 礼金 |
使用部分面積 坪数/坪単価 |
物件種目 築年月 |
|
京王井の頭線/神泉
東京都渋谷区松濤2丁目
|
4分
|
371.4419万円
-
|
6ヶ月 / なし
なし
|
293.63m²
88.82坪/4.1819万円
|
貸事務所
2011年5月(築14年8ヶ月)
|
|
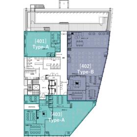
間取図
|
|
その他の画像
|
| 交通 | 京王井の頭線 神泉駅 徒歩4分 |
|---|
| その他の交通 | JR山手線 渋谷駅 徒歩10分 東京メトロ銀座線 渋谷駅 徒歩10分 |
| 所在地 |
東京都渋谷区松濤2丁目
|
| 物件種目 |
貸事務所 |
| 賃料 |
371.4419万円 |
管理費等 |
- |
| 敷金 / 保証金 |
6ヶ月 / なし |
礼金 |
なし |
| 敷引 |
- |
坪単価 |
4.1819万円 |
| 保証金償却 |
- |
権利金 |
- |
| 造作譲渡 |
- |
その他一時金 |
- |
| 維持費等 |
- |
保険等 |
- |
| 使用部分面積 |
293.63m² |
坪数 |
88.82坪 |
| 築年月 |
2011年5月(築14年8ヶ月)
|
階建 / 階 |
地上6階地下1階建 / 4階 |
| 駐車場 |
- |
バイク置き場 |
- |
| 駐輪場 |
- |
土地面積 |
- |
| 接道状況 |
-
|
用途地域 |
- |
| 間取り |
- |
建物構造 |
鉄骨造 |
| 建物名・部屋番号 |
|
| リフォーム履歴 |
- |
| リノベーション履歴 |
- |
| 特記事項 |
駐車場3台分以上 |
| 備考 |
管理形態/管理員の勤務形態:-/-
(仮称)X-BASE SHIBUYAのフルリノベーションとセットアップオフィス化を行います。
ビルのフルリノベーションと、各居室をハーフセットアップオフィス化、及びスモールオフィスやテナント専用ラウンジを設置し、ビル内で成長し続けられる構成にして、2026年1月に誕生いたします(2025年12月末工事完了予定)。
またビル横の敷地内には平面駐車場として58台分の収容も可能なため、車をお持ちの企業様にも使い勝手の良いビルになっております。
(電気自動車にも対応すべく、高速充電可能な駐車場も併設予定です。※充電区画は月極契約不可)
3席~14席のスモールオフィスから、30坪~140坪のハーフセットアップオフィスと、様々な大きさのオフィスがございますので、企業様の成長過程に合わせたサイズを館内でご選択いただきながら、成長をし続けていただけるビルです。
またテナント専用ラウンジも大きく設けておりますので、元々求めているサイズよりも面積を圧縮してコスト減で移っていただくことも可能かと思われます。
|
| エネルギー消費性能 |
- |
| 断熱性能 |
- |
| 目安光熱費 |
- |
| バス・トイレ |
- |
| キッチン |
- |
| 設備・サービス |
個別空調、非接触型ICカードキー、光ファイバー |
| その他 |
- |
| 契約期間 |
3年 |
条件等 |
定期借家
|
| 引渡可能時期 |
2026年1月中旬予定 |
現況 |
完成済 |
| 仲介手数料 |
1ヶ月 |
|
|
| 更新料 |
- |
物件番号 |
6987039218 |
| 情報公開日 |
2025年11月1日 |
次回更新予定日 |
2025年12月27日 |
| ケータイ用バーコード |
- スマートフォンでこの物件を見る
- スマートフォンからもこの物件をご覧になれます。
|
※「-」と表示されている項目については、情報提供会社にご確認ください。
ここから簡単にお問い合わせをすることができます。
(SSLでの暗号化での送信を希望されるお客さまは
こちら
よりお問い合わせください)
お問い合わせを行う前に
「個人情報の取り扱いについて」を必ずお読みください。
「個人情報の取り扱いについて」に同意いただいた場合は「上記にご同意の上 確認画面へ進む」のボタンをクリックしてください。
個人情報の取り扱いについて
皆さまが送付された個人情報はアットホーム(株)のサーバを経由し、お問い合わせ先の不動産会社にメールまたはFAXにて転送されるためアットホーム(株)にも保管されます。アットホーム(株)で保管された個人情報の取り扱いについては、【こちら】をご覧ください。
また、本画面でご記入いただいた個人情報は、お問い合わせ先の不動産会社でも保管します。 お問い合わせ先の不動産会社が保管する個人情報の取り扱いについては、不動産会社に直接お問い合わせください。
シービーアールイー(株) A&T|オフィス国土交通大臣免許(15)第1075号 |
|---|
- 交通:
- JR山手線/東京駅 徒歩5分
- 東京都千代田区丸の内2丁目1-1 明治安田生命ビル18階
- TEL:
- 03-5288-9780
- FAX:
- 03-6745-8473
- 所属団体:
- (一社)不動産流通経営協会会員(公社)首都圏不動産公正取引協議会加盟
取引態様:仲介 |
- 提携サイト等より掲載されている物件情報につきましては、不動産会社詳細情報にリンクされていないものがあります。
- 物件に関するお問合せは、物件詳細ページの「情報提供会社」に表示されている不動産会社へ直接お願いいたします。
- 間取図は、現況を優先させていただきます。
- 映像は物件の一部を撮影したものです。物件の契約にあたっての最終判断はご自身の判断に基づいて行ってください。
- 仲介手数料について

アットホームは物件情報の適正化に努めております。
内容に誤りがある場合にはこちらへご連絡ください。