東京都大田区蒲田5丁目(蒲田駅)の貸事務所:物件詳細
交通 所在地 |
駅徒歩 |
賃料 管理費等 |
敷金/保証金 礼金 |
使用部分面積 坪数/坪単価 |
物件種目 築年月 |
|
JR京浜東北線/蒲田
東京都大田区蒲田5丁目
|
3分
|
29.7万円
27,500円
|
3ヶ月 / なし
1ヶ月
|
59.17m²
17.89坪/1.6594万円
|
貸事務所
2009年10月(築16年1ヶ月)
|
|
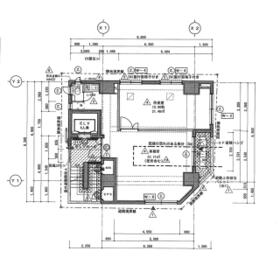
間取図
★301号室の募集です★
|
外観
★ガラス張りのお洒落な外観☆
|
<
その他の画像
>
|
| 交通 | JR京浜東北線 蒲田駅 徒歩3分 |
|---|
| その他の交通 | 京急本線 京急蒲田駅 徒歩10分 京急本線 梅屋敷駅 徒歩17分 |
| 所在地 |
東京都大田区蒲田5丁目
|
| 物件種目 |
貸事務所 |
| 賃料 |
29.7万円 |
管理費等 |
27,500円 |
| 敷金 / 保証金 |
3ヶ月 / なし |
礼金 |
1ヶ月 |
| 敷引 |
- |
坪単価 |
1.6594万円 |
| 保証金償却 |
- |
権利金 |
- |
| 造作譲渡 |
- |
その他一時金 |
- |
| 維持費等 |
- |
保険等 |
要 三井住友海上 |
| 使用部分面積 |
59.17m² |
坪数 |
17.89坪 |
| 築年月 |
2009年10月(築16年1ヶ月)
|
階建 / 階 |
7階建 / 3階 |
| 駐車場 |
無 |
バイク置き場 |
無 |
| 駐輪場 |
無 |
土地面積 |
- |
| 接道状況 |
-
|
用途地域 |
近隣商業 |
| 間取り |
- |
建物構造 |
RC |
| アピールポイント |
不動産を借りる際に一番怖い「トラブル」というのは必ず契約後、入居後に発生します。弊社は不動産仲介のプロとして、入居後に発生するトラブルを極力無くすように契約前に様々なアドバイスをさせて頂きます。また、入居後に何かしらの事故やトラブルが発生した際もアフターサービスとして担当者が管理会社や家主様との話し合いに一緒に対応致します。公平公正で安心の不動産取引が出来るように弁護士・税理士・司法書士・行政書士等の様々な士業との提携をはじめ、金融機関・工務店・ディベロッパーなど多岐にわたるご紹介が可能です。
お客様が開業・移転される事でその地域が発展し、魅力ある街の発展となるよう真心をもって物件をご紹介いたします。 |
| 建物名・部屋番号 |
Moonshiny弐番館 |
| リフォーム履歴 |
- |
| リノベーション履歴 |
- |
| 特記事項 |
24時間利用可、土曜日利用可、土日・祝日利用可、飲食店不可、1フロア1テナント、角部屋 |
| 備考 |
賃貸保証等:加入要(スターリンク保証料100%、エルズサポート100%(エルズサポート利用はスターリンク適用外の場合に限ります))
管理形態/管理員の勤務形態:-/-
★短期解約違約金有★
★賃料297,000円 共益費27,500円(税)★
★業種ご相談下さい★A50
|
| エネルギー消費性能 |
- |
| 断熱性能 |
- |
| 目安光熱費 |
- |
| バス・トイレ |
専有部分にトイレあり |
| キッチン |
- |
| 設備・サービス |
オートロック、動力あり、エアコン |
| その他 |
エレベーター |
| 契約期間 |
2年 |
条件等 |
-
|
| 引渡可能時期 |
2025年10月上旬予定 |
現況 |
居住中 |
| 仲介手数料 |
1.1ヶ月 |
|
|
| 更新料 |
新賃料 1.5ヶ月 |
物件番号 |
6987120591 |
| 情報公開日 |
2025年10月6日 |
次回更新予定日 |
2025年11月3日 |
| ケータイ用バーコード |
- スマートフォンでこの物件を見る
- スマートフォンからもこの物件をご覧になれます。
|
※「-」と表示されている項目については、情報提供会社にご確認ください。
| 周辺施設 |
まいばすけっと蒲田工学院通り店 |
| 距離 |
159m |
写真を見る |
| 周辺施設 |
ファミリーマート蒲田駅北店 |
| 距離 |
90m |
写真を見る |
| 周辺施設 |
CoCo壱番屋JR蒲田駅西口店 |
| 距離 |
139m |
写真を見る |
| 周辺施設 |
私立東京工科大学蒲田キャンパス |
| 距離 |
223m |
写真を見る |
| 周辺施設 |
東京都立蒲田高校 |
| 距離 |
886m |
写真を見る |
| 周辺施設 |
大田区立蒲田中学校 |
| 距離 |
428m |
写真を見る |
| 周辺施設 |
蒲田一郵便局 |
| 距離 |
256m |
写真を見る |
ここから簡単にお問い合わせをすることができます。
(SSLでの暗号化での送信を希望されるお客さまは
こちら
よりお問い合わせください)
お問い合わせを行う前に
「個人情報の取り扱いについて」を必ずお読みください。
「個人情報の取り扱いについて」に同意いただいた場合は「上記にご同意の上 確認画面へ進む」のボタンをクリックしてください。
個人情報の取り扱いについて
皆さまが送付された個人情報はアットホーム(株)のサーバを経由し、お問い合わせ先の不動産会社にメールまたはFAXにて転送されるためアットホーム(株)にも保管されます。アットホーム(株)で保管された個人情報の取り扱いについては、【こちら】をご覧ください。
また、本画面でご記入いただいた個人情報は、お問い合わせ先の不動産会社でも保管します。 お問い合わせ先の不動産会社が保管する個人情報の取り扱いについては、不動産会社に直接お問い合わせください。
国土交通大臣免許(3)第8356号 |
|---|
- 交通:
- JR京浜東北線/横浜駅 徒歩4分
- 神奈川県横浜市西区北幸1丁目11-5 相鉄KSビル9F
- TEL:
- 045-313-1156
- FAX:
- 045-313-1158
- 所属団体:
- (公社)神奈川県宅地建物取引業協会会員不動産公正取引協議会加盟
取引態様:仲介  - 00107889
|
- スマートフォンで
この不動産会社を見る

|
- 提携サイト等より掲載されている物件情報につきましては、不動産会社詳細情報にリンクされていないものがあります。
- 物件に関するお問合せは、物件詳細ページの「情報提供会社」に表示されている不動産会社へ直接お願いいたします。
- 間取図は、現況を優先させていただきます。
- 映像は物件の一部を撮影したものです。物件の契約にあたっての最終判断はご自身の判断に基づいて行ってください。
- 仲介手数料について

アットホームは物件情報の適正化に努めております。
内容に誤りがある場合にはこちらへご連絡ください。